Prodej rodinného domu, Dubňany, 138 m2

Dubňany

7 990 000 Kč
/za nemovitost
včetně DPH, včetně poplatků, včetně provize, včetně právního servisu
Hypotéka od 35 710 Kč /měs. Chci hypotéku

Parametry domu

AdresaDubňany
ID14331
StavbaCihlová
Stav objektuNovostavba
Typ objektuPatrový
Druh objektuŘadový
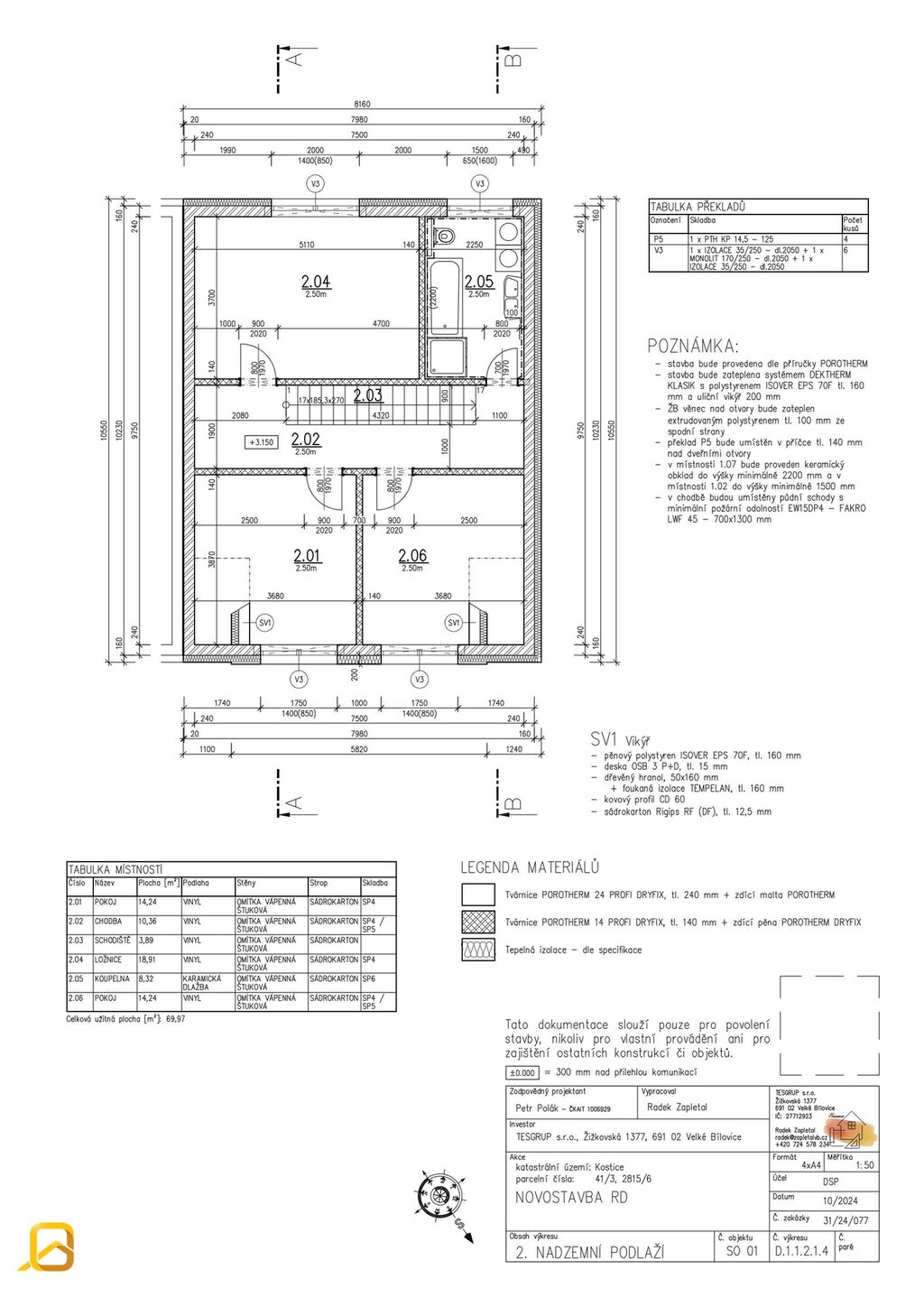
Užitná plocha138 m2
Plocha pozemku164 m2
Třída energetické náročnostiB - Velmi úsporná
Ukazatel energetické náročnosti103 kWh/m2 za rok
Elektřina230V, 400V
OdpadVeřejná kanalizace
KomunikaceAsfaltová
DopravaSilnice, Autobus
VodaVodovod
Garáž

Origo partneři v Dubňanech

Popis

Nové rodinné domy se zahradou – Dubňany u Hodonína

Nabízíme prodej nových rodinných domů v atraktivní rezidenční lokalitě Dubňany, v docházkové vzdálenosti od přírody, a přitom s kompletní občanskou vybaveností v okolí. Ideální bydlení pro rodiny, které hledají kombinaci klidu, bezpečí a moderního standardu.

O projektu:
Moderní rodinné domy 4+kk
Užitná plocha 138,48 m²
Pozemky od 164 m²

O stavbě:
Zděná stavba, energetická třída B, podlahové vytápění, tepelné čerpadlo, velká okna orientované do zahrady, vysoká světlost interiéru, parkování pro 2 auta na vlastním pozemku. Domy se prodávají ve stavu k nastěhování .

Výhody projektu:
Moderní architektura a chytré dispoziční řešení, nízké měsíční náklady na provoz domu, oplocený pozemek, dokončené chodníky a přístupová cesta, výborná dostupnost – Hodonín 10 min, Kyjov 15 min.

Lokalita – Dubňany
Základní škola, mateřská škola, obchody, služby, sportovní areál, koupaliště, cyklostezky, lesy a rekreační zóny, bezpečná a rozvíjející se lokalita vhodná pro rodinné bydlení

Více informací na stránce domydubnany . cz

Rádi Vám pomůžeme s vyřízením výhodné hypotéky. Pokud plánujete koupi financovat prodejem stávající nemovitosti, postaráme se o hladký průběh obou transakcí.

Rádi vám sdělíme více informací o této nabídce.
Roman Krist - RK Dáme Domov

Makléř

Máte zájem o tento dům?

Tímto, v souladu s nařízením Evropského parlamentu a Rady (EU) 2016/679, v platném znění, prohlašuji, že mi je alespoň 16 let a uděluji tak svůj souhlas se zpracováním zadaných údajů (jméno, telefon, e-mail, ip adresa) společnosti B3 Technology, s.r.o., IČ: 07330600, se sídlem Novostavby 126/23, 435 11 Lom (správce dat), za účelem předání dotazu z tohoto formuláře Vámi vybranému inzerentovi a zpětného kontaktování mé osoby. Osobní údaje bude správce zpracovávat manuálně i automaticky přímo prostřednictvím svých zaměstnanců. Informace předané tímto formulářem budou uloženy v databázi správce maximálně po dobu 10 let. Odvolání souhlasu s uložením a zpracováním poskytnutých dat lze e-mailem na info@origo-reality.cz. V případě podezření na neoprávněné použití Vámi poskytnutých údajů máte právo předat podnět k šetření Úřadu pro ochranu osobních údajů. Více informací
Chystáte se prodat nemovitost?
Pomůžeme Vám!

Přihlášení k odběru

Nenechte si ujít nejnovější nabídky prodeje rodinných domů v Dubňanech.