Pronájem bytu 2+kk, Lanškroun, Palackého, 68 m2

Palackého, Lanškroun, Žichlínské Předměstí

8 893 Kč
/za měsíc
Získejte výhodnou HYPOTÉKU Chci hypotéku

Parametry bytu

AdresaPalackého, Lanškroun, Žichlínské Předměstí
StavbaCihlová
Stav objektuDobrý
Patro2.
VlastnictvíStátní/obecní
Užitná plocha68 m2
Balkon
Sklep

Origo partneři v Lanškrouně

Popis

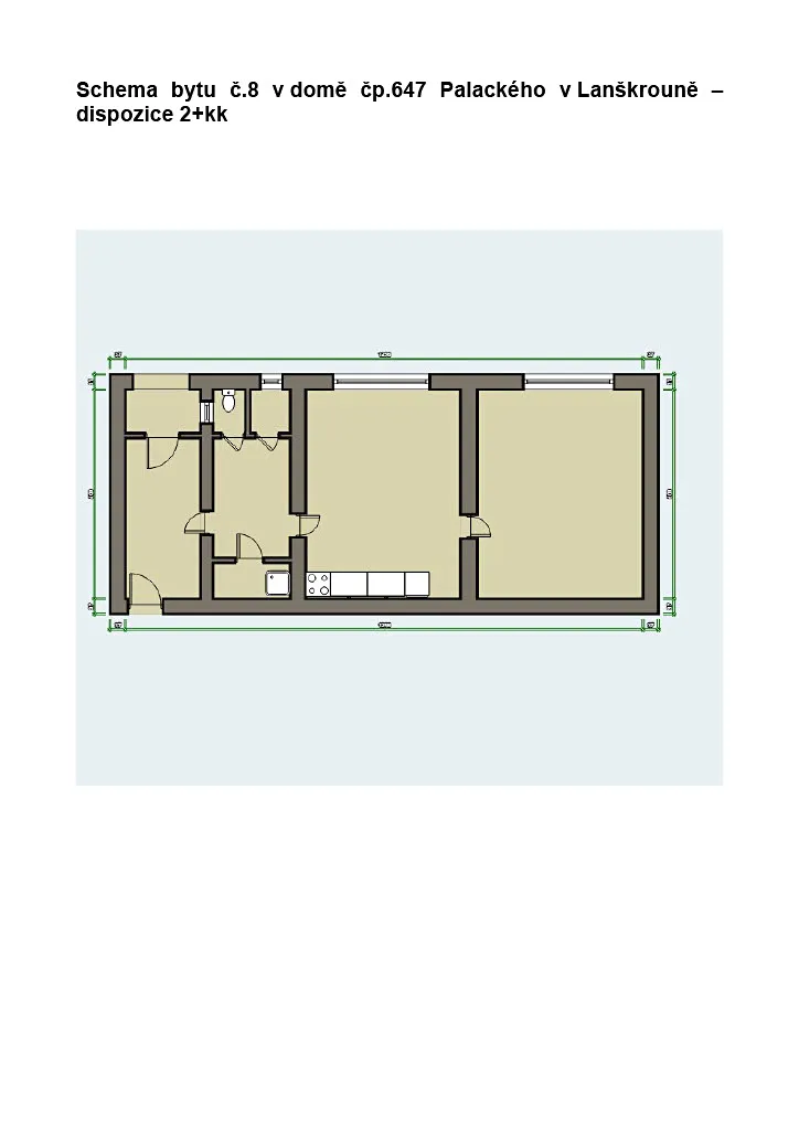
Dovolujeme si Vám nabídnout k pronájmu byt s dispozicí 2+kk v Lanškrouně. Ideální volba pro ty, kteří hledají klidné bydlení v cihlové zástavbě na dobré adrese. Byt se nachází ve druhém patře a jeho užitná plocha činí 68 m². Byt je po celkové rekonstrukci a je připraven k okamžitému bydlení.

Tento byt je součástí státního nebo obecního vlastnictví a určitě oceníte jeho praktický balkon o ploše 3 m², kde si můžete užívat čerstvý vzduch. K bytu náleží také sklep o velikosti 12 m², což poskytuje další úložný prostor pro Vaše věci.

Pokud Vás tato nemovitost zaujala, neváhejte nás kontaktovat pro více informací nebo si přijďte prohlédnout byt osobně. Prohlídka je naplánována na 18. listopadu 2025 od 14:30 do 15:00. Těšíme se na setkání a na to, že Vám budeme moci představit všechny výhody tohoto bytu.

Makléř

Máte zájem o tento byt?

Tímto, v souladu s nařízením Evropského parlamentu a Rady (EU) 2016/679, v platném znění, prohlašuji, že mi je alespoň 16 let a uděluji tak svůj souhlas se zpracováním zadaných údajů (jméno, telefon, e-mail, ip adresa) společnosti B3 Technology, s.r.o., IČ: 07330600, se sídlem Novostavby 126/23, 435 11 Lom (správce dat), za účelem předání dotazu z tohoto formuláře Vámi vybranému inzerentovi a zpětného kontaktování mé osoby. Osobní údaje bude správce zpracovávat manuálně i automaticky přímo prostřednictvím svých zaměstnanců. Informace předané tímto formulářem budou uloženy v databázi správce maximálně po dobu 10 let. Odvolání souhlasu s uložením a zpracováním poskytnutých dat lze e-mailem na info@origo-reality.cz. V případě podezření na neoprávněné použití Vámi poskytnutých údajů máte právo předat podnět k šetření Úřadu pro ochranu osobních údajů. Více informací
Chystáte se prodat nemovitost?
Pomůžeme Vám!

Přihlášení k odběru

Nenechte si ujít nejnovější nabídky pronájmu bytů 2+kk v Lanškrouně.