Pronájem kanceláře, Brno, Hněvkovského, 46 m2 (ID: 1882808)

Hněvkovského, Brno, Komárov

11 432 Kč
/za měsíc
bez DPH + služby (bez provize RK)
Získejte výhodnou HYPOTÉKU Chci hypotéku

Parametry nemovitosti

AdresaHněvkovského, Brno, Komárov
StavbaCihlová
Stav objektuVelmi dobrý
Patro1. z 3
VybavenoNe
Lokalita objektuCentrum obce
Užitná plocha46 m2
Podlahová plocha46 m2
Třída energetické náročnostiC - Úsporná
Elektřina230V
OdpadVeřejná kanalizace
TopeníLokální plynové
KomunikaceAsfaltová
TelekomunikaceTelefon, Internet
DopravaDálnice, Silnice, MHD, Autobus
VodaMístní zdroj vody
Topné tělesoRadiátory
Zdroj topeníPlynový kotel
Zdroj teplé vodyPlynový kotel
Výtah
Bezbarierový přístup
Parkování

Origo partneři v Brně

Popis

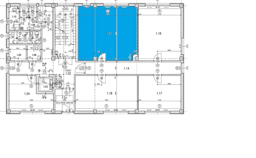
Jako majitel areálu Vám nabízíme k pronájmu kancelář o výměře 46,1 m2 v lokalitě Brno – Komárov. Jedná se o kancelář č.1.15 ve 1. NP Budovy č. 6 na ulici Hněvkovského. Sociální zázemí a kuchyňka jsou sdílené na patře.

Náklady na pronájem:
- nájemné 11.433,- Kč/měsíc bez DPH
- vyhrazené parkovací místo 600,- Kč/měsíc bez DPH
- energie rozúčtované dle pronajaté výměry m2
- servisní poplatek 1.060,- Kč/měsíc bez DPH (zahrnuje režijní náklady spojené se správou)
- je možné objednat i další služby (připojení k internetu, úklid pronajatých prostor)
kauce/jistota 55.000,- Kč

Další výhody areálu Hněvkovského:
- výborná dostupnost areálu autem z centra Brna (4 minuty) i z dálnic D1 a D2 (3 minuty)
- přímo před areálem je zastávka autobusů MHD č. 40, 48, 63, 67, dojezd za 10 minut z hlavního nádraží, 8 minut od Vaňkovky a 5 minut ze Zvonařky
- noční ostraha areálu je zajištěna, přístup do areálu v režimu 24/7
- naproti areálu se nachází volnočasové centrum Komec a cyklostezka kolem řeky Svratky
- v těsné blízkosti je supermarket Lidl
- po dohodě je možné umístit Vaši reklamu v rámci areálu nebo při ulici Hněvkovského.

Pro bližší informace prosím kontaktujte paní Mazourovou na tel. 739 032 727. Rádi si s Vámi domluvíme prohlídku nabízených prostor.

Makléř

Máte zájem o tuto nemovistost?

Tímto, v souladu s nařízením Evropského parlamentu a Rady (EU) 2016/679, v platném znění, prohlašuji, že mi je alespoň 16 let a uděluji tak svůj souhlas se zpracováním zadaných údajů (jméno, telefon, e-mail, ip adresa) společnosti B3 Technology, s.r.o., IČ: 07330600, se sídlem Novostavby 126/23, 435 11 Lom (správce dat), za účelem předání dotazu z tohoto formuláře Vámi vybranému inzerentovi a zpětného kontaktování mé osoby. Osobní údaje bude správce zpracovávat manuálně i automaticky přímo prostřednictvím svých zaměstnanců. Informace předané tímto formulářem budou uloženy v databázi správce maximálně po dobu 10 let. Odvolání souhlasu s uložením a zpracováním poskytnutých dat lze e-mailem na info@origo-reality.cz. V případě podezření na neoprávněné použití Vámi poskytnutých údajů máte právo předat podnět k šetření Úřadu pro ochranu osobních údajů. Více informací
Chystáte se prodat nemovitost?
Pomůžeme Vám!

Přihlášení k odběru

Nenechte si ujít nejnovější nabídky pronájmu kanceláří v Brně.