Prodej bytu 2+1, Šumperk, Revoluční, 55 m2

Revoluční, Šumperk

3 190 000 Kč
/za nemovitost
Hypotéka od 14 257 Kč /měs. Chci hypotéku

Parametry bytu

AdresaRevoluční, Šumperk
IDN114822
StavbaCihlová
Stav objektuDobrý
Patro4. z 5
VybavenoNe
VlastnictvíOsobní
Užitná plocha55 m2
Třída energetické náročnostiD - Méně úsporná
Elektřina230V
PlynPlynovod
OdpadVeřejná kanalizace
TopeníÚstřední dálkové
KomunikaceAsfaltová
VodaVodovod
Zdroj teplé vodyCentrální dálkový ohřev
Balkon
Sklep
Výtah
Bezbarierový přístup

Origo partneři v Šumperku

Popis

Cihlový byt s výbornou polohou a jistým investičním potenciálem? Tato 2+1 spojuje klidné bydlení s blízkostí centra města.

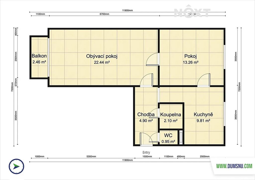
Byt s celkovou výměrou 55 m² se nachází ve 4. nadzemním podlaží udržovaného cihlového domu bez výtahu. Prošel rekonstrukcí a je připraven k okamžitému užívání nebo k pronájmu. Z vstupní chodby se dostanete do kuchyně, koupelny a samostatného WC, dále do obývacího pokoje s balkonem. Další pokoj je průchozí z obývacího pokoje i kuchyně.

K bytu náleží také sklepní kóje.

Vytápění i ohřev vody jsou řešeny centrálně z teplárny, což zaručuje pohodlný a úsporný provoz.

Lokalita je skvělá - v docházkové vzdálenosti najdete obchody, služby i centrum města. Parkování je možné přímo před domem.

Díky své poloze, dispozici a nízkým provozním nákladům je byt ideální jak pro vlastní bydlení, tak jako zajímavá investiční příležitost.

Neváhejte a domluvte si prohlídku – ráda Vám byt osobně představím! V rámci našeho realitního a finančního servisu Vám rádi pomůžeme i s nejvýhodnějším financováním nákupu. Pro komunikaci uvádějte evidenční číslo zakázky N114822.

Makléř

Máte zájem o tento byt?

Tímto, v souladu s nařízením Evropského parlamentu a Rady (EU) 2016/679, v platném znění, prohlašuji, že mi je alespoň 16 let a uděluji tak svůj souhlas se zpracováním zadaných údajů (jméno, telefon, e-mail, ip adresa) společnosti B3 Technology, s.r.o., IČ: 07330600, se sídlem Novostavby 126/23, 435 11 Lom (správce dat), za účelem předání dotazu z tohoto formuláře Vámi vybranému inzerentovi a zpětného kontaktování mé osoby. Osobní údaje bude správce zpracovávat manuálně i automaticky přímo prostřednictvím svých zaměstnanců. Informace předané tímto formulářem budou uloženy v databázi správce maximálně po dobu 10 let. Odvolání souhlasu s uložením a zpracováním poskytnutých dat lze e-mailem na info@origo-reality.cz. V případě podezření na neoprávněné použití Vámi poskytnutých údajů máte právo předat podnět k šetření Úřadu pro ochranu osobních údajů. Více informací
Chystáte se prodat nemovitost?
Pomůžeme Vám!

Přihlášení k odběru

Nenechte si ujít nejnovější nabídky prodeje bytů 2+1 v Šumperku.