Pronájem kanceláře, Praha - Nové Město, Václavské náměstí, 136 m2 (ID: 1880880)

Václavské náměstí, Praha, Nové Město

54 500 Kč
/za měsíc
Poplatky za služby a energie se hradí zvlášť.
Získejte výhodnou HYPOTÉKU Chci hypotéku

Parametry nemovitosti

AdresaVáclavské náměstí, Praha, Nové Město
IDN24298
StavbaCihlová
Stav objektuVelmi dobrý
Patro2.
VybavenoNe
Užitná plocha136 m2
Podlahová plocha136 m2
Třída energetické náročnostiG - Mimořádně nehospodárná
PlynPlynovod
OdpadVeřejná kanalizace
KomunikaceAsfaltová
TelekomunikaceTelefon
DopravaMHD
VodaVodovod
Garáž
Výtah

Origo partneři v Praze 1

Stěhovací služby

Výkup a prodej starého nábytku

Popis

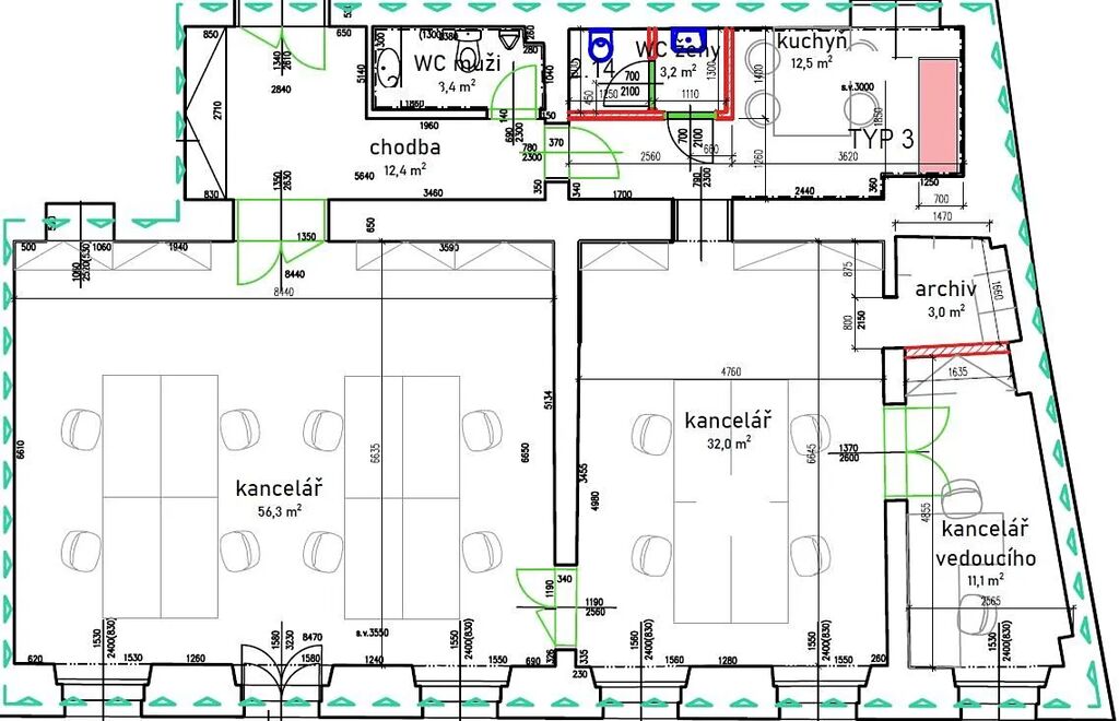
Klimatizované kancelářské prostory 3+1, o celkové užitné ploše 133,9m2, jsou situovány v prvním patře zrekonstruované historické budovy s výtahem, v prestižní lokalitě Nové Město na Praze 1, na Václavském náměstí.
Prostory jsou nezařízené a dispozičně nabízí vstupní chodbu (12,4m2), tři samostatné kanceláře (11,1m2, 32m2 a 56,3m2), čajovou kuchyňku (12,5m2) vybavenou spotřebiči (varná deska, lednice, myčka), dvě samostatné toalety (3,4m2 a 3,2m2) a archiv (3m2). Prostory jsou orientovány na Václavské náměstí. Na chodbě, toaletách, v kuchyňce a archivu jsou vinylové podlahy, v kancelářích jsou koberce. Ve všech místnostech jsou rozvody sítí (zásuvky, internet, optický kabel).
Velmi prestižní lokalita přímo na Václavském náměstí, s veškerou občanskou vybaveností v okolí (supermarkety, nákupní zóna, banky, restaurace, kavárny, bistra, pekárny, a mnoho dalšího) a v blízkosti historických památek centra Prahy. Výborná dopravní dostupnost MHD stanice metra A/C Muzeum, tramvajové zastávky Muzeum/Václavské náměstí.
Zálohové poplatky za služby 14.400, Kč / měs. a energie se hradí zvlášť. Vratná kauce 2 nájmy včetně poplatků. Provize RK.
Možnost pronájmu parkovacího místa dle volné kapacity.

Makléř

Máte zájem o tuto nemovistost?

Tímto, v souladu s nařízením Evropského parlamentu a Rady (EU) 2016/679, v platném znění, prohlašuji, že mi je alespoň 16 let a uděluji tak svůj souhlas se zpracováním zadaných údajů (jméno, telefon, e-mail, ip adresa) společnosti B3 Technology, s.r.o., IČ: 07330600, se sídlem Novostavby 126/23, 435 11 Lom (správce dat), za účelem předání dotazu z tohoto formuláře Vámi vybranému inzerentovi a zpětného kontaktování mé osoby. Osobní údaje bude správce zpracovávat manuálně i automaticky přímo prostřednictvím svých zaměstnanců. Informace předané tímto formulářem budou uloženy v databázi správce maximálně po dobu 10 let. Odvolání souhlasu s uložením a zpracováním poskytnutých dat lze e-mailem na info@origo-reality.cz. V případě podezření na neoprávněné použití Vámi poskytnutých údajů máte právo předat podnět k šetření Úřadu pro ochranu osobních údajů. Více informací
Chystáte se prodat nemovitost?
Pomůžeme Vám!

Přihlášení k odběru

Nenechte si ujít nejnovější nabídky pronájmu kanceláří v Praze 1.