Prodej vícegeneračního domu, Skorošice, 1220 m2

Skorošice

Cena na vyžádání
/za nemovitost
včetně provize a právního servisu spojeného s převodem nemovitosti
Získejte výhodnou HYPOTÉKU Chci hypotéku

Parametry domu

AdresaSkorošice
ID211-NP04505
StavbaCihlová
Stav objektuDobrý
Typ objektuPatrový
Druh objektuSamostatný
Lokalita objektuOkraj obce
Užitná plocha1220 m2
Zastavěná plocha869 m2
Plocha pozemku2442 m2
Plocha zahrady2442 m2
Elektřina230V, 400V
OdpadVeřejná kanalizace
KomunikaceAsfaltová
VodaVodovod
Převod do OV

Origo partneři v Skorošicích

Popis

Ve výhradním zastoupení společností RE/MAX Future, Vám tímto nabízíme ke koupi výrobně skladovací areál se 2 bytovými jednotkami a pozemkem o celkové výměře včetně zastavěných ploch 2 442 m², který díky své poloze a velikosti nabízí širokou škálu možného využití.

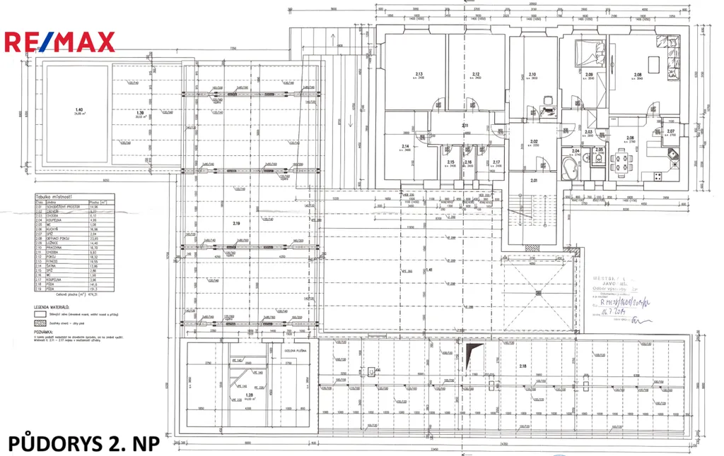
Dvoupodlažní budova s celkovou užitnou plochou 1 220 m², je aktuálně v 1. nadzemním podlaží dispozičně rozdělena na prostory výrobní, skladové a administrativní s odpovídajícím sociálním zázemím. Dominantním prostorem je 148 m² veliká dílna s výsuvnými vraty, která byla využívána pro servisování nákladních automobilů. K dispozici jsou rovněž 2 dvojgaráže.

Druhé nadzemní podlaží, do kterého se dostanete pohodlně skrze široké schodiště, nabízí 2 bytové jednotky. První byt o dispozici 2+1 a výměře 70 m² je rozdělen na obývací pokoj, ložnici, kuchyň s jídelnou, spíž, koupelnu s vanou a sprchovým koutem, toaletu, chodbu. Byt je připraven k užívání. Druhý byt o dispozici 3+1 a výměře 87 m² nabízí 3 samostatné pokoje, přípravu pro kuchyň, spíž, přípravu pro koupelnu, přípravu pro toaletu, chodbu.

Další prostory s možností budoucího užívání představuje prostorná půda a sklep.

Areál se nachází u silnice I. třídy I/60, která vede z Jeseníku přes Žulovou a Javorník až do Polska. Jedná se o výborně dopravně dostupnou lokalitu.

Vzhledem k užitné ploše, velikosti pozemku a celkovému objemu budovy, tuto nabídku za naši kancelář hodnotíme jako vysoce zajímavou.

V případě zájmu o bližší informace mě prosím kontaktujte pomocí e-mailu nebo telefonicky.

Jiří Samek - výhradní prodejce

Makléř

Máte zájem o tento dům?

Tímto, v souladu s nařízením Evropského parlamentu a Rady (EU) 2016/679, v platném znění, prohlašuji, že mi je alespoň 16 let a uděluji tak svůj souhlas se zpracováním zadaných údajů (jméno, telefon, e-mail, ip adresa) společnosti B3 Technology, s.r.o., IČ: 07330600, se sídlem Novostavby 126/23, 435 11 Lom (správce dat), za účelem předání dotazu z tohoto formuláře Vámi vybranému inzerentovi a zpětného kontaktování mé osoby. Osobní údaje bude správce zpracovávat manuálně i automaticky přímo prostřednictvím svých zaměstnanců. Informace předané tímto formulářem budou uloženy v databázi správce maximálně po dobu 10 let. Odvolání souhlasu s uložením a zpracováním poskytnutých dat lze e-mailem na info@origo-reality.cz. V případě podezření na neoprávněné použití Vámi poskytnutých údajů máte právo předat podnět k šetření Úřadu pro ochranu osobních údajů. Více informací
Chystáte se prodat nemovitost?
Pomůžeme Vám!

Přihlášení k odběru

Nenechte si ujít nejnovější nabídky prodeje vícegeneračních domů v Skorošicích.