Prodej rodinného domu, Malý Újezd, 153 m2 (ID: 1880574)

Malý Újezd, Vavřineč

7 190 000 Kč
/za nemovitost
Hypotéka od 32 135 Kč /měs. Chci hypotéku

Parametry domu

AdresaMalý Újezd, Vavřineč
StavbaCihlová
Stav objektuDobrý
Druh objektuSamostatný
Lokalita objektuCentrum obce
Užitná plocha153 m2
Zastavěná plocha135 m2
Plocha pozemku816 m2
Třída energetické náročnostiG - Mimořádně nehospodárná
Elektřina230V, 400V
OdpadVeřejná kanalizace
DopravaSilnice, Autobus
VodaVodovod
Zdroj topeníTepelné čerpadlo
Parkování

Origo partneři v Malém Újezdu

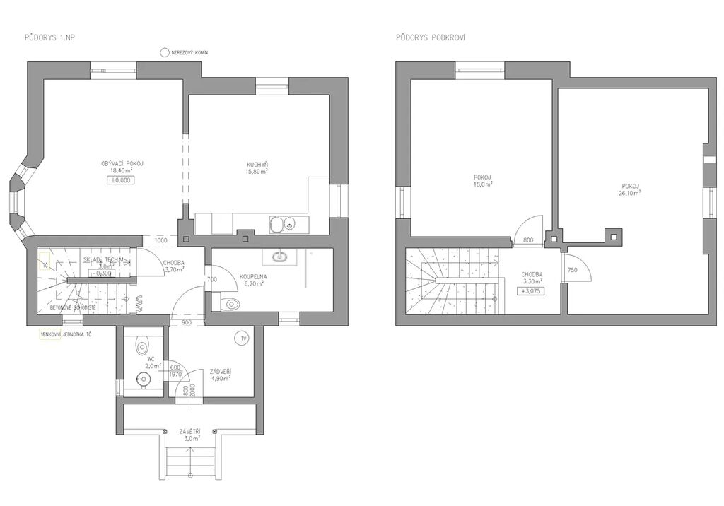
Popis

Nabízíme k prodeji samostatně stojící rodinný dům s pozemkem o celkové výměře 816 m² v obci Vavřineč u Mělníka. Dům má praktickou dispozici a je připraven k nastěhování.

Dispozice:
V přízemí najdete kuchyň s jídelnou, prostorný obývací pokoj, koupelnu, samostatné WC a technickou místnost. V obytném podkroví se nacházejí dvě útulné ložnice.

Technické vybavení:
Dům je napojen na obecní vodovod, kanalizaci a elektřinu. Vytápění zajišťuje tepelné čerpadlo. Teplá voda je ohřívána bojlerem.

Pozemek:
Pozemek je oplocený a nabízí dostatek prostoru pro relaxaci i praktické využití. Nachází se zde kolna o užitné ploše 52 m² – ideální pro dílnu, sklad či hobby využití. Možnost parkování přímo na pozemku.

Nemovitost představuje výbornou příležitost pro pohodlné rodinné bydlení v dostupné vzdálenosti od Mělníka i Prahy. Doporučujeme osobní prohlídku – neváhejte nás kontaktovat.

Makléř

Máte zájem o tento dům?

Tímto, v souladu s nařízením Evropského parlamentu a Rady (EU) 2016/679, v platném znění, prohlašuji, že mi je alespoň 16 let a uděluji tak svůj souhlas se zpracováním zadaných údajů (jméno, telefon, e-mail, ip adresa) společnosti B3 Technology, s.r.o., IČ: 07330600, se sídlem Novostavby 126/23, 435 11 Lom (správce dat), za účelem předání dotazu z tohoto formuláře Vámi vybranému inzerentovi a zpětného kontaktování mé osoby. Osobní údaje bude správce zpracovávat manuálně i automaticky přímo prostřednictvím svých zaměstnanců. Informace předané tímto formulářem budou uloženy v databázi správce maximálně po dobu 10 let. Odvolání souhlasu s uložením a zpracováním poskytnutých dat lze e-mailem na info@origo-reality.cz. V případě podezření na neoprávněné použití Vámi poskytnutých údajů máte právo předat podnět k šetření Úřadu pro ochranu osobních údajů. Více informací
Chystáte se prodat nemovitost?
Pomůžeme Vám!

Přihlášení k odběru

Nenechte si ujít nejnovější nabídky prodeje rodinných domů v Malém Újezdu.