Pronájem bytu 1+kk, Praha - Podolí, Doudova, 33 m2

Doudova, Podolí - Praha 4

18 900 Kč
/za měsíc
vratná jistota, náklady na bydlení 3 099 Kč, poplatek za podnájem
Získejte výhodnou HYPOTÉKU Chci hypotéku

Parametry bytu

AdresaDoudova, Podolí - Praha 4
IDN6913
StavbaCihlová
Stav objektuVelmi dobrý
Patro1. z 6
VybavenoNe
Typ objektuPatrový
Lokalita objektuKlidná část obce
VlastnictvíOsobní
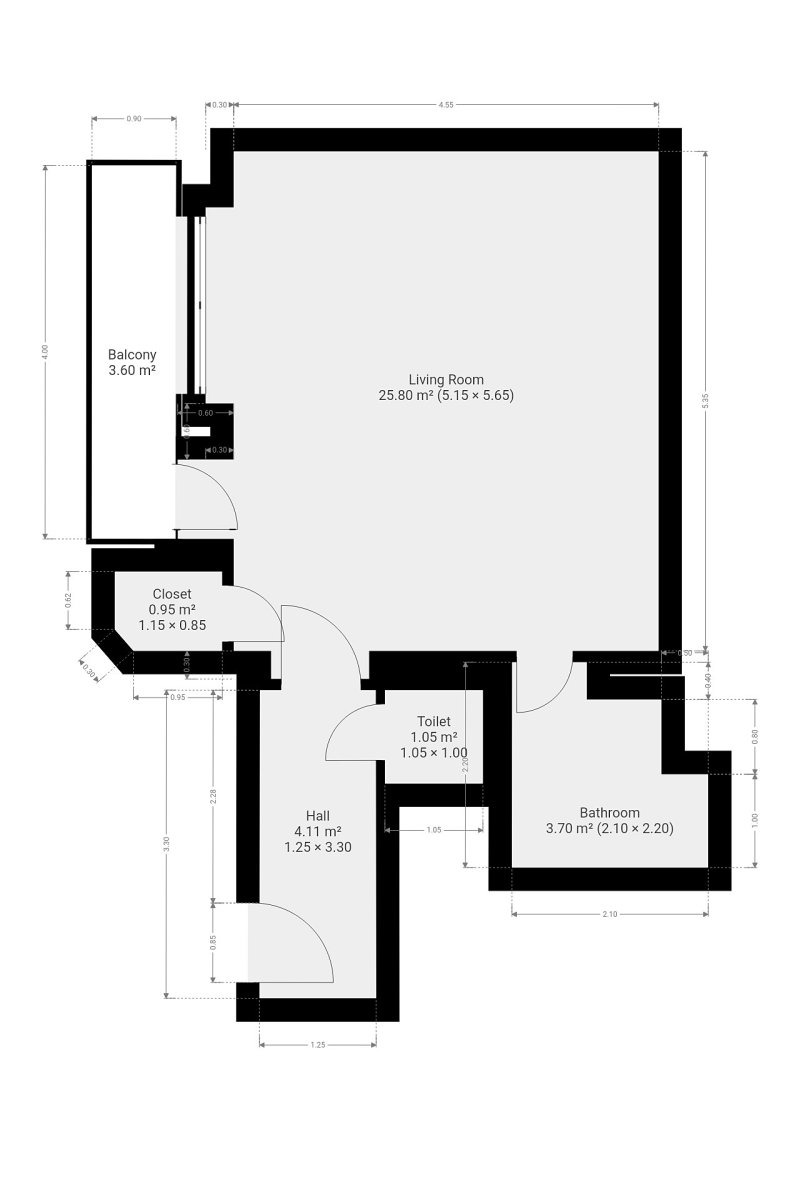
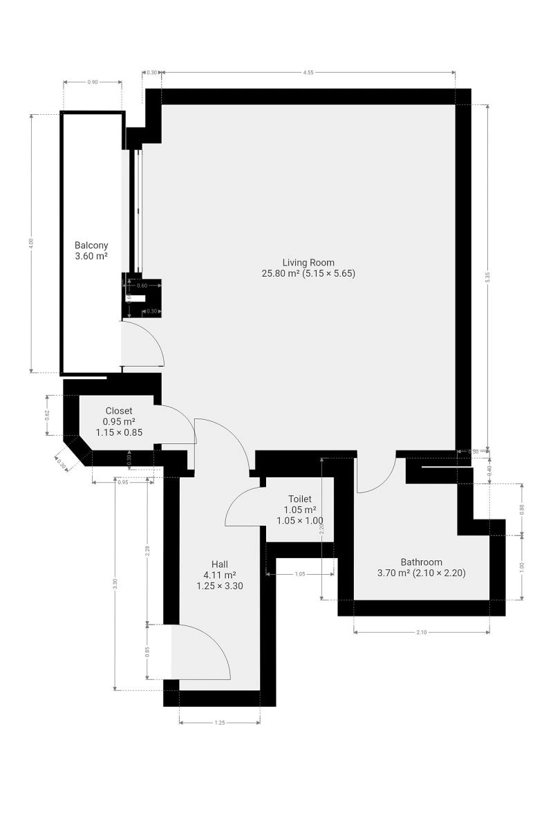
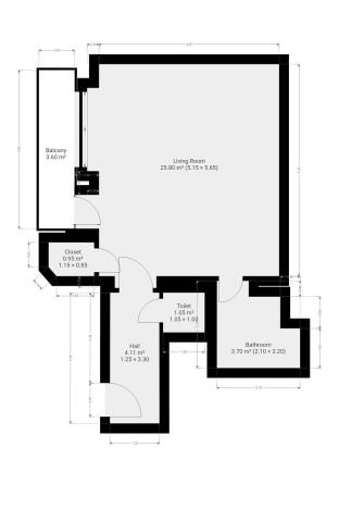
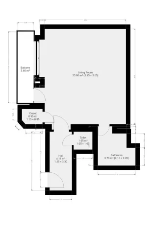
Užitná plocha33 m2
Podlahová plocha33 m2
Třída energetické náročnostiG - Mimořádně nehospodárná
Elektřina230V
TopeníLokální elektrické
DopravaVlak, Dálnice, Silnice, MHD, Autobus
VodaVodovod
Balkon
Sklep
Výtah

Origo partneři v Praze 4

Stěhovací služby

Výkup a prodej starého nábytku

Popis

K dlouhodobému podnájmu nabízíme krásný byt o dispozici 1+kk v klidné lokalitě Praha 4 - Podolí. Byt o celkové výměře 33 m² se nachází v přízemí zděného bytového domu. K bytu přísluší balkon a sklep a součástí bytu je také praktická komora.

Byt se nabízí nevybavený. Kuchyňský kout disponuje lednicí s mrazákem, pračkou a elektrickým sporákem. Obývací část je zařízena patrem na spaní. V koupelně je vana, umyvadlo a zrcadlo. Toaleta je umístěna samostatně.

V okolí domu najdeme restaurace a kavárny, prodejny potravin, lékárnu, plavecký stadion Podolí, sportovní areál Žluté lázně, parkově upravený a veřejně přístupný areál Vyšehrad atd. Pár minut chůze od domu je vzdálena autobusová zastávka Doliny a tramvajová zastávka Podolská vodárna a v docházkové vzdálenosti je stanice metra C - Pražského povstání.

Byt je volný k nastěhování ihned.

Energetická třída: G (průkaz nedodán).

Makléř

Máte zájem o tento byt?

Tímto, v souladu s nařízením Evropského parlamentu a Rady (EU) 2016/679, v platném znění, prohlašuji, že mi je alespoň 16 let a uděluji tak svůj souhlas se zpracováním zadaných údajů (jméno, telefon, e-mail, ip adresa) společnosti B3 Technology, s.r.o., IČ: 07330600, se sídlem Novostavby 126/23, 435 11 Lom (správce dat), za účelem předání dotazu z tohoto formuláře Vámi vybranému inzerentovi a zpětného kontaktování mé osoby. Osobní údaje bude správce zpracovávat manuálně i automaticky přímo prostřednictvím svých zaměstnanců. Informace předané tímto formulářem budou uloženy v databázi správce maximálně po dobu 10 let. Odvolání souhlasu s uložením a zpracováním poskytnutých dat lze e-mailem na info@origo-reality.cz. V případě podezření na neoprávněné použití Vámi poskytnutých údajů máte právo předat podnět k šetření Úřadu pro ochranu osobních údajů. Více informací
Chystáte se prodat nemovitost?
Pomůžeme Vám!