Prodej rodinného domu, Květnice, Sosnová, 104 m2

Sosnová, Květnice

13 400 000 Kč
/za nemovitost
včetně provize realitní kanceláře a právních služeb
Hypotéka od 59 890 Kč /měs. Chci hypotéku

Parametry domu

AdresaSosnová, Květnice
StavbaDřevěná
Stav objektuNovostavba
Druh objektuSamostatný
Užitná plocha104 m2
Plocha pozemku546 m2
Plocha zahrady481 m2
Třída energetické náročnostiD - Méně úsporná
Elektřina230V, 400V
OdpadVeřejná kanalizace
DopravaVlak, Dálnice, Silnice, MHD, Autobus
VodaVodovod, Studna
Zdroj topeníPlynový kondenzační kotel
Parkování

Origo partneři v Květnici

Popis

Hledáte energeticky úsporný dům 3 km od hranice Prahy ?

Přicházíme s prodejem krásného domu, dřevostavba 4+kk o ploše 104 m2 s pozemkem 546 m2, v klidné obci Květnice. K domu náleží parkovací přístřešek pro 2 auta (30 m2) a praktická technická místnost 6 m2.

Nízké náklady na provoz domu, 30 minut jízdy autem či vlakem do centra Prahy.

Předností domu velké pokoje, krásně udržovaná zahrada, útulný krb, moderní kuchyň, dvě velké koupelny. Dům zabezpečen alarmem. Kolaudace domu 2005, inženýrských sítí 2008.

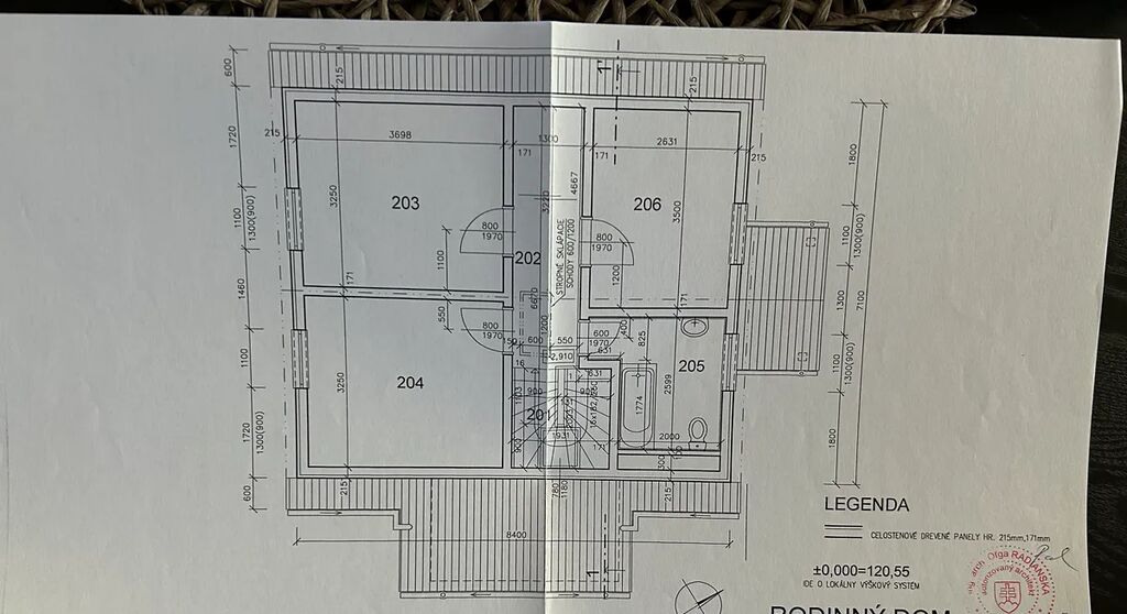
Tato dřevostavba 4+kk o ploše 104 m2 spojuje moderní design a praktičnost. Do domu vstoupíme vkusně řešenou chodbou (8 m2) kde se nachází hodně úložných prostor a skříně.

Chodbou dále pokračujeme do praktické koupelny se sprchovým koutem a toaletou (4,42 m2), v zadní části pračka se sušičkou a plynový kondenzační kotel Baxi.

Poté se nám otevře prostor zádveří, ze kterého vejdeme do prostorného obývacího pokoje s kuchyní a krbem (33 m2), který dodává domovu teplo i atmosféru. Z útulného obývacího pokoje je přímý vstup na krytou terasu (17 m2) a krásně udržovanou zahradu. Oceníte zde příjemné posezení nejen v jarních v letních měsících.

Obývací pokoj příjemně navazuje na moderní kuchyňskou linku, prakticky propojena s jídelní částí, ideální pro rodinné vaření a posezení. Kuchyň vybavena značkovými spotřebiči (myčka Bosch, horkovzdušná trouba Electrolux, plynová varná deska, mikrovlnka Electrolux a lednice Liebherr). Vedle kuchyně se nachází spíž (3,22 m2), další úložný prostor.

V patře domu se nachází tři pokoje, šatna a druhá koupelna s vanou a toaletou.

První pokoj je dětský pokoj (12 m2) s pracovním koutem a vestavěnými skříněmi na míru. Na něj navazuje druhý dětský pokoj (12 m2), také s pracovním stolem a vestavěnými skříněmi na míru.

Dále se zde nachází útulná ložnice (9,21 m2). Všechny místnosti mají vnitřní žaluzie, ze všech pokojů krásné výhledy do zeleně a okolí.

Druhá koupelna s vanou a toaletou (5,72 m2) doplňuje komfort celého patra. V koupelně radiátor a topný žebřík.

Součástí patra je také šatna a další úložné prostory. Přes celé patro domu se nachází půda kde jsou uskladněny sportovní potřeby a další věci.

V chodbě a koupelnách dlažba, obývací pokoj, kuchyň a pokoje plovoucí podlaha.

K domu náleží krásně udržovaná zahrada, která poskytuje naprosté soukromí. Příjemné posezení umožňuje zastřešená terasa (17 m2).

Technická místnost (6 m2) v zadní části domu, parkovací přístřešek pro dvě auta.

V blízkosti se nachází školka, obchody, krásná příroda pro procházky nebo cyklovýlety. Rychlé spojení autem, busem či vlakem do Prahy (vlaková zastávka Klánovice/Úvaly). Perfektní bydlení pro rodinný život.

Doporučujeme prohlídku tohoto pěkného domu. Pro více informací či prohlídku mě neváhejte kontaktovat.

Makléř

Máte zájem o tento dům?

Tímto, v souladu s nařízením Evropského parlamentu a Rady (EU) 2016/679, v platném znění, prohlašuji, že mi je alespoň 16 let a uděluji tak svůj souhlas se zpracováním zadaných údajů (jméno, telefon, e-mail, ip adresa) společnosti B3 Technology, s.r.o., IČ: 07330600, se sídlem Novostavby 126/23, 435 11 Lom (správce dat), za účelem předání dotazu z tohoto formuláře Vámi vybranému inzerentovi a zpětného kontaktování mé osoby. Osobní údaje bude správce zpracovávat manuálně i automaticky přímo prostřednictvím svých zaměstnanců. Informace předané tímto formulářem budou uloženy v databázi správce maximálně po dobu 10 let. Odvolání souhlasu s uložením a zpracováním poskytnutých dat lze e-mailem na info@origo-reality.cz. V případě podezření na neoprávněné použití Vámi poskytnutých údajů máte právo předat podnět k šetření Úřadu pro ochranu osobních údajů. Více informací
Chystáte se prodat nemovitost?
Pomůžeme Vám!

Přihlášení k odběru

Nenechte si ujít nejnovější nabídky prodeje rodinných domů v Květnici.