Prodej atypického bytu, Praha - Karlín, Šaldova, 194 m2 (ID: 1879089)

Šaldova, Praha, Karlín

31 990 000 Kč
/za nemovitost
Hypotéka od 142 976 Kč /měs. Chci hypotéku

Parametry bytu

AdresaŠaldova, Praha, Karlín
ID967136
StavbaSmíšená
Stav objektuDobrý
Patro5. z 7
VybavenoČástečně
VlastnictvíOsobní
Užitná plocha194 m2
Podlahová plocha163 m2
Třída energetické náročnostiG - Mimořádně nehospodárná
Elektřina230V
OdpadVeřejná kanalizace
KomunikaceAsfaltová
TelekomunikaceTelefon, Internet
DopravaMHD
VodaVodovod
Topné tělesoPodlahové vytápění
Zdroj topeníÚstřední dálkové
Garáž
Sklep
Lodžie
Výtah
Parkování

Origo partneři v Praze 8

Stěhovací služby

Výkup a prodej starého nábytku

Popis

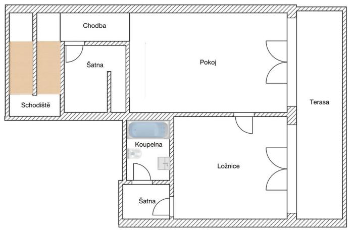
Nabízíme k prodeji exkluzivní bydlení v jedné z nejžádanějších pražských lokalit – v Karlíně, v ulici Šaldova, která leží v srdci městské části Prahy 8. Vstup do prostorného bytu se nachází ve čtvrtém podlaží zrekonstruovaného domu s výtahem.

Celková užitná plocha bytu v osobním vlastnictví s dispozicí 5+KK a třemi koupelnami (na každém podlaží jedna) činí 193,84 m², z čehož čistá obytná plocha je 163,86 m². Byt disponuje shodně prostornou lodžií, umístěnou v nižším podlaží, která je uzavíratelná posuvnými skly a terasou ve vyšším podlaží. Každá z nich má výměru 14,99 m². Praktická je též prostorná šatna na podlaží u manželské ložnice.
Vysoká kvalita interiéru bytu s důrazem na detail a moderní životní styl (kuchyňská linka s ostrůvkem), podtrhuje nadstandardní obytné podmínky. U kuchyně je také k dispozici spíž o výměře 4,87 m2.
Byt poskytuje nejen dostatek soukromí a klidu, ale také unikátní panoramatický výhled, který zvyšuje estetický zážitek z bydlení. Zvláště působivá je uzavíratelná lodžie, která je ideálním místem pro oddych a relaxaci, nabízí klid uprostřed rušného města. Orientace bytu je na východ a západ.
K bytu náleží dvě kóje umístěné v suterénu za parkovacími stáními, tyto kóje jsou každá o rozměru 9,5 m². Vlastní parkovací stání v této části města představuje velkou výhodu, zejména pak tyto, jelikož jsou přímo naproti výjezdu z podzemní garáže.
Dům, kde se byt nachází, prošel kompletní rekonstrukcí s důrazem na zanechání industriálních prvků, disponuje moderním technickým vybavením, včetně kabelového internetu, centrálního vytápění a klimatizací.
Co se týče lokality, Karlín je známý svým bohatým kulturním životem, skvělými restauracemi, kavárnami a parky, které jsou ideální pro volnočasové aktivity. Obslužnost veřejnou dopravou je na té nejvyšší úrovni díky blízkosti tramvajových zastávek i stanice metra, což zajišťuje rychlou dostupnost do centra města.
Všechny uvedené vlastnosti a vybavení s výhledy, atypické i praktické prvky, by měly splnit očekávání nejnáročnějších klientů hledajících luxusní a přitom útulné bydlení.

Cena tohoto mimořádného bytu je 34.900.000 CZK.
Byt je možné financovat hypotékou.

Nezávazné prohlídky a další konzultace jsou možné na základě telefonické, emailové dohody, přičemž nabízím maximální flexibilitu a přizpůsobení se požadavkům zákazníka, zejména o víkendech.
Tato nemovitost představuje výjimečnou příležitost pro ty, kteří hledají kvalitní domov v atraktivní části Prahy.
Těším se na viděnou.

Makléř

Máte zájem o tento byt?

Tímto, v souladu s nařízením Evropského parlamentu a Rady (EU) 2016/679, v platném znění, prohlašuji, že mi je alespoň 16 let a uděluji tak svůj souhlas se zpracováním zadaných údajů (jméno, telefon, e-mail, ip adresa) společnosti B3 Technology, s.r.o., IČ: 07330600, se sídlem Novostavby 126/23, 435 11 Lom (správce dat), za účelem předání dotazu z tohoto formuláře Vámi vybranému inzerentovi a zpětného kontaktování mé osoby. Osobní údaje bude správce zpracovávat manuálně i automaticky přímo prostřednictvím svých zaměstnanců. Informace předané tímto formulářem budou uloženy v databázi správce maximálně po dobu 10 let. Odvolání souhlasu s uložením a zpracováním poskytnutých dat lze e-mailem na info@origo-reality.cz. V případě podezření na neoprávněné použití Vámi poskytnutých údajů máte právo předat podnět k šetření Úřadu pro ochranu osobních údajů. Více informací
Chystáte se prodat nemovitost?
Pomůžeme Vám!

Přihlášení k odběru

Nenechte si ujít nejnovější nabídky prodeje atypických bytů v Praze 8.