Prodej domu na klíč, Světlá nad Sázavou, 169 m2 (ID: 1879076)

Světlá nad Sázavou

8 552 000 Kč
/za nemovitost
Hypotéka od 38 222 Kč /měs. Chci hypotéku

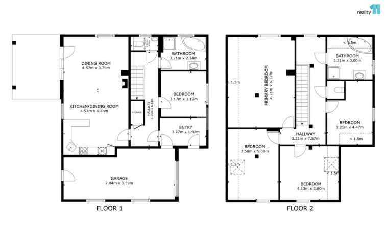
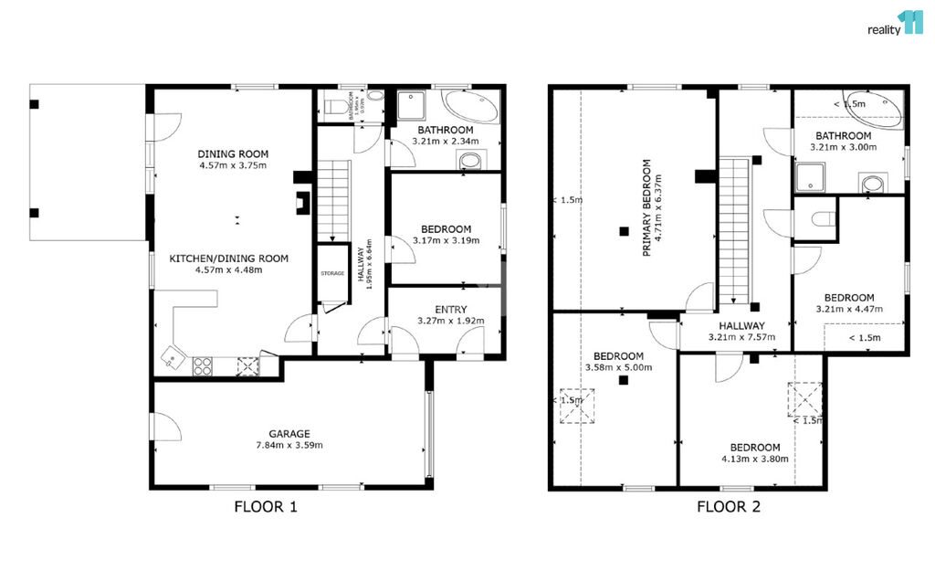
Parametry domu

AdresaSvětlá nad Sázavou
ID27872
StavbaDřevěná
Stav objektuNovostavba
Typ objektuPatrový
Druh objektuSamostatný
Lokalita objektuKlidná část obce
Užitná plocha169 m2
Zastavěná plocha118 m2
Podlahová plocha169 m2
Plocha pozemku426 m2
Třída energetické náročnostiA - Mimořádně úsporná
Garáž
Terasa
Parkování

Origo partneři v Světlé nad Sázavou

Pojištění a finance

Popis

Na okraji města Světlá nad Sázavou, v prostředí, kde se příroda Vysočiny potkává s moderním životním stylem, vzniká nová rezidence Na Kalvárii, která přináší 26 nízkoenergetických rodinných domů v podobě dřevostaveb, navržených s důrazem na funkčnost, kvalitu a úsporu energie.

Vybírat můžete ze tří typových domů – řadové domy, dvojdomky nebo samostatné rodinné domy. V rezidenci Na Kalvárii jsou k dispozici buď zcela dokončené domy na klíč, nebo si můžete interiér doladit podle vlastních představ. Každý detail je promyšlený tak, aby nový domov byl nejen krásný, ale i praktický.

Tento samostatný dům s dispozicí 5+kk nabízí dostatek prostoru pro celou rodinu. Otevřený obývací prostor s kuchyní plynule přechází na terasu orientovanou na jih, kam po celý den proudí světlo. Každý dům je vybaven tepelným čerpadlem a fotovoltaickou elektrárnou, což zajišťuje nízké provozní náklady. Nechybí ani krbová kamna, která jistě oceníte během chladnějších dnů. Součástí je zahrada ideální pro rodinné chvíle i relax, nechybí ani možnost bezproblémového parkování v garáži, která je součástí domu.

Nově vznikající čtvrť nabídne moderní prostředí s přátelskou komunitou a pohodovou atmosférou. Díky skvělé dopravní dostupnosti se z lokality snadno dostanete kamkoliv. Na dálnici D1 jste během několika minut, Praha je vzdálena přibližně hodinu cesty, Brno asi hodinu a čtvrt. A v nejbližších letech se cestování ještě zrychlí – připravovaná rychlodráha ze Světlé zkrátí cestu do Prahy na pouhých 30 minut.

Světlá nad Sázavou nabízí vše, co k pohodlnému životu potřebujete – školy, školky, obchody, služby i zdravotní péči. Centrum města máte pár minut chůze od domova a přitom jste na dosah nádherné přírody Vysočiny.

Za projektem stojí lokální renomovaná stavební firma, která propojuje poctivou řemeslnou práci s moderními technologiemi a důrazem na energetickou úspornost. Výsledkem jsou domy, které nejen skvěle vypadají, ale také šetří Vaše náklady.

Fotky Vám mohou napovědět, ale skutečný dojem poznáte až tehdy, když se ocitnete přímo na místě. Projít si ulicí, otevřít dveře typových domů a nacítit atmosféru nově vznikající čtvrti – to je chvíle, kdy pochopíte, proč je rezidence Na Kalvárii výjimečná.

K dispozici máme také 3D virtuální prohlídku, která Vám umožní projít si dům pohodlně z domova a udělat si představu o dispozici i prostoru. Prohlídku na vyžádání velmi rád zašlu.

Kontaktujte mě a domluvte si osobní prohlídku – rád Vám projekt představím a nasdílím s Vámi všechny možné varianty domů, které jsou aktuálně dostupné. Ev. číslo: 27872.

Makléř

Máte zájem o tento dům?

Tímto, v souladu s nařízením Evropského parlamentu a Rady (EU) 2016/679, v platném znění, prohlašuji, že mi je alespoň 16 let a uděluji tak svůj souhlas se zpracováním zadaných údajů (jméno, telefon, e-mail, ip adresa) společnosti B3 Technology, s.r.o., IČ: 07330600, se sídlem Novostavby 126/23, 435 11 Lom (správce dat), za účelem předání dotazu z tohoto formuláře Vámi vybranému inzerentovi a zpětného kontaktování mé osoby. Osobní údaje bude správce zpracovávat manuálně i automaticky přímo prostřednictvím svých zaměstnanců. Informace předané tímto formulářem budou uloženy v databázi správce maximálně po dobu 10 let. Odvolání souhlasu s uložením a zpracováním poskytnutých dat lze e-mailem na info@origo-reality.cz. V případě podezření na neoprávněné použití Vámi poskytnutých údajů máte právo předat podnět k šetření Úřadu pro ochranu osobních údajů. Více informací
Chystáte se prodat nemovitost?
Pomůžeme Vám!
Theleadway banner

Přihlášení k odběru

Nenechte si ujít nejnovější nabídky prodeje domů na klíč v Světlé nad Sázavou.