Pronájem bytu 2+kk, Brno - Žebětín, Říčanská, 58 m2 (ID: 1878915)

Říčanská, Brno, Žebětín

16 000 Kč
/za měsíc
+ GS 1000Kč, inkaso 4.000Kč + provize
Získejte výhodnou HYPOTÉKU Chci hypotéku

Parametry bytu

AdresaŘíčanská, Brno, Žebětín
IDN01879
StavbaCihlová
Stav objektuVelmi dobrý
Patro2. z 5
VybavenoAno
Lokalita objektuKlidná část obce
VlastnictvíOsobní
Užitná plocha58 m2
Podlahová plocha58 m2
Třída energetické náročnostiG - Mimořádně nehospodárná
DopravaSilnice, MHD, Autobus
Garáž
Parkování

Origo partneři v Brně

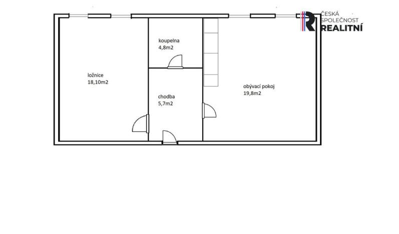
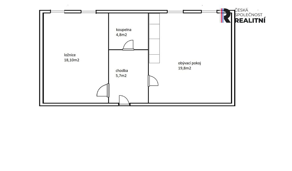
Popis

Hledáme nového nájemníka/ky pro slunný, útulný byt s garážovým stáním v bytovém domě.

Jedná se o prakticky vybavenou bytovou jednotku v cihlovém domě s dispozicí 2+kk na ulici Říčanská, mezi městskými části Bystrc a Žebětín, na sídlišti zvaném Kamechy. V těsné blízkosti přírody, zároveň s dobrou dostupností do centra. Výměra 48,5m2.

Obývací pokoj je vybaven komodou s knihovnou, skříňkou, TV stolkem, rozkládací sedačkou.
Jídelní část, kuchyňskou linkou se spotřebiči: myčka nádobí, mikrovlnná trouba, sklokeramická deska s horkovzdušnou troubou, lednice s mrazákem.

Ložnice disponuje velkou šatní skříní, psacím stolem, židlí a knihovnou.

Na chodbě se nachází věšáková stěna a vestavěná skříň.

V koupelně vana, WC, pračka.

Byt je vhodný pro 1 - 2.osoby.

Majitel preferuje nájemníky, kteří budou mít zájem i o parkovací stání ( výhodněji + 1000Kč/měsíc ) v společné garáži v bytovém domě v 2.PP.
Dostupné výtahem, žádné zbytečné kroky mimo budovu.

Měsíční náklady bytu + garážového stání : 4.000Kč/1.osoba, 4300Kč /2.osoby.
Nájemné: byt 16.000Kč + výhodně garážové stání 1000Kč (17.000Kč), jistota 32.000Kč: splatnost lze rozdělit na dvě části.
K nastěhování od ledna 2026.


Sídliště Kamechy skloubení bydlení ve městě a přitom v přírodě, převážně zde bydlí rodiny s dětmi, mladí lidé ale i starší. Je zde možnost i sportovního vyžití: multifunkční hřiště pro děti i dospělé, vycházky, cyklostezky, možnost běžkařských stop, vyjížďky na koni.
Městská část disponuje s veškerou občanskou vybaveností. MHD 50m

Makléř

Máte zájem o tento byt?

Tímto, v souladu s nařízením Evropského parlamentu a Rady (EU) 2016/679, v platném znění, prohlašuji, že mi je alespoň 16 let a uděluji tak svůj souhlas se zpracováním zadaných údajů (jméno, telefon, e-mail, ip adresa) společnosti B3 Technology, s.r.o., IČ: 07330600, se sídlem Novostavby 126/23, 435 11 Lom (správce dat), za účelem předání dotazu z tohoto formuláře Vámi vybranému inzerentovi a zpětného kontaktování mé osoby. Osobní údaje bude správce zpracovávat manuálně i automaticky přímo prostřednictvím svých zaměstnanců. Informace předané tímto formulářem budou uloženy v databázi správce maximálně po dobu 10 let. Odvolání souhlasu s uložením a zpracováním poskytnutých dat lze e-mailem na info@origo-reality.cz. V případě podezření na neoprávněné použití Vámi poskytnutých údajů máte právo předat podnět k šetření Úřadu pro ochranu osobních údajů. Více informací
Chystáte se prodat nemovitost?
Pomůžeme Vám!

Přihlášení k odběru

Nenechte si ujít nejnovější nabídky pronájmu bytů 2+kk v Brně.