Prodej bytu 2+kk, Cihelna, Kunětická, 42 m2

Kunětická, Cihelna

3 990 000 Kč
/za nemovitost
cena včetně služeb RK, může být zvýšena vlivem vyššího počtu zájemců
Hypotéka od 17 833 Kč /měs. Chci hypotéku

Parametry bytu

AdresaKunětická, Cihelna
IDXA-170B
StavbaPanelová
Stav objektuDobrý
Patro6.
Typ objektuPřízemní
VlastnictvíOsobní
Užitná plocha42 m2
Podlahová plocha42 m2
Třída energetické náročnostiC - Úsporná
Elektřina230V
PlynPlynovod
OdpadVeřejná kanalizace
TopeníÚstřední dálkové
KomunikaceAsfaltová
TelekomunikaceInternet
DopravaMHD
VodaVodovod
Topné tělesoRadiátory
Zdroj topeníÚstřední dálkové
Sklep
Výtah
Bezbarierový přístup

Origo partneři

Popis

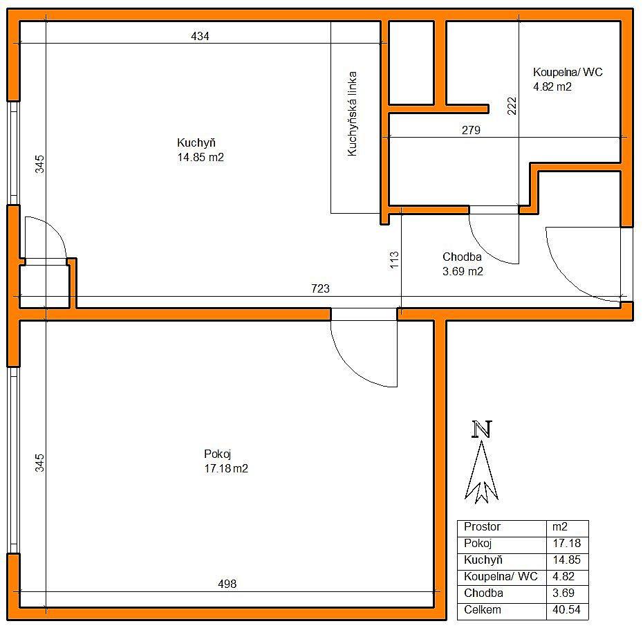
Dobrý den, vítám Vás na stránce s nabídkou bytu o dispozici 2+kk, který se nachází v 6.NP bytového domu v ulici Kunětická, na pardubickém sídlišti zvaném Cihelna.

Tento byt by se dal také nazvat jako investiční nebo startovní bydlení pro mladý pár nebo naopak pro rozvedeného či singl žijícího uživatele. A nejen to, v bytě se dá bydlet i s dítětem do určitého věku.

V minulosti proběhla rekonstrukce bytového jádra. Byt působí vzdušně a světle. Orientovaný je na západní světovou stranu.

Aktuálně je obsazen nájemcem s nájemní smlouvou na dobu určitou, a to do 30.04.2026. Stávající nájemce by rád v nájmu pokračoval. Je nájemcem již více jak 4 roky. Byt je zajímavou investicí, protože byty v této lokalitě se velmi dobře pronajímají.

Doplňující informace:
Plocha bytu: podle dokumentace 42,6 m2 včetně sklepní kóje o výměře 1,4 m2.
Umístění bytu: 6.NP bytového domu.
Lokalita: ulice Kunětická č.p.115, Pardubice.
Fond oprav: 1065 Kč měsíčně.
Průkaz energetické náročnosti budovy - C.

Pět důvodů proč uvažovat o koupi:
1. Investiční potenciál.
2. Oblíbená lokalita.
3. Technický stav bytu.
4. Dostupnost služeb.
5. Jeden z nejzajímavějších malých bytů v aktuální nabídce.

Děkuji, Václav Růžička, realitní specialista.

Prodávající si vyhrazuje právo na výběr kupujícího dle vlastní úvahy (způsob úhrady a výše kupní ceny, serióznost jednání apod.).

Makléř

Máte zájem o tento byt?

Tímto, v souladu s nařízením Evropského parlamentu a Rady (EU) 2016/679, v platném znění, prohlašuji, že mi je alespoň 16 let a uděluji tak svůj souhlas se zpracováním zadaných údajů (jméno, telefon, e-mail, ip adresa) společnosti B3 Technology, s.r.o., IČ: 07330600, se sídlem Novostavby 126/23, 435 11 Lom (správce dat), za účelem předání dotazu z tohoto formuláře Vámi vybranému inzerentovi a zpětného kontaktování mé osoby. Osobní údaje bude správce zpracovávat manuálně i automaticky přímo prostřednictvím svých zaměstnanců. Informace předané tímto formulářem budou uloženy v databázi správce maximálně po dobu 10 let. Odvolání souhlasu s uložením a zpracováním poskytnutých dat lze e-mailem na info@origo-reality.cz. V případě podezření na neoprávněné použití Vámi poskytnutých údajů máte právo předat podnět k šetření Úřadu pro ochranu osobních údajů. Více informací
Chystáte se prodat nemovitost?
Pomůžeme Vám!