Prodej bytu 1+kk, Praha - Řepy, Laudova, 37 m2

Laudova, Praha 6, Řepy

5 300 000 Kč
/za nemovitost
cena je kompletní a obsahuje všechny poplatky a služby
Hypotéka od 23 688 Kč /měs. Chci hypotéku

Parametry bytu

AdresaLaudova, Praha 6, Řepy
IDN00452
StavbaPanelová
Stav objektuVelmi dobrý
Patro8. z 6
VybavenoNe
Lokalita objektuKlidná část obce
VlastnictvíOsobní
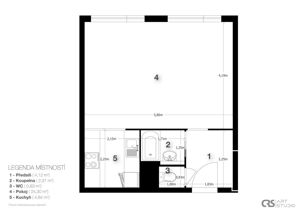
Užitná plocha37 m2
Podlahová plocha37 m2
Třída energetické náročnostiG - Mimořádně nehospodárná
OdpadVeřejná kanalizace
TopeníÚstřední dálkové
DopravaSilnice, MHD, Autobus
VodaVodovod
Sklep

Origo partneři v Praze 6

Stěhovací služby

Výkup a prodej starého nábytku

Popis

Exkluzivně vám nabízím k prodeji byt ve vlastnictví s dispozicí 1+kk se sklepem na adrese Laudova 1386/33, Praha 17 - Řepy.
Chcete bydlet v bytě v klidné lokalitě, s dobrou dostupností v žádané lokalitě? Nebo chcete investovat do bytu vhodného pro dlouhodobý pronájem? Máme pro vás jedinečnou nabídku!
O nemovitosti:
•Adresa: Laudova 1386/33, Praha 17 - Řepy
•Dispozice: 1+kk
•Rozloha: 37,4 m² + sklep 2 m²
•Umístění: 5. patro (6. nadzemní podlaží) v panelovém bytovém domě s výtahem
•Vlastnictví: Osobní (možnost financování hypotéčním úvěrem)
•Parkování: v okolí domu je mnoho volných parkovacích míst
•Sklep: 2 m² úložného prostoru suterénu domu
Přednosti bytu:
•Prostorný obývací pokoj s kuchyňským koutem a místem na spaní.
•Sklep, jako úložný prostor
•Byt po rekonstrukci
Investiční příležitost:
•Vhodné pro vlastní bydlení i jako investice.
•Atraktivní nájmy: Potenciál pro stabilní a zajímavý příjem z pronájmu
Financování:
•Byt je v osobním vlastnictví: Nákup lze financovat hypotečním úvěrem
Neváhejte a domluvte si prohlídku ještě dnes!
Kontaktujte nás pro více informací a přijďte se přesvědčit, že tento byt je tím pravým místem pro váš nový domov nebo investici. Vaše vysněné bydlení čeká právě na vás!

Makléř

Máte zájem o tento byt?

Tímto, v souladu s nařízením Evropského parlamentu a Rady (EU) 2016/679, v platném znění, prohlašuji, že mi je alespoň 16 let a uděluji tak svůj souhlas se zpracováním zadaných údajů (jméno, telefon, e-mail, ip adresa) společnosti B3 Technology, s.r.o., IČ: 07330600, se sídlem Novostavby 126/23, 435 11 Lom (správce dat), za účelem předání dotazu z tohoto formuláře Vámi vybranému inzerentovi a zpětného kontaktování mé osoby. Osobní údaje bude správce zpracovávat manuálně i automaticky přímo prostřednictvím svých zaměstnanců. Informace předané tímto formulářem budou uloženy v databázi správce maximálně po dobu 10 let. Odvolání souhlasu s uložením a zpracováním poskytnutých dat lze e-mailem na info@origo-reality.cz. V případě podezření na neoprávněné použití Vámi poskytnutých údajů máte právo předat podnět k šetření Úřadu pro ochranu osobních údajů. Více informací
Chystáte se prodat nemovitost?
Pomůžeme Vám!

Přihlášení k odběru

Nenechte si ujít nejnovější nabídky prodeje bytů 1+kk v Praze 6.