Prodej rodinného domu, Uhlířské Janovice, Luční, 150 m2

Luční, Uhlířské Janovice

2 900 000 Kč
/za nemovitost
Hypotéka od 12 961 Kč /měs. Chci hypotéku

Parametry domu

AdresaLuční, Uhlířské Janovice
IDUhlířské Janovice
StavbaSmíšená
Stav objektuDobrý
Užitná plocha150 m2
Plocha pozemku323 m2
Sklep

Origo partneři v Uhlířských Janovicích

Popis

Rodinný dům 3+1 s ovocnou zahradou a stodolou v centru Uhlířských Janovic
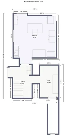
Nabízíme k prodeji rodinný dům 3+1 v malebném městě Uhlířské Janovice, který kombinuje bydlení s pohodlnou dostupností veškeré občanské vybavenosti. Dům stojí na pozemku o celkové výměře 323 m² a nabízí zastavěnou plochu 115 m² a užitnou plochu 150 m². Součástí nemovitosti je také prostorná stodola a půda, kde je možné realizovat další obytné prostory podle vlastních představ.
V přízemí domu se nachází útulná kuchyně s původními klenutými stropy, která dává prostoru historické kouzlo a neopakovatelnou atmosféru. Dále je zde předsíň, dva sklepy a samostatný vstup do místnosti vhodné jako dílna nebo sklad. Součástí přízemí je také suché WC.
Po schodech se dostaneme do patra, kde se nachází dvě prosluněné ložnice a jeden průchozí pokoj. Z patra je přímý vstup na zahradu s ovocnými stromy, ideální pro relaxaci, zahradničení nebo rodinné aktivity. Součástí patra je také stodola, ze které vede vstup na půdu, kde je možné vytvořit další obytné pokoje, pracovnu nebo ateliér podle vašich potřeb.
Dům se nachází v centru města, v těsné blízkosti historického náměstí, což zaručuje pohodlný přístup ke škole, školce, obchodům, lékárně, restauracím a dalším službám. Nemovitost je napojena na elektřinu 380 V, kanalizace je vedena před domem na pozemku domu, plynová přípojka je ukončena na fasádě domu, vodovod je zaveden, což umožňuje rychlé a komfortní připojení všech potřebných sítí, vytápění zajišťuji kamna v každé místnosti.
Tento rodinný dům nabízí kombinaci historického kouzla, praktického dispozičního řešení a možnosti rozšíření obytných prostor, což z něj činí ideální volbu pro rodinu hledající klidné a zároveň centrální bydlení.Energetický štítek není k dispozici - je zpracováván, proto dle zákona musíme uvádět třídu G.

Makléř

Máte zájem o tento dům?

Tímto, v souladu s nařízením Evropského parlamentu a Rady (EU) 2016/679, v platném znění, prohlašuji, že mi je alespoň 16 let a uděluji tak svůj souhlas se zpracováním zadaných údajů (jméno, telefon, e-mail, ip adresa) společnosti B3 Technology, s.r.o., IČ: 07330600, se sídlem Novostavby 126/23, 435 11 Lom (správce dat), za účelem předání dotazu z tohoto formuláře Vámi vybranému inzerentovi a zpětného kontaktování mé osoby. Osobní údaje bude správce zpracovávat manuálně i automaticky přímo prostřednictvím svých zaměstnanců. Informace předané tímto formulářem budou uloženy v databázi správce maximálně po dobu 10 let. Odvolání souhlasu s uložením a zpracováním poskytnutých dat lze e-mailem na info@origo-reality.cz. V případě podezření na neoprávněné použití Vámi poskytnutých údajů máte právo předat podnět k šetření Úřadu pro ochranu osobních údajů. Více informací
Chystáte se prodat nemovitost?
Pomůžeme Vám!

Přihlášení k odběru

Nenechte si ujít nejnovější nabídky prodeje rodinných domů v Uhlířských Janovicích.