Prodej bytu 3+kk, Praha - Vysočany, Na výběžku, 74 m2 (ID: 1877411)

Na výběžku, Praha 9 - Vysočany

9 890 000 Kč

včetně provize RK
Hypotéka od 44 202 Kč /měs. Chci hypotéku

Parametry bytu

AdresaNa výběžku, Praha 9 - Vysočany
ID0290
StavbaCihlová
Stav objektuNovostavba
VybavenoČástečně
Lokalita objektuKlidná část obce
VlastnictvíOsobní
Užitná plocha74 m2
Třída energetické náročnostiC - Úsporná

Origo partneři v Praze 9

Stěhovací služby

Výkup a prodej starého nábytku

Popis

Nový byt v dispozici 3+KK (kolaudace 2024) nyní developer uvolnil do prodeje a vy si jej můžete koupit za velmi výjimečnou cenu. Při rezervaci nejpozději do 30.11. jej můžete mít za opravdu nadstandardních podmínek a v porovnání jiných bytů v této lokalitě těžko budete hledat podobný. POZN: Nejedná se o aukci - rozhodujícím faktorem bude pouze rychlost jednání, připravené financování a podpis rezervační smlouvy.

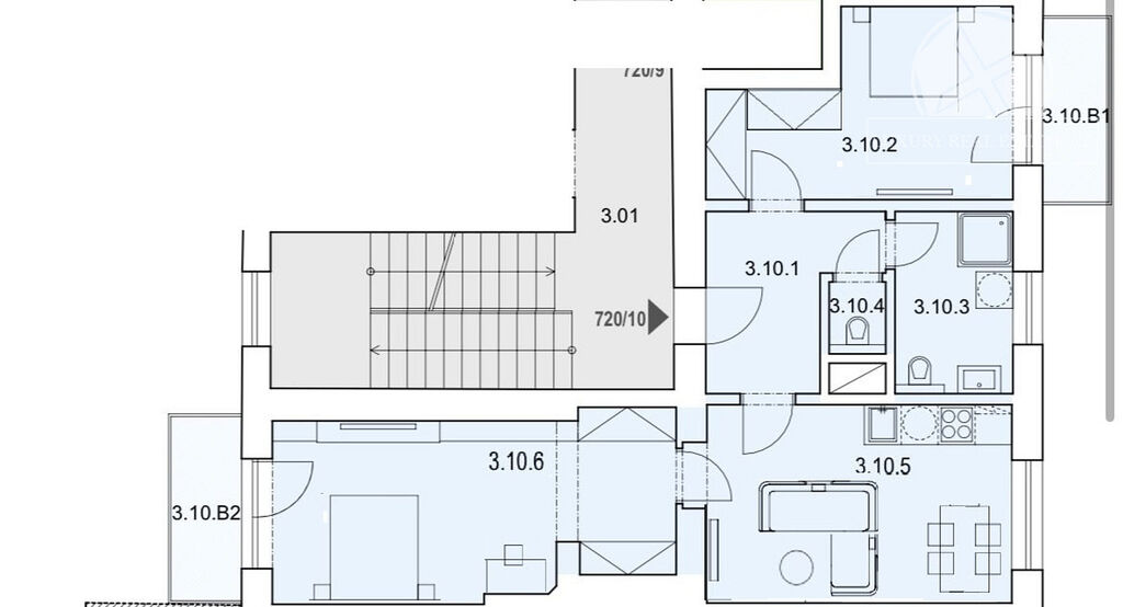
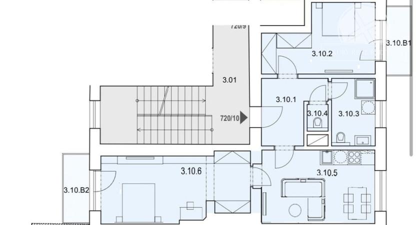
Nabízíme k prodeji byt 3+KK s plochou přes 74 m² se dvěma balkóny v novostavbě kolaudované v roce 2024. Ideálně řešená dispozice a plocha bytu je rozdělena do jednotlivých místností, tedy do 2 ložnic s vlastním balkonem, obývacího pokoje s plně vybavenou kuchyňskou linkou vč. spotřebičů, koupelny se sprchovým koutem, toaletou a místem pro pračku či sušičku a navíc je zde ještě jedna oddělená toaleta. Co je podstatné, vše zhotoveno ve vyšším standardu, který Vám z bytu vytvoří perfektní dojem. Orientace oken na východ a západ dodávají bytu dostatečný přísun denního světla.

V suterénu domu budete mít i zabezpečenou sklepní kóji, kam lze umístit sezónní věci.

Výhodou této lokality je velmi snadná dostupnost všech služeb, metro 3 minuty od domu a další benefitem je parkování přímo před domem bez nutnosti investice do parkovacího stání (je to klidná slepá ulice)

Díky dispozičnímu řešení je tento byt vhodnější především pro mladé páry, popřípadě rodinu nevyžadující zrovna obrovský obývací pokoj. Detaily naleznete v přiloženém půdorysu. Fotografie upraveny pomocí AI pro představu budoucího vybavení nábytkem (byt se prodává vybavený kuchyňskou linkou vč. spotřebičů). Takto si můžete svůj byt vybavit i vy.

Využijte této mimořádně zajímavé nabídky. Jedná se o krásný nový byt za skvělou cenu. Neváhejte a přijďte se podívat sami.

Makléř

Máte zájem o tento byt?

Tímto, v souladu s nařízením Evropského parlamentu a Rady (EU) 2016/679, v platném znění, prohlašuji, že mi je alespoň 16 let a uděluji tak svůj souhlas se zpracováním zadaných údajů (jméno, telefon, e-mail, ip adresa) společnosti B3 Technology, s.r.o., IČ: 07330600, se sídlem Novostavby 126/23, 435 11 Lom (správce dat), za účelem předání dotazu z tohoto formuláře Vámi vybranému inzerentovi a zpětného kontaktování mé osoby. Osobní údaje bude správce zpracovávat manuálně i automaticky přímo prostřednictvím svých zaměstnanců. Informace předané tímto formulářem budou uloženy v databázi správce maximálně po dobu 10 let. Odvolání souhlasu s uložením a zpracováním poskytnutých dat lze e-mailem na info@origo-reality.cz. V případě podezření na neoprávněné použití Vámi poskytnutých údajů máte právo předat podnět k šetření Úřadu pro ochranu osobních údajů. Více informací
Chystáte se prodat nemovitost?
Pomůžeme Vám!

Přihlášení k odběru

Nenechte si ujít nejnovější nabídky prodeje bytů 3+kk v Praze 9.