Pronájem bytu 3+kk, Bystřice pod Hostýnem, Sídliště, 96 m2

Sídliště, Bystřice pod Hostýnem

19 700 Kč
/za měsíc
+ služby a energie
Získejte výhodnou HYPOTÉKU Chci hypotéku

Parametry bytu

AdresaSídliště, Bystřice pod Hostýnem
ID0581
StavbaCihlová
Stav objektuPo rekonstrukci
Patro1. z 3
VybavenoČástečně
VlastnictvíOsobní
Užitná plocha96 m2
Zastavěná plocha666 m2
Podlahová plocha96 m2
Třída energetické náročnostiA - Mimořádně úsporná
Ukazatel energetické náročnosti56 kWh/m2 za rok
KomunikaceAsfaltová
DopravaVlak, Silnice, Autobus
Topné tělesoPodlahové vytápění
Zdroj topeníTepelné čerpadlo
Zdroj teplé vodyTepelné čerpadlo
Terasa

Origo partneři v Bystřici pod Hostýnem

Popis

Pronájem nových bytů v Bystřici pod Hostýnem – Sídliště.

Nabízíme moderní byty v nově zrekonstruovaném bytovém domě v ulici Sídliště, Bystřice pod Hostýnem.

Dům je po kompletní a zdařilé rekonstrukci dosahuje energetické třídy A, což zaručuje nízké provozní náklady a komfortní bydlení.

K dispozici jsou byty různých dispozic od 1+kk po 3+kk – ideální pro jednotlivce, páry i rodiny.

Standard vybavení:

- moderní PVC podlahy v obytných místnostech + dlažba,
- kuchyňská linka na míru včetně spotřebičů (lednice, sporák, digestoř, trouba i myčka),
- podlahové teplovodní vytápění,
- rekuperace pro stálý přísun čerstvého vzduchu,
- ke každému bytu je přiřazený sklep v 1PP,
- k některým bytům pohodlné terasy.

Možnost pronájmu parkovacího stání za 500 Kč/měsíc.

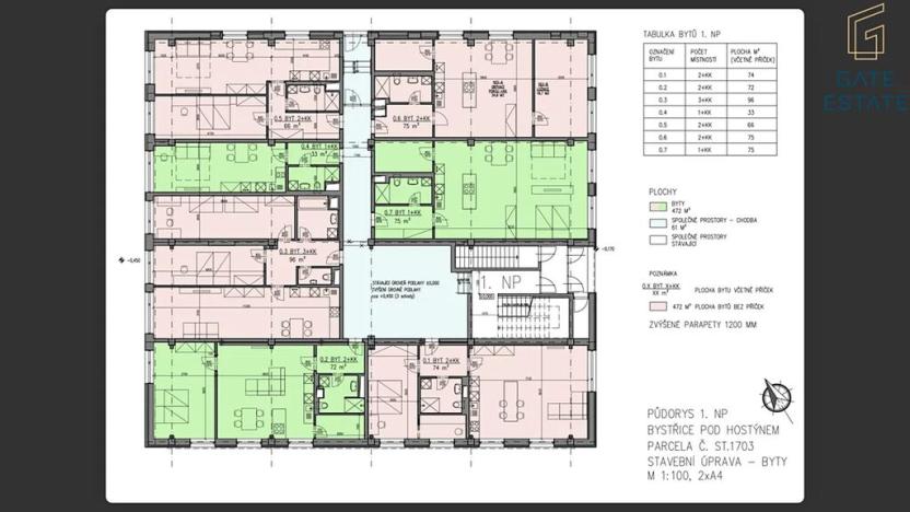
V tomto inzerátu uvádím byt 3kk, 96m2 + sklep, umístěný v 1NP. Byt je vybavený kuchyňskou linkou na míru vč. spotřebičů výše uvedených. Pro lepší představu jsme pro Vás vytvořili 3D půdorysy (rozmístění nábytku je pouze orientační) pro lepší čitelnost a vizualizaci budoucí kuchyně. V barevném půdorysu, který uvádíme ve fotografiích, se jedná o byt č. 0.3.

Platební podmínky - měsíčně:
Nájem činí 19.700,-Kč + služby a energie (1.700,-Kč elektřina, 1.500,-Kč topení, úklid a osvětlení spol. prostor 350,-Kč, studená voda 600,-Kč/os, ohřev TV 300,-Kč/os, odvoz odpadu 100,-Kč). Nutno zmínit, že byty jsou nové a nikdo v těchto bytech ještě nebydlel. Zálohy na služby a energie jsou tedy odhadované a po určitém čase užívání se upraví dle reálné spotřeby aby nevznikaly větší přeplatky či nedoplatky). V tuto chvíli jsme zvolili zálohy na stranu bezpečnou. V případě 3 osob celková měsíční platba činí 26.050,-Kč.

Vratná kauce je ve výši dvou nájmů. Jednorázová provize činí jeden nájem + DPH.
Preferovaný je dlouhodobý pronájem bez domácích mazlíčků (psi a kočky).

K nastěhování předběžně od 1. 4. 2026.

V případě zájmu o jakékoliv informace mě prosím kontaktujte, rád se s Vámi sejdu, projdeme si půdorysy a zodpovím vám veškeré dotazy. Podle možností stavby je také možné si byty projít přímo na místě.

Pro více informací o dostupnosti mě prosím kontaktujte.

Makléř

Máte zájem o tento byt?

Tímto, v souladu s nařízením Evropského parlamentu a Rady (EU) 2016/679, v platném znění, prohlašuji, že mi je alespoň 16 let a uděluji tak svůj souhlas se zpracováním zadaných údajů (jméno, telefon, e-mail, ip adresa) společnosti B3 Technology, s.r.o., IČ: 07330600, se sídlem Novostavby 126/23, 435 11 Lom (správce dat), za účelem předání dotazu z tohoto formuláře Vámi vybranému inzerentovi a zpětného kontaktování mé osoby. Osobní údaje bude správce zpracovávat manuálně i automaticky přímo prostřednictvím svých zaměstnanců. Informace předané tímto formulářem budou uloženy v databázi správce maximálně po dobu 10 let. Odvolání souhlasu s uložením a zpracováním poskytnutých dat lze e-mailem na info@origo-reality.cz. V případě podezření na neoprávněné použití Vámi poskytnutých údajů máte právo předat podnět k šetření Úřadu pro ochranu osobních údajů. Více informací
Chystáte se prodat nemovitost?
Pomůžeme Vám!

Přihlášení k odběru

Nenechte si ujít nejnovější nabídky pronájmu bytů 3+kk v Bystřici pod Hostýnem.