Prodej rodinného domu, Sluhy, 96 m2 (ID: 1876833)
Sluhy
/za nemovitost
dům č. 2 - V REZERVACI
Parametry domu
| Adresa | Sluhy | 
|---|---|
| ID | 25005 | 
| Stavba | Cihlová | 
| Stav objektu | Ve výstavbě | 
| Typ objektu | Patrový | 
| Druh objektu | Řadový | 
| Lokalita objektu | Klidná část obce | 
| Užitná plocha | 96 m2 | 
| Zastavěná plocha | 60 m2 | 
| Plocha pozemku | 400 m2 | 
| Plocha zahrady | 340 m2 | 
| Třída energetické náročnosti | B - Velmi úsporná | 
| Odpad | Veřejná kanalizace, Septik | 
| Topení | Podlahové | 
| Telekomunikace | Internet | 
| Voda | Vodovod | 
| Topné těleso | Podlahové vytápění | 
| Zdroj topení | Tepelné čerpadlo | 
| Zdroj teplé vody | Tepelné čerpadlo | 
| Výtah | |
| Bezbarierový přístup | |
| Parkování | |
| Nízkoenergetický | 
Popis
Představujeme vám jedinečnou příležitost k zakoupení moderního domu v malebné obci Sluhy. Tyto novostavby jsou ideální volbou pro rodiny, které hledají nejen pohodlí, ale i stylové bydlení.
Charakteristika domů: 
Každý dům disponuje zastavěnou plochou 60 m² a užitnou plochou 96 m², s možností využití půdy o rozloze 15 m². Okouzlí vás okolní zahrada o velikosti 340 m², která je ideální pro relaxaci i zábavu.
Dispoziční řešení:
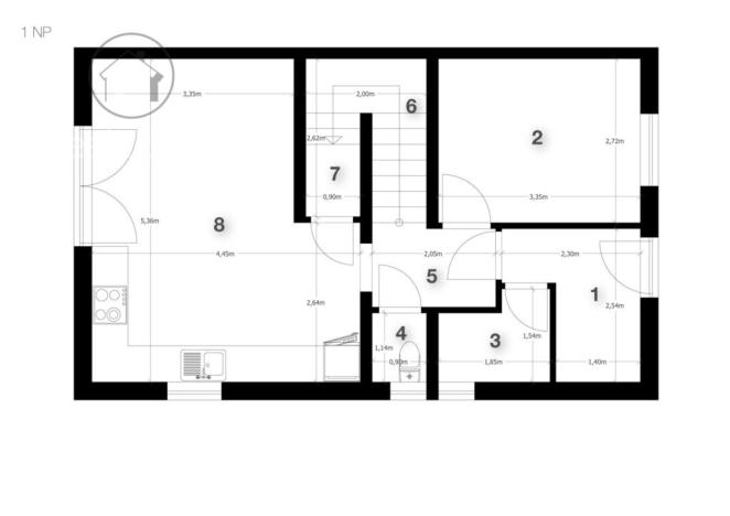
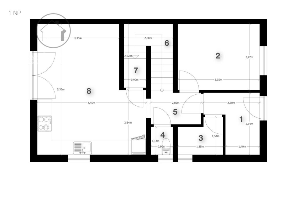
•	Přízemí: Přivítá vás prostorná chodba, technická místnost, elegantní WC s geberitem, útulný pokoj, praktická komora pod schody a moderní kuchyň spojená s obývacím pokojem, odkud je vstup na terasu.
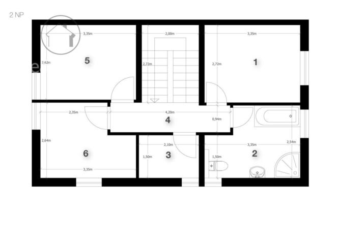
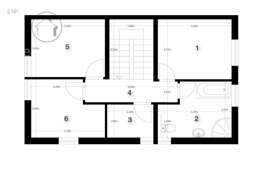
•	1. patro: Nabízí tři pokoje, luxusní koupelnu s vanou, sprchovým koutem, dvoj-umyvadlem a tepelným žebříkem, prostornou šatnu, z chodby stropní vstup na půdu.
Konstrukční a technické detaily:
•	Dům je postaven z tepelněizolačního Ytongu, který zajišťuje prodyšnost a především zdravé vnitřní klima, je zateplen a opatřen stylovou fasádou.
•	Střecha je pokrytá odolnou pálenou taškou.
•	Okna a vstupní dveře jsou plastová s trojskly, zajišťujícími vynikající tepelnou izolaci.
•	Podlahové vytápění napojené na tepelné čerpadlo, které v létě slouží i jako efektivní chlazení.
•	Podlahy pokrývá dlažba v koupelně a WC, v ostatních místnostech je použitý kvalitní vinyl.
•	Obložkové dveře a stahovací schůdky vedoucí na půdu dodávají prostoru eleganci a funkčnost.
•	Voda je přiváděna z městského vodovodu, ohřívaná tepelným čerpadlem propojeným se solárními panely.
•	Odpad je řešen septikem o objemu 9 m³, připraveným na připojení k veřejné kanalizaci.
•	Domy jsou napojeny na třífázovou elektrickou síť (3x25A).
Další výhody:
•	Domy jsou těsně před kolaudací, s možností nastěhování od ledna 2026.
•	Terasy o výměře 4x3 m s podlahou ze zámkové dlažby a výhledem na zahradu.
•	Každý dům má vyhrazené parkovací stání a samostatný vstup, zahrady budou odděleny plotem pro maximální soukromí.
•	Dům č. 1 nabízí větší zahradu, zatímco dům č. 2 disponuje větším prostorem před a vedle domu.
•	V ulici je dostupný optický internet pro rychlé a spolehlivé připojení.
•	Dům je postaven v energetické třídě „B“, což zajišťuje nízké provozní náklady
Obec Sluhy je malebná vesnice nacházející se ve Středočeském kraji, nedaleko od Prahy. Tato klidná lokalita je ideální pro ty, kteří hledají únik od ruchu velkoměsta, ale zároveň chtějí mít všechny výhody městského života na dosah ruky. 
Sluhy jsou obklopeny krásnou přírodou, což poskytuje řadu možností pro turistiku, cykloturistiku a další volnočasové aktivity. Jsou také známé svou udržovanou infrastrukturou a občanskou vybaveností, včetně základní školy, mateřské školy a několika obchodů pro základní potřeby.
Díky výborné dopravní dostupnosti do Prahy je obec ideálním místem pro rodiny s dětmi i pro ty, kteří pracují v hlavním městě. S pravidelným autobusovým spojením a blízkostí dálnice je cestování do Prahy rychlé a pohodlné.
Kontaktujte nás pro více informací a domluvte si prohlídku.
Jsme Realitka cz
Přihlášení k odběru
Nenechte si ujít nejnovější nabídky prodeje rodinných domů v Sluzích.
 
                                                                                     
                                                                                     
                                                                                     
                                                                                     
                                                                                     
                                                                                     
                                                                                     
                                                                                     
                                                                                     
                                                                                     
                                                                                     
                                                                                     
                                                                                     
                                                                                     
                                                                                     
                                                                                     
                                                                                     
                                                                                     
                                                                                     
                                                                                     
                                                                                     
                                                                                     
                                                                                     
                                                                                     
                                                                                     
                                                                                     
                         
         
         
         
         
         
         
         
        