Prodej rodinného domu, Miroslav, Brněnská, 28 m2

Brněnská, Miroslav

1 890 000 Kč

včetně provize RK
Hypotéka od 8 447 Kč /měs. Chci hypotéku

Parametry domu

AdresaBrněnská, Miroslav
ID100450
StavbaSmíšená
Stav objektuPřed rekonstrukcí
Druh objektuŘadový
Užitná plocha28 m2
Plocha pozemku85 m2
Třída energetické náročnostiG - Mimořádně nehospodárná

Origo partneři v Miroslavi

Popis

Nabízím k prodeji rodinný dům v Miroslavi, který čeká na nového majitele s vizí a chutí vytvořit si vlastní domov.
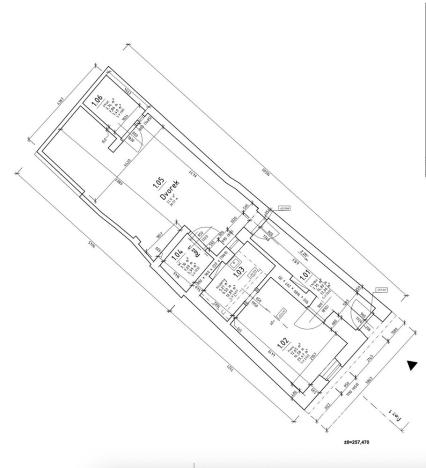
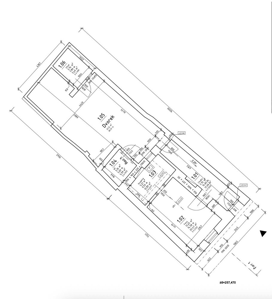
Součástí prodeje je architektonická studie, která rozšiřuje původní užitnou plochu z 28,71 m² na 88,40 m² a proměňuje objekt v moderní open-space rodinný dům se zahrádkou.

Projekt je navržen tak, že k realizaci rekonstrukce postačí pouze ohlášení stavby, bez nutnosti stavebního povolení. K dokončení stavební dokumentace zbývá doplnit stanoviska geologa, statika, hasičů a souhlas sousedů.
Odhadované náklady na rekonstrukci činí přibližně 1 800 000 Kč.

Dům je již napojen na elektřinu, vodovod i kanalizaci. V přiložené galerii naleznete vizualizace a půdorysy finální podoby domu po rekonstrukci.

Lokalita:
Miroslav leží zhruba 30 minut jízdy od Brna a nabízí veškerou občanskou vybavenost – školu, školku, obchody, restaurace i lékaře.
Výborné dopravní spojení vlakem i autobusem zajišťuje pohodlný dojezd do Brna, Znojma i okolních měst.
Klidné prostředí, blízkost vinic a dostatek zeleně dělají z Miroslavi ideální místo pro rodinné bydlení i rekreační dům.

Shrnutí nabídky:

- užitná plocha po rekonstrukci: 88,40 m²
- architektonická studie v ceně
- odhadované náklady: cca 1,8 mil. Kč
- napojeno na elektřinu, vodu, kanalizaci
- pouze ohlášení stavby, bez nutnosti stavebního povolení
- klidná a dobře dostupná lokalita

Máte zájem o více informací nebo osobní prohlídku?
Kontaktujte mě, rád vám vše představím osobně.

Makléř

Máte zájem o tento dům?

Tímto, v souladu s nařízením Evropského parlamentu a Rady (EU) 2016/679, v platném znění, prohlašuji, že mi je alespoň 16 let a uděluji tak svůj souhlas se zpracováním zadaných údajů (jméno, telefon, e-mail, ip adresa) společnosti B3 Technology, s.r.o., IČ: 07330600, se sídlem Novostavby 126/23, 435 11 Lom (správce dat), za účelem předání dotazu z tohoto formuláře Vámi vybranému inzerentovi a zpětného kontaktování mé osoby. Osobní údaje bude správce zpracovávat manuálně i automaticky přímo prostřednictvím svých zaměstnanců. Informace předané tímto formulářem budou uloženy v databázi správce maximálně po dobu 10 let. Odvolání souhlasu s uložením a zpracováním poskytnutých dat lze e-mailem na info@origo-reality.cz. V případě podezření na neoprávněné použití Vámi poskytnutých údajů máte právo předat podnět k šetření Úřadu pro ochranu osobních údajů. Více informací
Chystáte se prodat nemovitost?
Pomůžeme Vám!

Přihlášení k odběru

Nenechte si ujít nejnovější nabídky prodeje rodinných domů v Miroslavi.