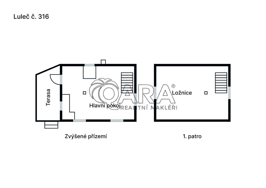
Prodej chaty, Luleč, 35 m2

Luleč

3 180 000 Kč
/za nemovitost
Hypotéka od 14 213 Kč /měs. Chci hypotéku

Parametry domu

AdresaLuleč
ID17814
StavbaDřevěná
Stav objektuVelmi dobrý
VybavenoČástečně
Typ objektuPatrový
Druh objektuSamostatný
Lokalita objektuOkraj obce
Užitná plocha35 m2
Zastavěná plocha27 m2
Podlahová plocha533 m2
Plocha pozemku533 m2
Plocha zahrady498 m2
Třída energetické náročnostiG - Mimořádně nehospodárná
Elektřina230V
OdpadTrativod
KomunikaceZpevněná
VodaRetenční nádrž na dešt’ovou vodu
Převod do OV

Origo partneři v Lulči

Popis

Hledáte místo, kde se zastaví čas, kde ráno zpívají ptáci a večer slyšíte jen praskání dřeva v kamnech?
Tahle celodřevěná chata z modřínu v obci Luleč, pár minut od Vyškova, nabízí přesně to – klid, vůni lesa a poctivou stavbu, která vydrží generace.

Chata byla postavena v roce 2012, má užitnou plochu 35 m² a zastavěnou 27 m².
Pozemek o velikosti 498 m² je rovinatý, oplocený a obklopený zelení.

Stavba je kvalitně zateplená (12 cm vaty, parozábrana, termoskla, šindelová střecha s izolací), má měděné rozvody elektřiny, rozvody pro užitkovou vodu a certifikovaný zděný komín.
Je ideální k rekreaci.

Luleč je vyhledávaná lokalita s krásnou přírodou, přírodním koupalištěm U Libuše, lesy a turistickými stezkami.
Perfektní dostupnost – 10 minut od Vyškova, 30 minut z Brna.

Místo, kde se dýchá lépe. Přijeďte se podívat – možná právě tady najdete svůj klid.

Makléř

Máte zájem o tento dům?

Tímto, v souladu s nařízením Evropského parlamentu a Rady (EU) 2016/679, v platném znění, prohlašuji, že mi je alespoň 16 let a uděluji tak svůj souhlas se zpracováním zadaných údajů (jméno, telefon, e-mail, ip adresa) společnosti B3 Technology, s.r.o., IČ: 07330600, se sídlem Novostavby 126/23, 435 11 Lom (správce dat), za účelem předání dotazu z tohoto formuláře Vámi vybranému inzerentovi a zpětného kontaktování mé osoby. Osobní údaje bude správce zpracovávat manuálně i automaticky přímo prostřednictvím svých zaměstnanců. Informace předané tímto formulářem budou uloženy v databázi správce maximálně po dobu 10 let. Odvolání souhlasu s uložením a zpracováním poskytnutých dat lze e-mailem na info@origo-reality.cz. V případě podezření na neoprávněné použití Vámi poskytnutých údajů máte právo předat podnět k šetření Úřadu pro ochranu osobních údajů. Více informací
Chystáte se prodat nemovitost?
Pomůžeme Vám!

Přihlášení k odběru

Nenechte si ujít nejnovější nabídky prodeje chat v Lulči.