Remax Monarcha

Pronájem komerční nemovitosti, Drahanovice, 9 m2

Drahanovice

6 500 Kč
/za měsíc
bez poplatků
Získejte výhodnou HYPOTÉKU Chci hypotéku

Parametry nemovitosti

AdresaDrahanovice
ID00247
StavbaCihlová
Stav objektuNovostavba
Patro1. z 3
VybavenoČástečně
Lokalita objektuKlidná část obce
Užitná plocha9 m2
Třída energetické náročnostiB - Velmi úsporná
Ukazatel energetické náročnosti67 kWh/m2 za rok
Elektřina230V
OdpadVeřejná kanalizace
KomunikaceAsfaltová
TelekomunikaceInternet
DopravaVlak, Silnice, Autobus
VodaMístní zdroj vody
Topné tělesoPřímotop
Zdroj topeníPřímotop
Zdroj teplé vodyBojler - elektro
Výtah
Bezbarierový přístup
Parkování

Origo partneři v Drahanovicích

Popis

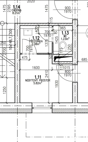
Nabízíme k pronájmu komerční prostor v novostavbě bytového domu se 12 byty v obci Drahanovice.

Prostor je zkolaudován na provoz kosmetiky, masážní salón, ale není problém provozovat manikúru, pedikúru atd.

Nebytový prostor sestává ze samostatné místnosti, předsíně s umyvadlem a skříňkou, samostatné toalety.
Dle přání je možnost osadit i druhé umyvadlo v první místnosti.
Na fotografiích ještě umyvadla chybí, taktéž se bude ještě finálně malovat.
Nechybí zde také videotelefon a bezbariérový přístup.
Volné ihned.
Pro více informací kontaktujte realitního makléře.

Makléř

Máte zájem o tuto nemovistost?

Tímto, v souladu s nařízením Evropského parlamentu a Rady (EU) 2016/679, v platném znění, prohlašuji, že mi je alespoň 16 let a uděluji tak svůj souhlas se zpracováním zadaných údajů (jméno, telefon, e-mail, ip adresa) společnosti B3 Technology, s.r.o., IČ: 07330600, se sídlem Novostavby 126/23, 435 11 Lom (správce dat), za účelem předání dotazu z tohoto formuláře Vámi vybranému inzerentovi a zpětného kontaktování mé osoby. Osobní údaje bude správce zpracovávat manuálně i automaticky přímo prostřednictvím svých zaměstnanců. Informace předané tímto formulářem budou uloženy v databázi správce maximálně po dobu 10 let. Odvolání souhlasu s uložením a zpracováním poskytnutých dat lze e-mailem na info@origo-reality.cz. V případě podezření na neoprávněné použití Vámi poskytnutých údajů máte právo předat podnět k šetření Úřadu pro ochranu osobních údajů. Více informací
Chystáte se prodat nemovitost?
Pomůžeme Vám!

Přihlášení k odběru

Nenechte si ujít nejnovější nabídky pronájmu komerčních nemovitostí v Drahanovicích.