Pronájem bytu 2+kk, Pardubice - Zelené Předměstí, K Višňovce, 58 m2

K Višňovce, Zelené Předměstí - Pardubice V

15 200 Kč
/za měsíc
+ záloha energie a služby 1100 Kč, + elektřina (cca 2500 Kč), kauce 20000 Kč, provize RK 15200 Kč
Získejte výhodnou HYPOTÉKU Chci hypotéku

Parametry bytu

AdresaK Višňovce, Zelené Předměstí - Pardubice V
IDN1477
StavbaCihlová
Stav objektuPo rekonstrukci
Patro2. z 3
VybavenoČástečně
Typ objektuPatrový
Lokalita objektuCentrum obce
VlastnictvíOsobní
Užitná plocha58 m2
Podlahová plocha58 m2
Třída energetické náročnostiB - Velmi úsporná
Elektřina230V
TopeníPodlahové
DopravaVlak, Dálnice, Silnice, MHD, Autobus
VodaVodovod
Sklep
Výtah

Origo partneři v Pardubicích

Popis

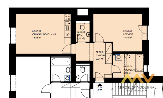
K pronájmu nabízíme byt 2+kk o rozloze 58 m2, která se nachází ve 2. NP třípodlažního rekonstruovaného cihlového domu v blízkosti centra města Pardubic, v ul. K Višňovce.

Dispozice: obývací pokoj s kuchyňským koutem (18,48 m2), ložnice 14,44 m2, koupelna (6,23 m2), toaleta 2,2 m2 předsíň (9 m2), sklep (7,56 m2). Jedná se o částečně zařízený byt, obývací pokoj s kuchyňským koutem je vybaven novou kuchyňskou linkou na míru se spotřebiči (el. sklokeramická varná deska, el. trouba, odsavač par). Ložnice je zcela nezařízená s francouzským oknem s výhledem do sousedních zahrad. Prostorná koupelna s vanou, umyvadlo, přípojka na pračku. Toaleta je samostatná se závěsným WC a umyvadlem. V předsíni jsou velké vestavěné úložné prostory (skříně) na míru. Vytápění podlahové elektrické s LCD ovládáním teploty každé místnosti, ohřev vody el. bojlerem (160 l), osvětlení LED, internet zaveden. Okna plastová se žaluziemi. Plovoucí podlaha v pokojích, v koupelně a předsíni dlažba. K dispozici je prostorný sklep 8 m2. Dům prošel kompletní rekonstrukcí a dá se považovat za novostavbu. Velmi klidné místo s možností bezplatného parkování přímo u domu. Centrum města 8 min. chůze, MHD, kompletní občanská vybavenost v místě. Byt určen max. pro 2 osoby, bez zvířat, nekuřáci.

Nájemné 15.200 Kč/měsíc, + energie a služby 1100 Kč (pro 2 osoby), + elektřina bude převedena na nájemce (cca 2500 Kč), vratná kauce 2x nájem, provize RK 1x nájem. K nastěhování ihned.

Makléř

Máte zájem o tento byt?

Tímto, v souladu s nařízením Evropského parlamentu a Rady (EU) 2016/679, v platném znění, prohlašuji, že mi je alespoň 16 let a uděluji tak svůj souhlas se zpracováním zadaných údajů (jméno, telefon, e-mail, ip adresa) společnosti B3 Technology, s.r.o., IČ: 07330600, se sídlem Novostavby 126/23, 435 11 Lom (správce dat), za účelem předání dotazu z tohoto formuláře Vámi vybranému inzerentovi a zpětného kontaktování mé osoby. Osobní údaje bude správce zpracovávat manuálně i automaticky přímo prostřednictvím svých zaměstnanců. Informace předané tímto formulářem budou uloženy v databázi správce maximálně po dobu 10 let. Odvolání souhlasu s uložením a zpracováním poskytnutých dat lze e-mailem na info@origo-reality.cz. V případě podezření na neoprávněné použití Vámi poskytnutých údajů máte právo předat podnět k šetření Úřadu pro ochranu osobních údajů. Více informací
Chystáte se prodat nemovitost?
Pomůžeme Vám!

Přihlášení k odběru

Nenechte si ujít nejnovější nabídky pronájmu bytů 2+kk v Pardubicích.