Prodej pozemku pro bydlení, Uherský Brod, Josefa Herčíka, 2813 m2 (ID: 1875750)
Josefa Herčíka, Uherský Brod
                                Cena na vyžádání
/za nemovitost
                            /za nemovitost
                                                    Získejte výhodnou HYPOTÉKU
                                                Chci hypotéku
                    
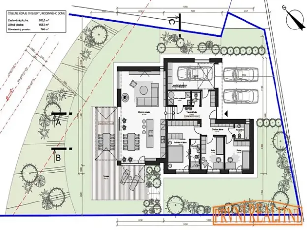
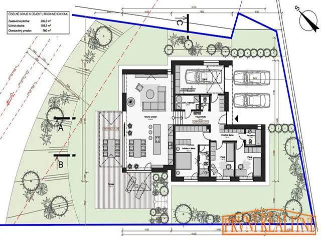
                Parametry pozemku
| Adresa | Josefa Herčíka, Uherský Brod | 
|---|---|
| ID | SP 6019 | 
| Plocha pozemku | 2813 m2 | 
         Origo
        partneři v Uherském Brodu    
    
Popis
Prodej stavebního pozemku v lokalitě Nad Zámkem
- pozemek má výměru 2813 m²
- šířka pozemku je 22 metrů
- možnost připojení na veškeré inženýrské sítě
- dle územního plánu je pozemek určen k výstavbě bydlení v rodinných domech a v nízkopodlažních bytových domech
Přihlášení k odběru
Nenechte si ujít nejnovější nabídky prodeje pozemků pro bydlení v Uherském Brodu.
                    Origo tipy
                
                 
                                                                                     
                                                                                     
                                                                                     
                                                                                     
                                                                                     
                                                                                     
                                                                                     
                                                                                     
                                                                                     
                                                                                     
                         
         
         
         
         
         
         
        