Prodej bytu 3+kk, Židlochovice, Komenského, 65 m2

Komenského, Židlochovice

6 791 400 Kč

včetně provize RK
Hypotéka od 30 353 Kč /měs. Chci hypotéku

Parametry bytu

AdresaKomenského, Židlochovice
ID0349
StavbaCihlová
Stav objektuDobrý
VybavenoNe
VlastnictvíOsobní
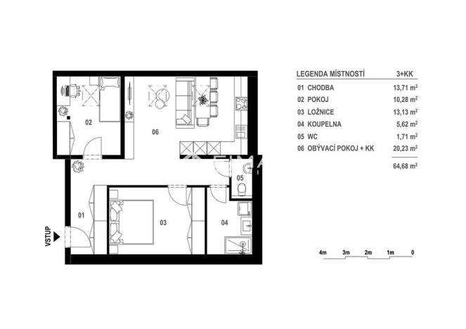
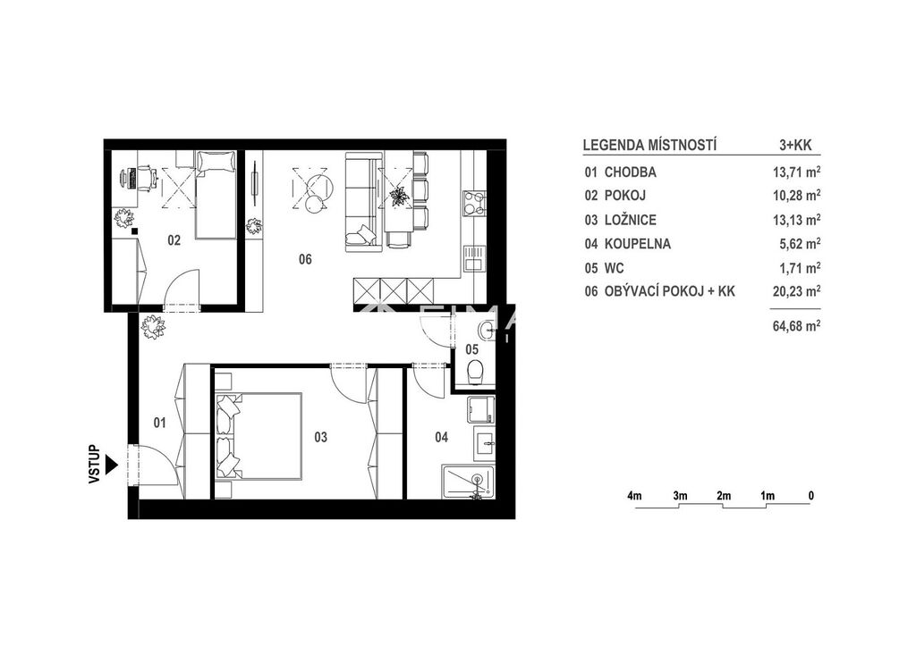
Užitná plocha65 m2
Třída energetické náročnostiG - Mimořádně nehospodárná

Origo partneři v Židlochovicích

Popis

Nabízíme k prodeji novou bytovou jednotku ve 3. nadzemním podlaží moderního bytového domu s celkem 8 jednotkami. Dům má 3 podlaží a nachází se v klidné lokalitě s výbornou dostupností do centra Židlochovic. Dispozice bytu je 3+kk, užitná plocha 65 m².

Byt bude dokončen v kvalitním standardu – ve spolupráci s investorem si můžete vybrat typ, dekor podlah, dveří i obkladů podle vlastního vkusu.

Standard zahrnuje:

- skládané vinylové podlahy od společnosti Supellex

- interiérové dveře a vstupní bezpečnostní dveře z DKP Market

- koupelnu s obklady a sanitou od studia Ptáček

Na bytě jsou již hotové přípravy k předokením žaluziím.

Nemovitost je nabízena do osobního vlastnictví. K jednotce je možné přikoupit výhradní parkovací stání, které je umístěno v dvorním uzavřeném traktu.

Projekt je vhodný jak pro vlastní bydlení, tak na investici. K financování nemovitosti lze využít našeho kolegu ze společnosti Partners.

Předpokládaný termín stěhování je 2. čtvrtletí 2026.

V případě zájmu o prohlídku nebo konzultaci mne prosím kontaktujte na uvedeném telefoním čísle nebo e-mailu.

-----------------------------------

Průkaz energetické náročnosti budovy nebyl doložen, proto je objekt automaticky zařazen do energetické třídy G – mimořádně nehospodárná.

Makléř

Máte zájem o tento byt?

Tímto, v souladu s nařízením Evropského parlamentu a Rady (EU) 2016/679, v platném znění, prohlašuji, že mi je alespoň 16 let a uděluji tak svůj souhlas se zpracováním zadaných údajů (jméno, telefon, e-mail, ip adresa) společnosti B3 Technology, s.r.o., IČ: 07330600, se sídlem Novostavby 126/23, 435 11 Lom (správce dat), za účelem předání dotazu z tohoto formuláře Vámi vybranému inzerentovi a zpětného kontaktování mé osoby. Osobní údaje bude správce zpracovávat manuálně i automaticky přímo prostřednictvím svých zaměstnanců. Informace předané tímto formulářem budou uloženy v databázi správce maximálně po dobu 10 let. Odvolání souhlasu s uložením a zpracováním poskytnutých dat lze e-mailem na info@origo-reality.cz. V případě podezření na neoprávněné použití Vámi poskytnutých údajů máte právo předat podnět k šetření Úřadu pro ochranu osobních údajů. Více informací
Chystáte se prodat nemovitost?
Pomůžeme Vám!

Přihlášení k odběru

Nenechte si ujít nejnovější nabídky prodeje bytů 3+kk v Židlochovicích.