Prodej rodinného domu, Praha - Střížkov, Habartická, 354 m2 (ID: 1874563)

Habartická, Praha 9, Střížkov

Cena na vyžádání
/za nemovitost
Získejte výhodnou HYPOTÉKU Chci hypotéku

Parametry domu

AdresaHabartická, Praha 9, Střížkov
ID1939
StavbaCihlová
Stav objektuNovostavba
Typ objektuPatrový
Druh objektuŘadový
Užitná plocha354 m2
Zastavěná plocha150 m2
Podlahová plocha354 m2
Plocha pozemku580 m2
Plocha zahrady430 m2
Balkon
Garáž
Sklep
Lodžie
Terasa
Bezbarierový přístup

Origo partneři v Praze 9

Stěhovací služby

Výkup a prodej starého nábytku

Popis

Předej řadového dumu 8+1, 354m2, 3x balkon, terasa a zahrada 200m2. Habartická, Praha 9 - Střížkov.
Zajistíme vám americkou hypotéku bez doložení příjmů, možnost převodu do družstva nebo řešení splátek formou nájmu.

Nabídka řadového domu v zánovní novostavbě na prodej v Praze Střížkově, pouhých 5 minut od metra. Dům má 3 nadzemní a jedno podzemní patro. Nabízí 8+1 pokojů. Celková užitná plocha činí 354 m2, s možností využití podkroví.

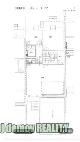
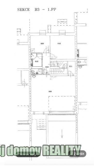
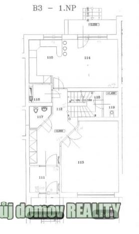
V domě naleznete 4 nadzemní podlaží: snížené přízemí, které má 2 neprůchozí místnosti s okny a oddělené WC. Dále je zde sprchový kout v technické místnosti (kotelna), kde je umístěn plynový kondenzační kotel a elektrický bojler. K dispozici je též prádelna, pokoj vhodný jako kancelář, kumbálek pod schody a garáž pro 2 automobily, kde je umístěno umyvadlo a technická místnost.

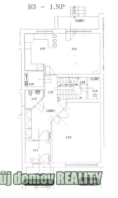
Na prvním podlaží se nachází 3 pokoje, vstupní hala, kuchyně s prostorným obývacím pokojem, s nádherným výhledem, vchod na terasu a do zahrady o rozloze 200 m2, kde si můžete užívat rodinné chvíle, grilování nebo postavit bazén s opalováním. Dále zde jsou 2 neprůchozí pokoje, koupelna, WC, komora a balkon.
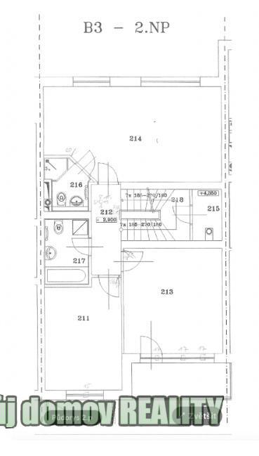
Na druhém podlaží najdete velký pokoj se sprchou a WC, další neprůchozí pokoj a další pokoj s balkonem.
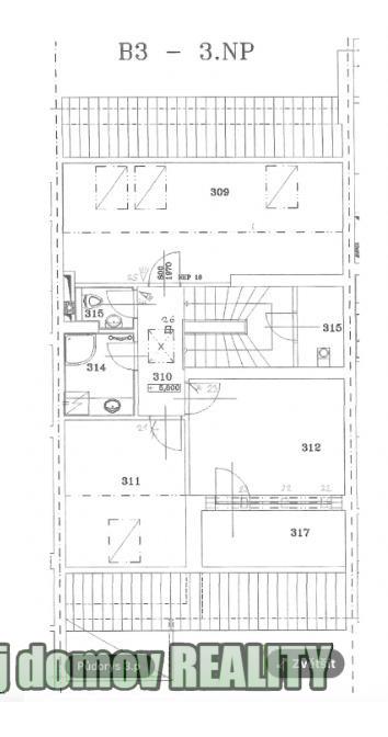
Ve třetím podlaží jsou 3 neprůchozí místnosti, koupelna, samostatné WC a střešní balkon.

Stavba: Cihlová
Stav objektu: Zánovní
Poloha domu: Řadový
Typ domu: Patrový
Podlaží:4 včetně 1 podzemního
Plocha zastavěná:99 m2
Užitná plocha:354 m2
Plocha podlahová:350 m2
Plocha pozemku:380 m2
Zahrada: 2OO m2
Sklep: ano
Parkování: 2 garážovaná místa
Garáž: ano
Datum nastěhování: Ihned
Topení: Ústřední plynové
Plyn: Plynovod
Odpad: Veřejná kanalizace
Energetická náročnost budovy:Třída G - Mimořádně nehospodárná č. 78/2013 Sb. podle vyhlášky
Prodejní cena činí 29 1 00 000 Kč.


Pro více informací a domluvení prohlídky kontaktujte našeho realitního makléře:
Realitní kancelář: Můj domov REALITY
Makléř: Lidiya Savynets
Komunikační aplikace: WhatsApp / Viber / Telegram: @LidiyaSyvynets

Dům má dřevěné parkety a je ideální pro rodinu, firmu a kanceláře, hodí se také jako školka.
Pokud hledáte pohodlné a klidné bydlení v Praze, a kousek od metra, pak tato nemovitost je přesně pro vás.
Neváhejte a kontaktujte nás. Těšíme se na vaši zprávu. Děkujeme.

Makléř

Máte zájem o tento dům?

Tímto, v souladu s nařízením Evropského parlamentu a Rady (EU) 2016/679, v platném znění, prohlašuji, že mi je alespoň 16 let a uděluji tak svůj souhlas se zpracováním zadaných údajů (jméno, telefon, e-mail, ip adresa) společnosti B3 Technology, s.r.o., IČ: 07330600, se sídlem Novostavby 126/23, 435 11 Lom (správce dat), za účelem předání dotazu z tohoto formuláře Vámi vybranému inzerentovi a zpětného kontaktování mé osoby. Osobní údaje bude správce zpracovávat manuálně i automaticky přímo prostřednictvím svých zaměstnanců. Informace předané tímto formulářem budou uloženy v databázi správce maximálně po dobu 10 let. Odvolání souhlasu s uložením a zpracováním poskytnutých dat lze e-mailem na info@origo-reality.cz. V případě podezření na neoprávněné použití Vámi poskytnutých údajů máte právo předat podnět k šetření Úřadu pro ochranu osobních údajů. Více informací
Chystáte se prodat nemovitost?
Pomůžeme Vám!

Přihlášení k odběru

Nenechte si ujít nejnovější nabídky prodeje rodinných domů v Praze 9.