Pronájem výrobních prostor, Zlonín, Hlavní, 50 m2

Hlavní, Zlonín

35 000 Kč
/za měsíc
+ poplatky za služby a energie spojené s provozem
Získejte výhodnou HYPOTÉKU Chci hypotéku

Parametry nemovitosti

AdresaHlavní, Zlonín
IDN139201
StavbaCihlová
Stav objektuVelmi dobrý
Užitná plocha50 m2
Třída energetické náročnostiG - Mimořádně nehospodárná
Elektřina230V, 400V
TopeníLokální plynové
DopravaVlak, Dálnice, Silnice, MHD, Autobus
VodaVodovod

Origo partneři v Zloníně

Popis

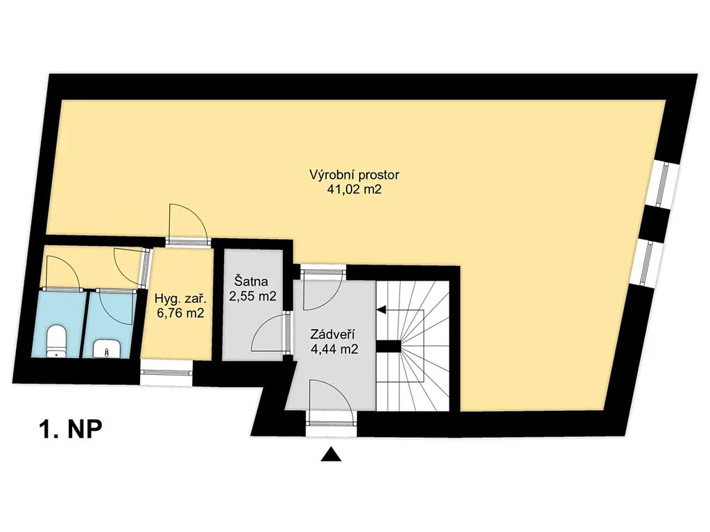
Nabízíme Vám pronájem kompletně vybaveného výrobního prostoru zkolaudovaného jako pekárna v obci Zlonín. Prostor o ploše 55 m² se nachází v přízemí patrového cihlového domu ve velmi dobrém stavu. Vybavení zahrnuje 4 malé a 1 velký nerezový stůl, 6 velkých a 1 malou nástěnnou nerezovou polici, 2 velké lednice, 1 velký mrazák, 1 plynový konvektomat s odsáváním, 1 velký a 1 malý mixér, 4 pojízdné nerezové stojany s plechy, nerezový dvojdřez a malé dřezy s výlevkami. Součástí je také šatna, WC, velká výlevka. Vytápění a ohřev vody je řešeno plynovým kotlem.

Prostor je vhodný jako výrobna nebo přípravna, nikoliv jako prodejna. Je vybaven alarmem pro zajištění bezpečnosti.

Lokace je výborně dostupná jak autem, tak veřejnou dopravou, v blízkosti se nachází železniční trať, dálnice a zastávky autobusu a MHD.

Majitel požaduje nájemné ve výši 35.000 Kč plus úhradu za služby a energie dle typu provozu. Předpokládané náklady jsou 10 - 20.000,-Kč a bude upřesněno po osobní schůzce s pronajímatelem. Majitel požaduje vratnou kauci 35.000 Kč a provize realitní kanceláře činí 35.000 Kč + DPH. Prostor je k dispozici od 1. listopadu 2025 a minimální doba nájmu je stanovena na 12 měsíců. K prostoru je možné pronajmout i bytovou jednotku 2+kk umístěnou ve 2 NP budovy za 15.000 Kč + služby a energie 5.000,-Kč, což poskytuje ideální příležitost pro spojení pracovního a obytného prostoru. Pro více informací nebo prohlídku kontaktujte realitního makléře.

Makléř

Máte zájem o tuto nemovistost?

Tímto, v souladu s nařízením Evropského parlamentu a Rady (EU) 2016/679, v platném znění, prohlašuji, že mi je alespoň 16 let a uděluji tak svůj souhlas se zpracováním zadaných údajů (jméno, telefon, e-mail, ip adresa) společnosti B3 Technology, s.r.o., IČ: 07330600, se sídlem Novostavby 126/23, 435 11 Lom (správce dat), za účelem předání dotazu z tohoto formuláře Vámi vybranému inzerentovi a zpětného kontaktování mé osoby. Osobní údaje bude správce zpracovávat manuálně i automaticky přímo prostřednictvím svých zaměstnanců. Informace předané tímto formulářem budou uloženy v databázi správce maximálně po dobu 10 let. Odvolání souhlasu s uložením a zpracováním poskytnutých dat lze e-mailem na info@origo-reality.cz. V případě podezření na neoprávněné použití Vámi poskytnutých údajů máte právo předat podnět k šetření Úřadu pro ochranu osobních údajů. Více informací
Chystáte se prodat nemovitost?
Pomůžeme Vám!

Přihlášení k odběru

Nenechte si ujít nejnovější nabídky pronájmu výrobních prostor v Zloníně.