Prodej rodinného domu, Praha - Libuš, V Hrobech, 380 m2 (ID: 1873828)

V Hrobech, Praha, Libuš

39 850 000 Kč
/za nemovitost
Hypotéka od 178 105 Kč /měs. Chci hypotéku

Parametry domu

AdresaV Hrobech, Praha, Libuš
ID532130
StavbaSmíšená
Stav objektuVelmi dobrý
Užitná plocha380 m2
Plocha pozemku360 m2
Plocha zahrady145 m2
Třída energetické náročnostiB - Velmi úsporná
Garáž
Výtah
Parkování

Origo partneři v Praze 4

Stěhovací služby

Výkup a prodej starého nábytku

Popis

Exkluzivní uzavřená rezidence v klidné části Prahy 4 - Libuš nabízí posledních 5 velkoryse navržených městských vil, které spojují otevřený prostor, kvalitní materiály a soukromí uzavřeného areálu.


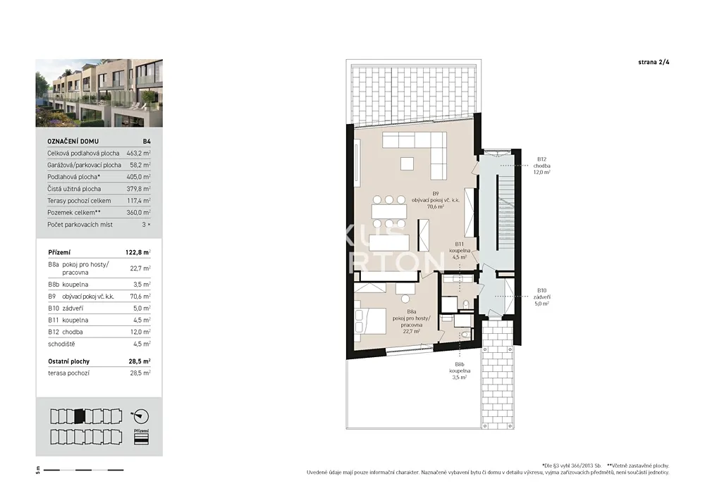
K prodeji nabízíme výjimečnou rodinnou řadovou vilu 6+kk s celkovou podlahovou plochou 405 m² a třemi parkovacími stáními v podzemních garážích. Tento promyšleně navržený dům je ideální pro rodiny hledající maximální komfort a flexibilitu prostoru. Přízemí domu nabízí velkorysý obývací prostor s přípravou pro kuchyňský kout (70,6 m²) s přímým výstupem na terasu s výhledem do kaskádovité zahrady. V přízemí je dále k dispozici pokoj pro hosty s vlastní koupelnou, který může sloužit také jako pracovna a další samostatná koupelna s toaletou. První patro disponuje hlavní ložnicí 18,5 m² s vlastní koupelnou a prostornou šatnou, 2 prostornými ložnicemi (18,4 m² a 19,6 m²) s vlastními koupelnami a další samostatnou šatnou. Korunou domu je krásná střešní terasa 84 m² s výhledy do okolní zástavby a zeleně, kterou lze při zastřešení využívat téměř celoročně.


Snížené přízemí domu nabízí technické zázemí, a především prostornou víceúčelovou místnost o rozloze 96,3 m² s výstupem na terasu a kaskádovitou zahradu o rozloze 98 m², která může sloužit jako samostatná bytová jednotka až 2+kk, díky které je dům vhodný i jako dvougenerační bydlení. Místnost lze také využít jako domácí kino, pracovnu, fitness či wellness zónu.


Domy jsou vybaveny do vysokého standardu jako jsou velkoformátová dřevěná okna s izolačním trojsklem, dřevěné podlahy a velkoformátová dlažba na podlahách, kvalitní velkoformátové keramické obklady a dlažby v koupelnách. Interiérové dveře dřevěné, vstupní dveře bezpečnostní třídy 3, velkoformátová betonová dlažba na terasách, příprava pro venkovní elektrické žaluzie, příprava pro smart home a zabezpečovací systém. Zdrojem vytápění domu je kondenzační plynový kotel. Obývací prostor je vytápěný podlahou, ostatní místnosti moderními otopnými tělesy. Fasáda celého domu je obložena kamenným obkladem z travertinu.


Rezidence o pouhých 16 řadových domech se nachází v bezprostřední blízkosti budoucí stanice metra D Libuš, kam pohodlně dojdete za pár minut. Nedaleko se nachází tramvajová zastávka a díky autobusovým linkám se snadno napojíte na metro C Kačerov. Dopravní dostupnost je skvělá i díky nedalekým napojením na Jižní spojku, Pražský okruh i dálnici D1. Oblíbená rezidenční lokalita Praha 4 Libuš nabízí veškerou občanskou vybavenost včetně mezinárodních (The Prague British School, akademie Wonderland), mateřských i základních škol. Okolní zeleň Modřanské rokle a Komořanského lesa vytváří ideální prostředí pro aktivní trávení volného času a rodinné procházky.


Vizualizace uvedené v inzerci jsou ilustrativní, skutečné výměry se mohou lišit.

Makléř

Máte zájem o tento dům?

Tímto, v souladu s nařízením Evropského parlamentu a Rady (EU) 2016/679, v platném znění, prohlašuji, že mi je alespoň 16 let a uděluji tak svůj souhlas se zpracováním zadaných údajů (jméno, telefon, e-mail, ip adresa) společnosti B3 Technology, s.r.o., IČ: 07330600, se sídlem Novostavby 126/23, 435 11 Lom (správce dat), za účelem předání dotazu z tohoto formuláře Vámi vybranému inzerentovi a zpětného kontaktování mé osoby. Osobní údaje bude správce zpracovávat manuálně i automaticky přímo prostřednictvím svých zaměstnanců. Informace předané tímto formulářem budou uloženy v databázi správce maximálně po dobu 10 let. Odvolání souhlasu s uložením a zpracováním poskytnutých dat lze e-mailem na info@origo-reality.cz. V případě podezření na neoprávněné použití Vámi poskytnutých údajů máte právo předat podnět k šetření Úřadu pro ochranu osobních údajů. Více informací
Chystáte se prodat nemovitost?
Pomůžeme Vám!

Přihlášení k odběru

Nenechte si ujít nejnovější nabídky prodeje rodinných domů v Praze 4.