Pronájem kanceláře, Brno, Hněvkovského, 19 m2 (ID: 1873705)

Hněvkovského, Brno, Komárov

3 780 Kč
/za měsíc
Získejte výhodnou HYPOTÉKU Chci hypotéku

Parametry nemovitosti

AdresaHněvkovského, Brno, Komárov
StavbaCihlová
Stav objektuDobrý
Patro1.
VybavenoNe
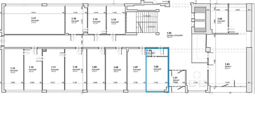
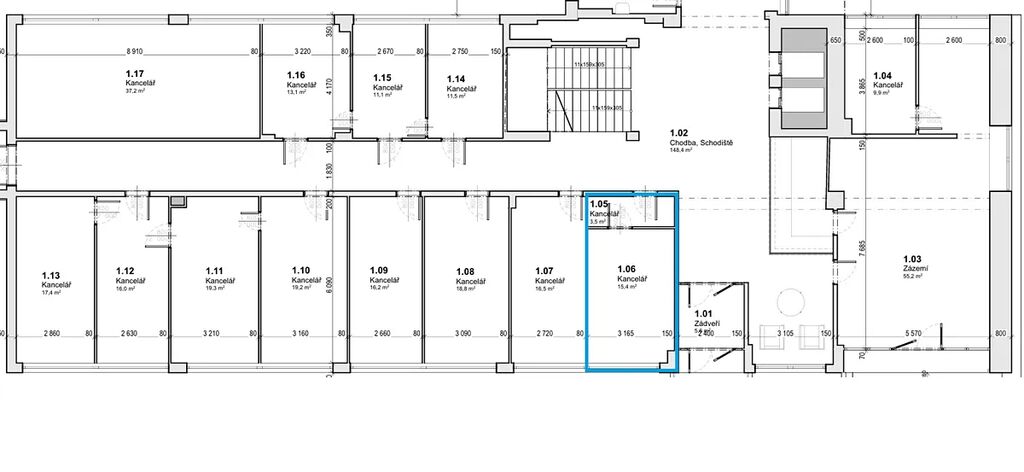
Užitná plocha19 m2
Podlahová plocha19 m2
Elektřina230V
PlynPlynovod
OdpadVeřejná kanalizace
KomunikaceAsfaltová
TelekomunikaceTelefon, Internet
DopravaDálnice, Silnice, MHD, Autobus
VodaVodovod
Topné tělesoRadiátory
Zdroj topeníPlynový kotel
Zdroj teplé vodyPlynový kotel
Výtah
Bezbarierový přístup
Parkování

Origo partneři v Brně

Popis

Jako majitel rozsáhlého areálu v atraktivní lokalitě Brno – Komárov Vám nabízíme k pronájmu kancelář o výměře 19 m², umístěnou v 1. nadzemním podlaží Budovy č. 1.
Areál je přehledně označen moderním navigačním systémem, k dispozici je dostatek parkovacích míst pro nájemce i návštěvy.
V rámci podlaží je k dispozici sdílené sociální zázemí, které prošlo v letošním roce rekonstrukcí, v současnosti dokončujeme výstavbu společné kuchyňky a jednací místnosti, které budou k využití pro všechny nájemce kanceláří.
V případě zájmu je možné pronajmout i další kanceláře ve stejném patře o velikostech 16–20 m², případně celý soubor až 5 kanceláří.
Dle dohody nabízíme i možnost pronájmu recepce, která může sloužit jako podpora pro Vaši firmu či zázemí pro klientský servis.
Pro více informací nebo prohlídku nás neváhejte kontaktovat.

Náklady na pronájem:
- nájemné 3.780,- Kč/měsíc bez DPH
- vyhrazené parkovací místo 600,- Kč/měsíc bez DPH
- energie rozúčtované dle pronajaté výměry m2
- servisní poplatek 458,- Kč/měsíc bez DPH (zahrnuje režijní náklady spojené se správou)
- je možné objednat i další služby (připojení k internetu, úklid pronajatých prostor)
kauce/jistota 21.000,- Kč

Výhody areálu Hněvkovského:
• výborná dopravní dostupnost – autem 4 minuty z centra Brna, 3 minuty z dálnic D1 a D2
• zastávka MHD přímo před areálem – autobusy č. 40, 48, 63, 67 (cca 10 minut z hlavního nádraží, 8 minut od Vaňkovky, 5 minut ze Zvonařky)
• noční ostraha, přístup do areálu v režimu 24/7
• volnočasové centrum Komec a cyklostezka podél řeky Svratky naproti areálu
• supermarket Lidl v těsné blízkosti
• po dohodě možnost umístění Vaší reklamy v rámci areálu či při ulici Hněvkovského

V případě zájmu o více informací či sjednání prohlídky prostor prosím kontaktujte paní Jarmilu Mazourovou na tel. 739 032 727. Rádi se Vám budeme věnovat.

Makléř

Máte zájem o tuto nemovistost?

Tímto, v souladu s nařízením Evropského parlamentu a Rady (EU) 2016/679, v platném znění, prohlašuji, že mi je alespoň 16 let a uděluji tak svůj souhlas se zpracováním zadaných údajů (jméno, telefon, e-mail, ip adresa) společnosti B3 Technology, s.r.o., IČ: 07330600, se sídlem Novostavby 126/23, 435 11 Lom (správce dat), za účelem předání dotazu z tohoto formuláře Vámi vybranému inzerentovi a zpětného kontaktování mé osoby. Osobní údaje bude správce zpracovávat manuálně i automaticky přímo prostřednictvím svých zaměstnanců. Informace předané tímto formulářem budou uloženy v databázi správce maximálně po dobu 10 let. Odvolání souhlasu s uložením a zpracováním poskytnutých dat lze e-mailem na info@origo-reality.cz. V případě podezření na neoprávněné použití Vámi poskytnutých údajů máte právo předat podnět k šetření Úřadu pro ochranu osobních údajů. Více informací
Chystáte se prodat nemovitost?
Pomůžeme Vám!

Přihlášení k odběru

Nenechte si ujít nejnovější nabídky pronájmu kanceláří v Brně.