Prodej rodinného domu, Oskořínek, Družstevní, 874 m2

Družstevní, Oskořínek

9 999 000 Kč
/za nemovitost
Hypotéka od 44 689 Kč /měs. Chci hypotéku

Parametry domu

AdresaDružstevní, Oskořínek
ID924401
StavbaSmíšená
Stav objektuDobrý
VybavenoČástečně
Druh objektuSamostatný
Lokalita objektuKlidná část obce
VlastnictvíOsobní
Užitná plocha874 m2
Plocha pozemku1167 m2

Origo partneři v Oskořínku

Popis

Nabízíme k prodeji prostornou nemovitost v obci Oskořínek, okres Nymburk, tvořenou dvěma spojenými domy s dvěma čísly popisnými a rozsáhlými nebytovými prostory. Celková plocha pozemku je 1.167 m².

Oba domy nabízí spoustu místností a prostornou půdu vhodnou k dalšímu rozšíření obytné části. Dále bývalý obchod s parkováním hned vedle vchodu.
Jedná se tedy o nemovitost, která je ideální pro podnikání nebo vybudování bytových jednotek.

1.PP - 4 místnosti - 139,53 m²
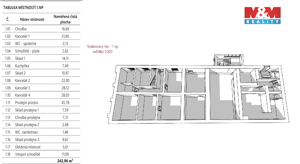
1.NP - 9 místností - 242,96 m²
2.NP - 13 místností - 631,23 m²

Veškeré inženýrské sítě jsou zavedeny, plyn je na hranici pozemku. Vytápění zajišťují elektrická akumulační kamna. Za domem se nachází zahrada o výměře 667 m² s vlastní kopanou studnou.

Dobrá dopravní dostupnost - autobusová i vlaková zastávka v blízkosti. V obci Oskořínek je také MŠ, pošta a obchod se smíšeným zbožím. ZŠ je v sousední obci Hrubý Jeseník.

Koupi je možné financovat hypotékou, pro kterou vám rádi zařídíme nabídku s výhodnou úrokovou sazbou.

Makléř

Máte zájem o tento dům?

Tímto, v souladu s nařízením Evropského parlamentu a Rady (EU) 2016/679, v platném znění, prohlašuji, že mi je alespoň 16 let a uděluji tak svůj souhlas se zpracováním zadaných údajů (jméno, telefon, e-mail, ip adresa) společnosti B3 Technology, s.r.o., IČ: 07330600, se sídlem Novostavby 126/23, 435 11 Lom (správce dat), za účelem předání dotazu z tohoto formuláře Vámi vybranému inzerentovi a zpětného kontaktování mé osoby. Osobní údaje bude správce zpracovávat manuálně i automaticky přímo prostřednictvím svých zaměstnanců. Informace předané tímto formulářem budou uloženy v databázi správce maximálně po dobu 10 let. Odvolání souhlasu s uložením a zpracováním poskytnutých dat lze e-mailem na info@origo-reality.cz. V případě podezření na neoprávněné použití Vámi poskytnutých údajů máte právo předat podnět k šetření Úřadu pro ochranu osobních údajů. Více informací
Chystáte se prodat nemovitost?
Pomůžeme Vám!

Přihlášení k odběru

Nenechte si ujít nejnovější nabídky prodeje rodinných domů v Oskořínku.