Pronájem obchodního prostoru, Brno, Lidická, 165 m2

Lidická, Brno-střed

18 000 Kč
/za měsíc
nájem 18.000,- + DPH, + inkaso 10.000,- + DPH
Získejte výhodnou HYPOTÉKU Chci hypotéku

Parametry nemovitosti

AdresaLidická, Brno-střed
ID28088
StavbaSmíšená
Stav objektuDobrý
Patro2. z 4
VybavenoNe
Typ objektuPatrový
Lokalita objektuCentrum obce
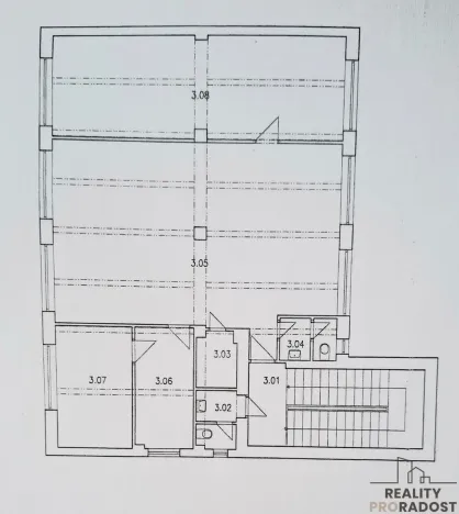
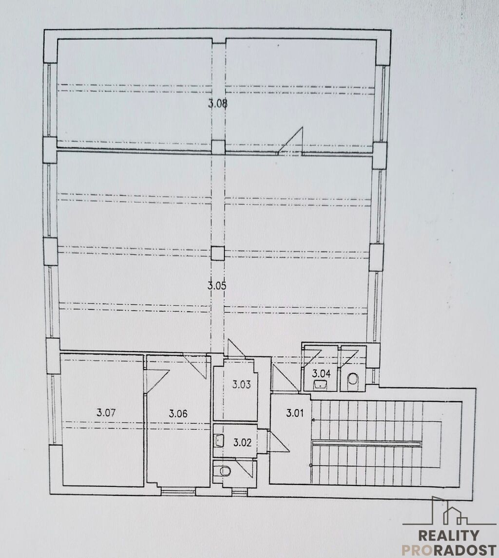
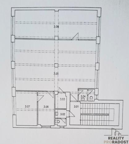
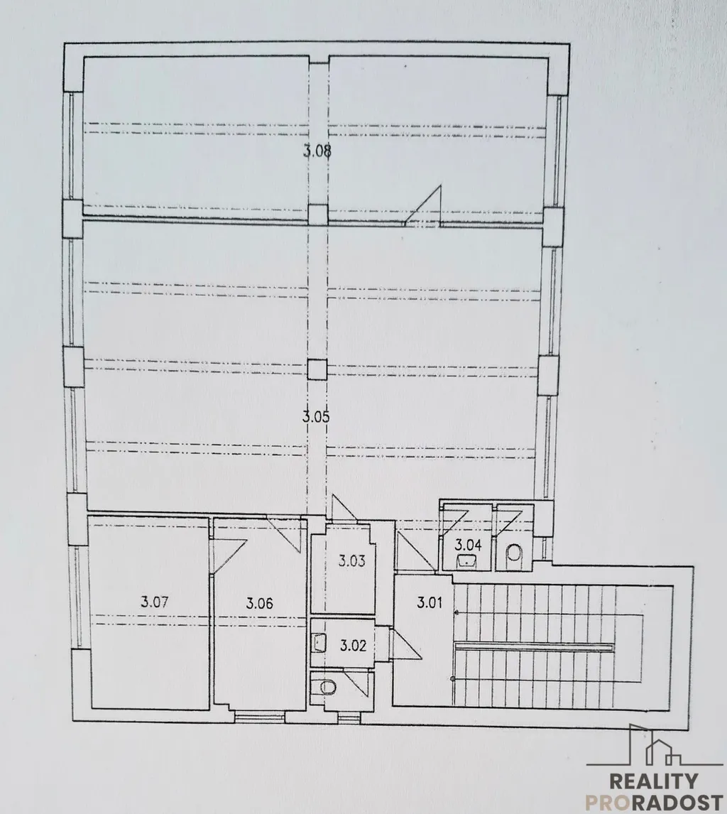
Užitná plocha165 m2
Podlahová plocha165 m2
Třída energetické náročnostiG - Mimořádně nehospodárná
Elektřina230V
OdpadVeřejná kanalizace
DopravaVlak, Dálnice, Silnice, MHD, Autobus
Převod do OV

Origo partneři v Brně

Popis

K dispozici ihned.

Nabízíme k dlouhodobému pronájmu světlé a prostorné obchodní prostory ve 2. patře komerční budovy (bez výtahu) v samotném centru Brna, na ulici Lidická. CP činí 165 m2 - jedná se o celé patro budovy.

Prostory mají výbornou dostupnost MHD i pěšky a jsou vhodné pro kanceláře, služby či jiné podnikání.
Vytápění objektu je centrální. Objekt je zabezpečený alarmem.

Dispozice a vybavení:
• velká otevřená provozní plocha
• samostatná kancelář
• malá kuchyňka
• sociální zázemí (2xWC)

Celková plocha nabízí dostatek místa pro pohodlné fungování týmu či klientské provozovny.
K objektu je možnost pronajmout parkovací stání za budovou, případně v okolí.
Prostory byly dříve využívány jako dětská skupina / školka, ale lze je snadno upravit podle potřeb nového nájemce.

Nájem obchodního prostoru činí 18.000 Kč, vyúčtovatelné zálohy na inkaso 10.000 Kč ( celkem tedy 28.000 Kč + DPH). Majitel požaduje vratnou jistotu ve výši 20.000 Kč. Provize RK je 20.000 Kč.

Možnost pronájmu parkovacího stání přímo za budovou za poplatek 1.500,- Kč/ měsíc.

Pokud Vás tato nabídka zaujala, neváhejte mě kontaktovat.
Vaše realitní makléřka Marie.

Makléř

Máte zájem o tuto nemovistost?

Tímto, v souladu s nařízením Evropského parlamentu a Rady (EU) 2016/679, v platném znění, prohlašuji, že mi je alespoň 16 let a uděluji tak svůj souhlas se zpracováním zadaných údajů (jméno, telefon, e-mail, ip adresa) společnosti B3 Technology, s.r.o., IČ: 07330600, se sídlem Novostavby 126/23, 435 11 Lom (správce dat), za účelem předání dotazu z tohoto formuláře Vámi vybranému inzerentovi a zpětného kontaktování mé osoby. Osobní údaje bude správce zpracovávat manuálně i automaticky přímo prostřednictvím svých zaměstnanců. Informace předané tímto formulářem budou uloženy v databázi správce maximálně po dobu 10 let. Odvolání souhlasu s uložením a zpracováním poskytnutých dat lze e-mailem na info@origo-reality.cz. V případě podezření na neoprávněné použití Vámi poskytnutých údajů máte právo předat podnět k šetření Úřadu pro ochranu osobních údajů. Více informací
Chystáte se prodat nemovitost?
Pomůžeme Vám!

Přihlášení k odběru

Nenechte si ujít nejnovější nabídky pronájmu obchodních prostor v Brně.