Prodej bytu 3+1, Ostrava, náměstí Antonie Bejdové, 73 m2 (ID: 1873026)
náměstí Antonie Bejdové, Ostrava, Poruba
/za nemovitost
Náklady na bydlení činí 5.000,- Kč/ měsíc/1 osoba
Parametry bytu
| Náklady na bydlení | 5 000 | 
|---|---|
| Adresa | náměstí Antonie Bejdové, Ostrava, Poruba | 
| ID | 0719 | 
| Stavba | Panelová | 
| Stav objektu | Po rekonstrukci | 
| Patro | 4. z 12 | 
| Vybaveno | Částečně | 
| Lokalita objektu | Klidná část obce | 
| Vlastnictví | Družstevní | 
| Užitná plocha | 73 m2 | 
| Třída energetické náročnosti | C - Úsporná | 
| Elektřina | 230V | 
| Odpad | Veřejná kanalizace | 
| Komunikace | Asfaltová | 
| Telekomunikace | Internet | 
| Doprava | MHD | 
| Voda | Vodovod | 
| Topné těleso | Radiátory | 
| Zdroj topení | Ústřední dálkové | 
| Lodžie | |
| Výtah | |
| Převod do OV | 
Popis
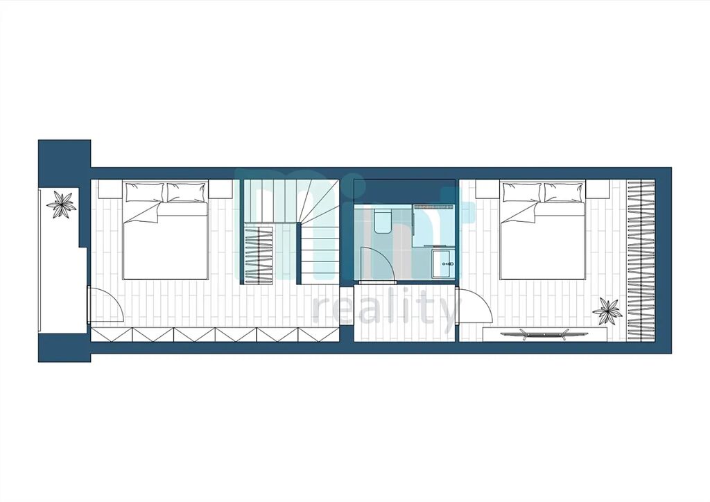
Nabízíme k prodeji mezonetový byt o dispozici 3 + 1 [73 m²] umístěný na čtvrtém podlaží dvanáctipatrového panelového domu, nacházejícího se na adrese náměstí Antonie Bejdové v Ostravě-Porubě.
Právě dokončena nadstandardní rekonstrukce, která zahrnovala nové rozvody elektřiny, sádrové omítky a vinylové podlahy, panelové jádro, sanitární obklady, nová topná tělesa v celém bytě a interiérové dveře, což zajistí komfortní a moderní bydlení.
Byt je rozdělen do dvou úrovní. Po vstupu do bytu se ocitnete v útulné kuchyni, která je vybavena elektrickou indukční varnou deskou, vestavěnou elektrickou troubou a mikrovlnnou troubou. Disponuje také kuchyňským ostrůvkem, díky němu má kuchyň moderní vzhled a dostatek úložného místa. Kuchyň má také přípojky na myčku a pračku, což usnadňuje běžný provoz domácnosti. Ve spodní části bytu se nachází prostorný a slunný obývací pokoj, ideální pro odpočinek a rodinné posezení, a toaleta.
Horní část bytu nabízí dva pokoje, které poskytují dostatek soukromí. Z jednoho z těchto pokojů je přístup na zasklenou lodžii, která je skvělým místem pro relaxaci a užívání si výhledu do okolí. Koupelna je vybavena moderním sprchovým koutem, umyvadlem a je zde také umístěna toaleta.
Vstup do bytu je z uzamykatelné chodbičky, tzv. pavlače, a v domě se nacházejí dva výtahy. Lokalita, ve které se nemovitost nachází, je velmi klidná a nabízí dostatek zeleně. V blízkosti jsou mateřské školky, základní školy a také Vysoká škola báňská – Technická univerzita Ostrava. Nakupování je pohodlné díky blízkosti obchodního střediska Duha, supermarketu a lékárny. MHD zastávka je snadno dostupná, což usnadňuje každodenní cestování.
Okolí nabízí krásné procházky, včetně lesa, který vede do Plesné a Pustkoveckého Parku.
Uvedená cena je včetně provize a právního servisu.
Náš tým finančních poradců Vám vyřeší otázku financování.
V případě zájmu o prohlídku nás neváhejte kontaktovat.
Přihlášení k odběru
Nenechte si ujít nejnovější nabídky prodeje bytů 3+1 v Ostravě.
 
                                                                                     
                                                                                     
                                                                                     
                                                                                     
                                                                                     
                                                                                     
                                                                                     
                                                                                     
                                                                                     
                                                                                     
                                                                                     
                                                                                     
                                                                                     
                                                                                     
                                                                                     
                                                                                     
                                                                                     
                                                                                     
                                                                                     
                                                                                     
                                                                                     
                                                                                     
                                                                                     
                                                                                     
                                                                                     
                                                                                     
                                                                                     
                                                                                     
                                                                                     
                                                                                     
                                                                                     
                                                                                     
                         
         
         
         
         
         
         
        