Prodej vily, Pafos, Kypr, 101 m2

Pafos

495 000 €
/za nemovitost
+DPH

Parametry domu

AdresaPafos
IDF19541
StavbaCihlová
Stav objektuDobrý
VybavenoČástečně
Druh objektuSamostatný
Lokalita objektuKlidná část obce
Užitná plocha101 m2
Zastavěná plocha111 m2
Podlahová plocha101 m2
Plocha pozemku300 m2
Elektřina230V
OdpadČOV pro celý objekt
TopeníLokální plynové
TelekomunikaceTelefon
DopravaDálnice, Silnice
VodaMístní zdroj vody
Parkování
Bazén

Origo partneři

Popis

Jsme na místě a jsme první české zastoupení na Kypru. Díky tomu vám můžeme nabídnout ty nejlepší cenové nabídky investičních i rekreačních nemovitostí po celém ostrově.

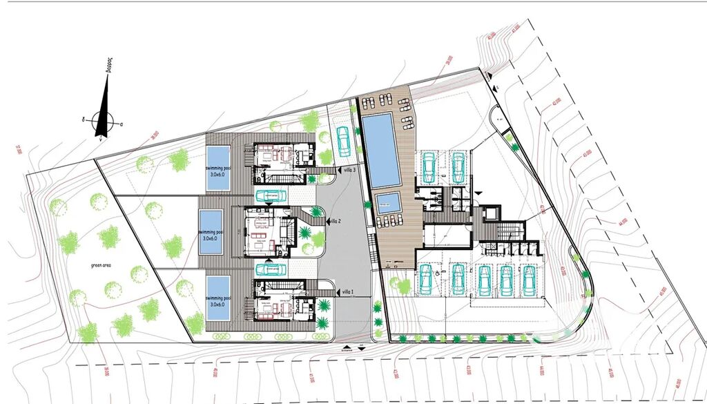
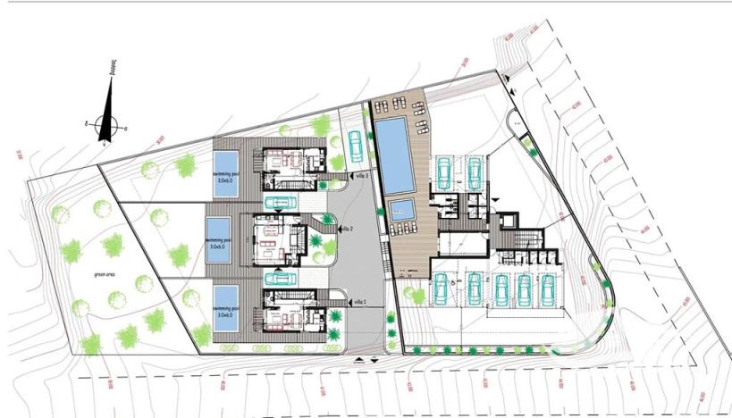
Nový projekt v nejvyhledávanější lokalitě Paphosu – pouhých 350 m od moře

Představujeme nový developerský projekt složený ze tří menších domů a bytového domu se šesti apartmány, který se nachází v jedné z nejžádanějších oblastí Paphosu. Projekt je vhodný jak pro investory, tak i pro ty, kteří hledají druhý domov u moře.

Lokalita a dostupnost:

Pouhých 350 metrů od moře

V docházkové vzdálenosti od autobusové zastávky, kiosku, uzenářství, obchodu se zeleninou a pizzerie vlastněné českými majiteli

9 minut autem od pláže Coral Bay

15 minut od přístavu v Paphosu

30 minut od mezinárodního letiště v Paphosu

Charakter projektu:

Tři menší domy a bytový dům s šesti apartmány

Menší počet jednotek zajišťuje větší soukromí a exkluzivitu

Moderní architektura a kvalitní zpracování

Ideální kombinace rekreačního bydlení a investiční příležitosti

Proč investovat právě zde:

Paphos je dlouhodobě nejvyhledávanějším městem na Kypru pro zahraniční investory díky stabilnímu růstu cen nemovitostí, vysoké poptávce po krátkodobém i dlouhodobém pronájmu a výborné infrastruktuře.

Tento projekt představuje mimořádnou příležitost investovat do nemovitosti v atraktivní lokalitě, která spojuje blízkost moře, plnou občanskou vybavenost a silný investiční potenciál.

Nabízíme k prodeji moderní vilu o dispozici 2+1, situovanou v klidné a vyhledávané oblasti Kissonerga, jen několik minut jízdy od centra Paphosu a pobřeží.

Tato nemovitost disponuje dvěma prostornými ložnicemi a dvěma koupelnami, což zajišťuje pohodlí jak pro trvalé bydlení, tak i pro rekreační využití. Součástí vily je také slunný balkon o rozloze 10 m², ideální pro ranní kávu či večerní relaxaci s výhledem do okolní krajiny.

K vile náleží přístup k soukromému bazénu, který poskytuje maximální soukromí a komfort během letních dnů. Objekt je situován v dobře dostupné lokalitě s veškerou občanskou vybaveností v dosahu, včetně restaurací, obchodů a pláží.

Díky své poloze a dispozici je nemovitost vhodná nejen jako druhý domov u moře, ale i jako výhodná investiční příležitost s potenciálem krátkodobého i dlouhodobého pronájmu.

Dnes Kypr, se svou evropskou kulturou a civilizací sahající až do starověku, nabízí mnohem více než jen celoroční slunečné počasí, lákavé pláže, vinice, historická místa a rodinně orientovanou kulturu otevřených a komunikativních obyvatel.

Kombinace mírného klimatu, širokého využití angličtiny a dalších světových jazyků, nízké kriminality, nízkých životních nákladů a daňových výhod činí z ostrova nejatraktivnější destinaci pro život i podnikání.

O správu nemovitosti se postaráme od začátku do konce. Můžete na nás spoléhat ve všech ohledech.

Koupí naší nemovitosti nekončíte, ale teprve začínáte.
Váš tým MNM.

Makléř

Máte zájem o tento dům?

Tímto, v souladu s nařízením Evropského parlamentu a Rady (EU) 2016/679, v platném znění, prohlašuji, že mi je alespoň 16 let a uděluji tak svůj souhlas se zpracováním zadaných údajů (jméno, telefon, e-mail, ip adresa) společnosti B3 Technology, s.r.o., IČ: 07330600, se sídlem Novostavby 126/23, 435 11 Lom (správce dat), za účelem předání dotazu z tohoto formuláře Vámi vybranému inzerentovi a zpětného kontaktování mé osoby. Osobní údaje bude správce zpracovávat manuálně i automaticky přímo prostřednictvím svých zaměstnanců. Informace předané tímto formulářem budou uloženy v databázi správce maximálně po dobu 10 let. Odvolání souhlasu s uložením a zpracováním poskytnutých dat lze e-mailem na info@origo-reality.cz. V případě podezření na neoprávněné použití Vámi poskytnutých údajů máte právo předat podnět k šetření Úřadu pro ochranu osobních údajů. Více informací
Chystáte se prodat nemovitost?
Pomůžeme Vám!

Přihlášení k odběru

Nenechte si ujít nejnovější nabídky prodeje vil.