Pronájem kanceláře, Praha - Jinonice, Radlická, 85 m2

Radlická, Praha, Jinonice

350 Kč
/za metr čtvereční / měsíc
Získejte výhodnou HYPOTÉKU Chci hypotéku

Parametry nemovitosti

AdresaRadlická, Praha, Jinonice
ID320812
StavbaSkeletová
Stav objektuNovostavba
Patro2. z 8
Užitná plocha85 m2
Třída energetické náročnostiB - Velmi úsporná
Parkování

Origo partneři v Praze 5

Stěhovací služby

Výkup a prodej starého nábytku

Popis

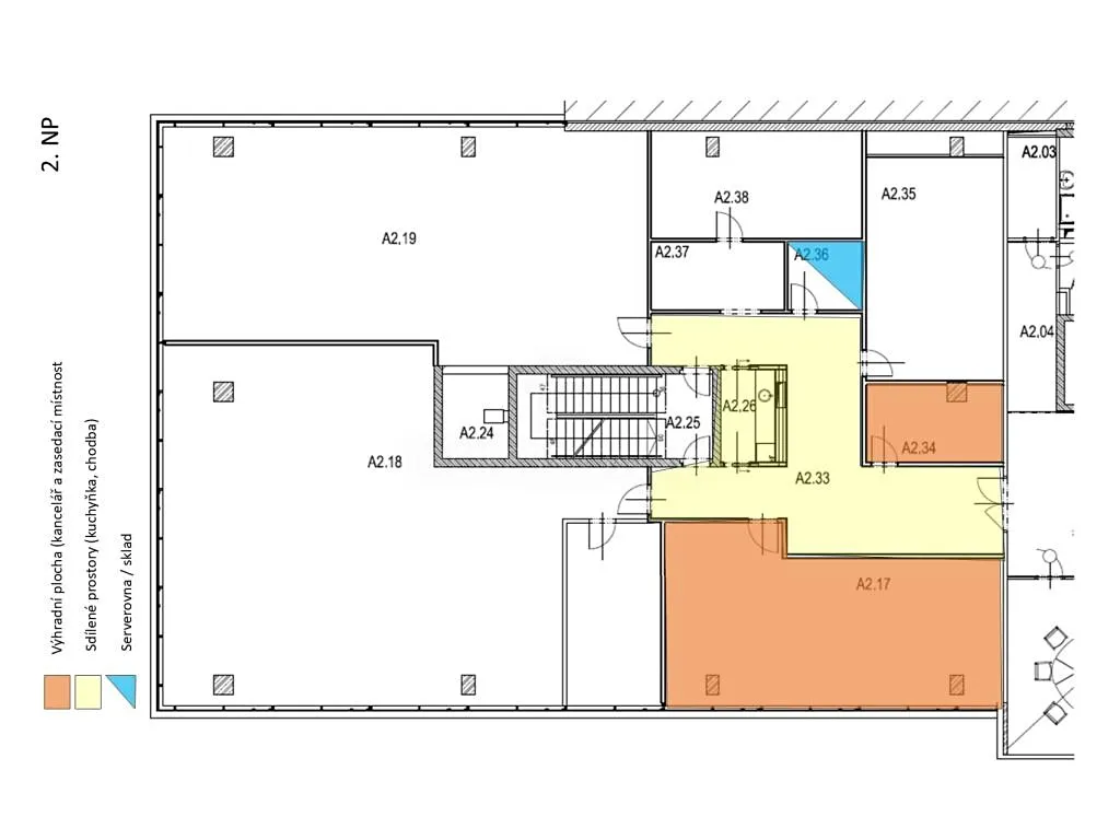
Butovice Offices je moderní budova z roku 2006, která je centrálou společnosti Albert. V posledním patře se nachází bistro se střešní terasou, v přízemí centrální recepce a restaurace. Nájemci jsou Albert, Action, MyWorld, Comagrin, Ipodnik. Kanceláře 175 m2 (open space 123 m2 + zasedačka, kuchyňka, komunikace, serverovna) ve druhém podlaží(rezervováno). Volné ihned kanceláře 85 m2, jedná se o openspace 50 m2, zasedací místnost a sdílené zázemí. Výhled je do ulice Radlická a směrem k OC Galerie Butovice. Flexibilní doba nájmu, příspěvek na úpravu prostor.

Makléř

Máte zájem o tuto nemovistost?

Tímto, v souladu s nařízením Evropského parlamentu a Rady (EU) 2016/679, v platném znění, prohlašuji, že mi je alespoň 16 let a uděluji tak svůj souhlas se zpracováním zadaných údajů (jméno, telefon, e-mail, ip adresa) společnosti B3 Technology, s.r.o., IČ: 07330600, se sídlem Novostavby 126/23, 435 11 Lom (správce dat), za účelem předání dotazu z tohoto formuláře Vámi vybranému inzerentovi a zpětného kontaktování mé osoby. Osobní údaje bude správce zpracovávat manuálně i automaticky přímo prostřednictvím svých zaměstnanců. Informace předané tímto formulářem budou uloženy v databázi správce maximálně po dobu 10 let. Odvolání souhlasu s uložením a zpracováním poskytnutých dat lze e-mailem na info@origo-reality.cz. V případě podezření na neoprávněné použití Vámi poskytnutých údajů máte právo předat podnět k šetření Úřadu pro ochranu osobních údajů. Více informací
Chystáte se prodat nemovitost?
Pomůžeme Vám!