Prodej bytu 3+kk, Novalja, Chorvatsko, 56 m2 (ID: 1866412)
Novalja
/za nemovitost
Parametry bytu
| Adresa | Novalja | 
|---|---|
| ID | F19559 | 
| Stavba | Cihlová | 
| Stav objektu | Novostavba | 
| Patro | 2. z 3 | 
| Vybaveno | Částečně | 
| Lokalita objektu | Klidná část obce | 
| Vlastnictví | Osobní | 
| Užitná plocha | 56 m2 | 
| Podlahová plocha | 60 m2 | 
| Elektřina | 230V | 
| Odpad | ČOV pro celý objekt | 
| Topení | Lokální elektrické | 
| Doprava | Silnice | 
| Terasa | |
| Výtah | |
| Parkování | 
Popis
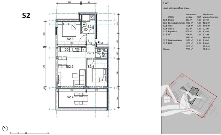
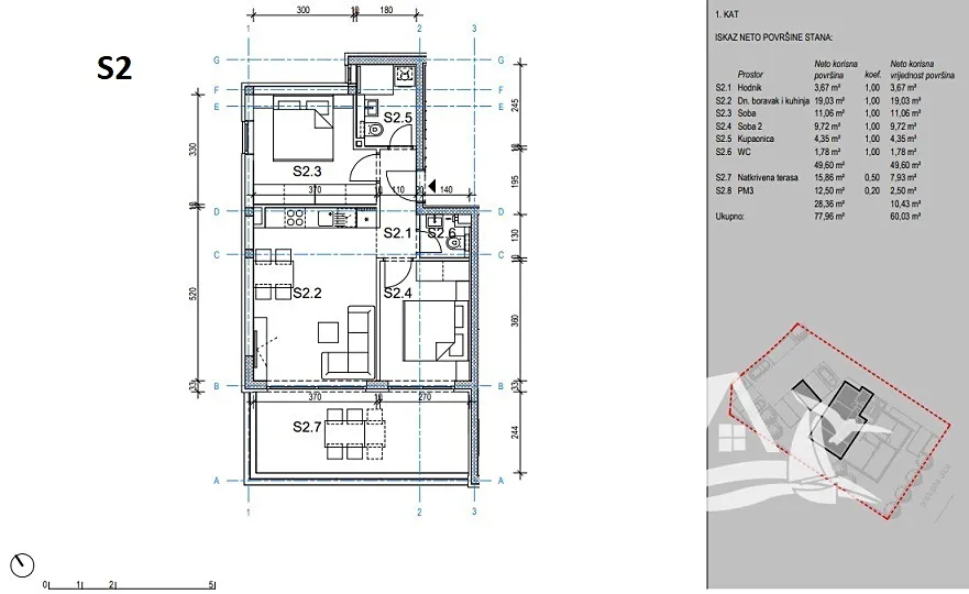
Nabízíme k prodeji třípokojový byt (S2) o rozloze 60,03 m², který se nachází v prvním patře novostavby v oblíbené lokalitě Novalja. Byt nabízí moderní dispozici a jedinečný panoramatický výhled na moře.
Byt se skládá z chodby, koupelny s WC, dvou ložnic, obývacího pokoje a kuchyně. K bytu náleží prostorná terasa o velikosti 15,86 m², která je částečně zastřešená a poskytuje ideální místo pro relaxaci s výhledem na celý záliv Novalja. Díky mírnému sklonu terénu je výhled nerušený a zajišťuje maximální soukromí.
V bytě je instalováno podlahové vytápění a klimatizace, což zajišťuje vysoký komfort bydlení po celý rok. Při výstavbě byly použity pouze nejkvalitnější materiály a zařízení, což garantuje dlouhou životnost a nadstandardní provedení interiéru.
K bytu náleží také vyhrazené parkovací stání. Lokalita nabízí vynikající dostupnost, k moři a do centra města je to pouhých 10 minut chůze.
Tento byt je ideální volbou pro ty, kteří hledají moderní a kvalitní bydlení s nádherným výhledem na moře v jedné z nejžádanějších destinací na ostrově Pag. Pro více informací nebo domluvení prohlídky nás neváhejte kontaktovat.
Přihlášení k odběru
Nenechte si ujít nejnovější nabídky prodeje bytů 3+kk.
 
                                                                                     
                                                                                     
                                                                                     
                                                                                     
                                                                                     
                                                                                     
                                                                                     
                                                                                     
                                                                                     
                                                                                     
                                                                                     
                         
         
         
         
         
         
         
         
        