Prodej bytu 4+kk, Privlaka, Chorvatsko, 94 m2

Privlaka

500 000 €
/za nemovitost

Parametry bytu

AdresaPrivlaka
IDF19560
StavbaCihlová
Stav objektuNovostavba
Patro2. z 2
VybavenoČástečně
Lokalita objektuKlidná část obce
VlastnictvíOsobní
Užitná plocha94 m2
Podlahová plocha123 m2
Elektřina230V
OdpadVeřejná kanalizace, ČOV pro celý objekt
TopeníLokální tuhá paliva, Lokální elektrické
TelekomunikaceInternet
DopravaDálnice, Silnice, Autobus
VodaVodovod
Terasa
Parkování

Origo partneři

Popis

Nabízíme k prodeji moderní apartmán s bazénem, pouhých 60 metrů od moře v malebné obci Privlaka. Tento apartmán svou dispozicí a soukromím připomíná dvojdomek, což poskytuje pocit samostatného bydlení. Jedná se o novostavbu, jejíž dokončení je plánováno na léto 2024. Nemovitost nabízí částečný výhled na moře a je ideální jak pro trvalé bydlení, tak pro rekreační využití.

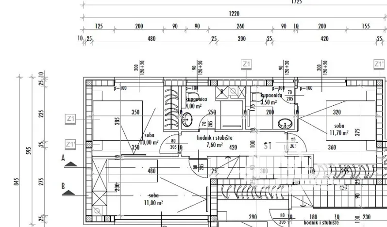
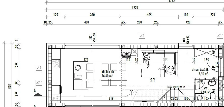
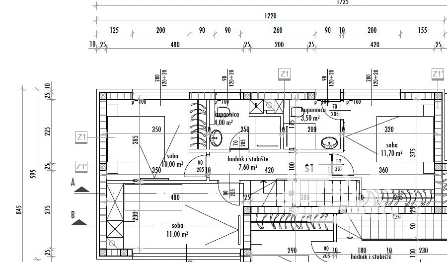
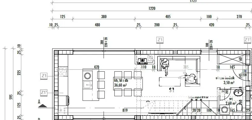
Apartmán se rozkládá na dvou podlažích s vlastní zahradou a bazénem. V přízemí se nachází vstupní chodba, kuchyň s jídelnou, obývací pokoj, toaleta a krytá terasa. V prvním patře najdete chodbu, hlavní ložnici s vlastní koupelnou, další dvě ložnice a společnou koupelnu. Celková užitná plocha činí 94,93 m². K apartmánu patří také dvě parkovací místa, zahrada o velikosti přibližně 50 m² a bazén o rozloze 18 m².

Celková užitná plocha včetně všech příslušenství činí 123,43 m².

Nemovitost je postavena z cihelných termo bloků, zateplená 10 cm polystyrenovou izolací. Podlahy jsou pokryty dlažbou a parketami. Bazén je připraven na instalaci vytápění, což umožní jeho využívání po celý rok. Klimatizace je instalována v obývacím pokoji, hlavní ložnici a na chodbě v patře. Vstupní dveře jsou bezpečnostní, obývací pokoj je vybaven krbem a na dvoře je k dispozici gril. Předpokládá se energetický certifikát třídy A.


Privlaka je malebná rybářská a turistická obec, která se nachází na rozlehlém písečném poloostrově mezi královským městem Nin a ostrovem Vir, pouhých 15 minut jízdy od historického města Zadar. Čisté moře a dlouhé, mělké písečné zátoky jsou ideální pro úplnou relaxaci. Místo nabízí veškerou potřebnou infrastrukturu pro pohodlný život – obchody, restaurace, poštu a zdravotní služby. Milovníci sportu a rekreace, kteří se chtějí věnovat plachtění nebo surfování, zde najdou ideální podmínky.

Privlaka je ideální místo pro klidnou a pohodovou dovolenou v pravém středomořském stylu.

Makléř

Máte zájem o tento byt?

Tímto, v souladu s nařízením Evropského parlamentu a Rady (EU) 2016/679, v platném znění, prohlašuji, že mi je alespoň 16 let a uděluji tak svůj souhlas se zpracováním zadaných údajů (jméno, telefon, e-mail, ip adresa) společnosti B3 Technology, s.r.o., IČ: 07330600, se sídlem Novostavby 126/23, 435 11 Lom (správce dat), za účelem předání dotazu z tohoto formuláře Vámi vybranému inzerentovi a zpětného kontaktování mé osoby. Osobní údaje bude správce zpracovávat manuálně i automaticky přímo prostřednictvím svých zaměstnanců. Informace předané tímto formulářem budou uloženy v databázi správce maximálně po dobu 10 let. Odvolání souhlasu s uložením a zpracováním poskytnutých dat lze e-mailem na info@origo-reality.cz. V případě podezření na neoprávněné použití Vámi poskytnutých údajů máte právo předat podnět k šetření Úřadu pro ochranu osobních údajů. Více informací
Chystáte se prodat nemovitost?
Pomůžeme Vám!

Přihlášení k odběru

Nenechte si ujít nejnovější nabídky prodeje bytů 4+kk.