Prodej bytu 3+kk, Pafos, Kypr, 78 m2

Pafos

395 000 €
/za nemovitost
+DPH

Parametry bytu

AdresaPafos
IDF19539
StavbaCihlová
Stav objektuDobrý
Patro1. z 3
VybavenoČástečně
Lokalita objektuKlidná část obce
VlastnictvíOsobní
Užitná plocha78 m2
Podlahová plocha96 m2
Elektřina230V
PlynPlynovod
OdpadČOV pro celý objekt
TopeníLokální elektrické
TelekomunikaceTelefon
DopravaDálnice, Silnice
VodaMístní zdroj vody
Terasa
Parkování

Origo partneři

Popis

Jsme na místě a jsme první české zastoupení na Kypru. Díky tomu vám můžeme nabídnout ty nejlepší cenové nabídky investičních i rekreačních nemovitostí po celém ostrově.

Nový projekt v nejvyhledávanější lokalitě Paphosu – pouhých 350 m od moře

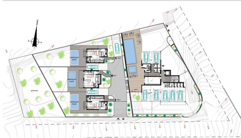
Představujeme nový developerský projekt složený ze tří menších domů a bytového domu se šesti apartmány, který se nachází v jedné z nejžádanějších oblastí Paphosu. Projekt je vhodný jak pro investory, tak i pro ty, kteří hledají druhý domov u moře.

Lokalita a dostupnost:

Pouhých 350 metrů od moře

V docházkové vzdálenosti od autobusové zastávky, kiosku, uzenářství, obchodu se zeleninou a pizzerie vlastněné českými majiteli

9 minut autem od pláže Coral Bay

15 minut od přístavu v Paphosu

30 minut od mezinárodního letiště v Paphosu

Charakter projektu:

Tři menší domy a bytový dům s šesti apartmány

Menší počet jednotek zajišťuje větší soukromí a exkluzivitu

Moderní architektura a kvalitní zpracování

Ideální kombinace rekreačního bydlení a investiční příležitosti

Proč investovat právě zde:

Paphos je dlouhodobě nejvyhledávanějším městem na Kypru pro zahraniční investory díky stabilnímu růstu cen nemovitostí, vysoké poptávce po krátkodobém i dlouhodobém pronájmu a výborné infrastruktuře.

Tento projekt představuje mimořádnou příležitost investovat do nemovitosti v atraktivní lokalitě, která spojuje blízkost moře, plnou občanskou vybavenost a silný investiční potenciál.

Nabízíme k prodeji nádherný projekt kousek od moře podpultovka , jedná se o startovací ceny. Jedná se moderní byt o dispozici 3+kk v atraktivní lokalitě Kissonerga, jen pár minut jízdy od centra Paphosu a nedaleko pobřeží. Byt se nachází v klidné rezidenční oblasti a je ideální jak pro trvalé bydlení, tak i jako investice k rekreačnímu pronájmu.

Dispozice bytu zahrnuje dvě prostorné ložnice, dvě koupelny, obývací prostor propojený s plně vybaveným kuchyňským koutem a vstup na slunnou terasu o rozloze 15 m², na které můžete pít svou ranní kávu a vychutnávat si středozemní prostředí.

Kissonerga je vyhledávaná oblast díky své výborné dostupnosti k plážím, obchodům, restauracím i veřejné dopravě, přičemž si zachovává poklidnou atmosféru a příjemné sousedské prostředí.

Dnes Kypr, se svou evropskou kulturou a civilizací sahající až do starověku, nabízí mnohem více než jen celoroční slunečné počasí, lákavé pláže, vinice, historická místa a rodinně orientovanou kulturu otevřených a komunikativních obyvatel.

Kombinace mírného klimatu, širokého využití angličtiny a dalších světových jazyků, nízké kriminality, nízkých životních nákladů a daňových výhod činí z ostrova nejatraktivnější destinaci pro život i podnikání.

Makléř

Máte zájem o tento byt?

Tímto, v souladu s nařízením Evropského parlamentu a Rady (EU) 2016/679, v platném znění, prohlašuji, že mi je alespoň 16 let a uděluji tak svůj souhlas se zpracováním zadaných údajů (jméno, telefon, e-mail, ip adresa) společnosti B3 Technology, s.r.o., IČ: 07330600, se sídlem Novostavby 126/23, 435 11 Lom (správce dat), za účelem předání dotazu z tohoto formuláře Vámi vybranému inzerentovi a zpětného kontaktování mé osoby. Osobní údaje bude správce zpracovávat manuálně i automaticky přímo prostřednictvím svých zaměstnanců. Informace předané tímto formulářem budou uloženy v databázi správce maximálně po dobu 10 let. Odvolání souhlasu s uložením a zpracováním poskytnutých dat lze e-mailem na info@origo-reality.cz. V případě podezření na neoprávněné použití Vámi poskytnutých údajů máte právo předat podnět k šetření Úřadu pro ochranu osobních údajů. Více informací
Chystáte se prodat nemovitost?
Pomůžeme Vám!

Přihlášení k odběru

Nenechte si ujít nejnovější nabídky prodeje bytů 3+kk.