Prodej rodinného domu, Vir, Chorvatsko, 133 m2 (ID: 1866406)

Vir

490 000 €
/za nemovitost

Parametry domu

AdresaVir
IDF19550
StavbaCihlová
Stav objektuVe výstavbě
VybavenoČástečně
Druh objektuSamostatný
Lokalita objektuKlidná část obce
Užitná plocha133 m2
Zastavěná plocha70 m2
Podlahová plocha133 m2
Plocha pozemku250 m2
Plocha zahrady100 m2
Elektřina230V
OdpadVeřejná kanalizace
TopeníLokální elektrické
TelekomunikaceInternet
DopravaDálnice, Silnice
VodaVodovod
Parkování
Bazén

Origo partneři

Popis

Krásný, moderní dvojdům s bazénem je na prodej na jižní straně ostrova Vir. Nachází se pouhých 260 m od moře.

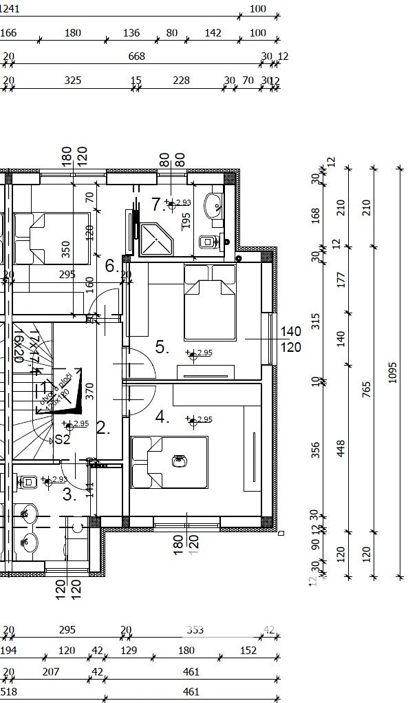
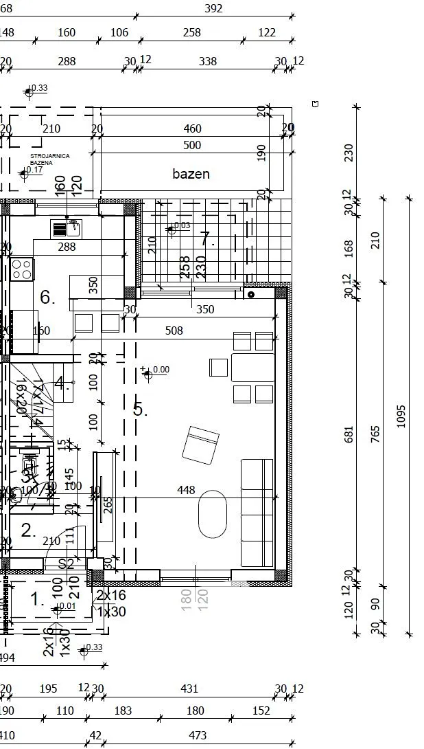
Dům se skládá ze dvou podlaží. Přízemí tvoří krytý vstup, chodba, WC, kuchyně s jídelnou a obývacím pokojem, schodiště do patra a krytá terasa. Plocha přízemí je 55,57 m2. V prvním patře se nachází chodba, koupelna a tři pokoje, z nichž jedna má vlastní koupelnu. Plocha prvního patra je 57,39 m2.
Plocha zahrady je 100 m2, bazénu 15 m2 a k domu náleží také dvě parkovací stání.
Celková čistá užitná plocha této bytové jednotky s popsanými přílohami je 133,50 m2.

Vzhledem k tomu, že tuto nemovitost prodává právnická osoba, tedy firma, neplatí kupující daň z prodeje nemovitosti.
Budova je ve výstavbě a nastěhování je plánováno na jaro 2024.

Dům je postaven z cihelných tepelných bloků s tepelnou izolací polystyren o tloušťce 10 cm. Podlahové krytiny tvoří dlažba a laminát. Okna jsou z PVC materiálu s třívrstvým sklem, elektrické žaluzie a sítě proti hmyzu. V každé ložnici a v obývacím pokoji je jedna klimatizace. Vstupní dveře domu jsou proti vloupání.

Kryt bazénu je folie. Jsou provedeny přípravy na vytápění a je vybaveno automatickým doplňováním vody. Vedle bazénu je venkovní sprcha.

U této nemovitosti se předpokládá energetický průkaz A.
Dům je napojen na kompletní infrastrukturu.


Ostrov Vir je jedním z nejznámějších turistických center v Chorvatsku. Ostrov Vir se nachází na úplném severozápadě Zadarské župy. Je obklopeno Virským mořem a Povljanským průlivem, stejně jako četnými menšími zátokami. S pevninou je spojen mostem.
Členité pobřeží ostrova Vir, dlouhé 31,43 km, zdobí mnoho pláží, od písečných, oblázkových až po kamenité, skalnaté, od přeplněných, organizovaných pláží s rozmanitým vybavením až po intimní zátoky, jako součást nedotčené přírody. Pláže ostrova Vir, částečně umístěné vedle borových lesů s křišťálově čistým mořem, činí tento ostrov ideálním místem pro rodinnou dovolenou.
Kromě turistiky v letních měsících je Vir v zimě ideální oázou klidu pro rodinný život. Má veškerou potřebnou vybavenost: škola, školka, obchody, autobusové nádraží, restaurace a kavárny.
Vir je 26 km od Zadaru a 12 km od nejbližšího města Nin.

Jsme realitní agentura s dlouholetou zkušeností. Odborně a férově poradíme s výběrem. Postaráme se o to, aby nákup vámi vybrané nemovitosti proběhl hladce a bez starostí. Celý proces převodu vlastnictví dokážeme zajistit a zabezpečit na dálku a bez zbytečného cestování. Včetně veškerých podkladů na převod vlastnictví, včetně převodu energií a všech registrací.
Pro více zajímavých a aktuálních nabídek se podívejte na naše stránky.
Tým Mojenemovitostumore

Makléř

Máte zájem o tento dům?

Tímto, v souladu s nařízením Evropského parlamentu a Rady (EU) 2016/679, v platném znění, prohlašuji, že mi je alespoň 16 let a uděluji tak svůj souhlas se zpracováním zadaných údajů (jméno, telefon, e-mail, ip adresa) společnosti B3 Technology, s.r.o., IČ: 07330600, se sídlem Novostavby 126/23, 435 11 Lom (správce dat), za účelem předání dotazu z tohoto formuláře Vámi vybranému inzerentovi a zpětného kontaktování mé osoby. Osobní údaje bude správce zpracovávat manuálně i automaticky přímo prostřednictvím svých zaměstnanců. Informace předané tímto formulářem budou uloženy v databázi správce maximálně po dobu 10 let. Odvolání souhlasu s uložením a zpracováním poskytnutých dat lze e-mailem na info@origo-reality.cz. V případě podezření na neoprávněné použití Vámi poskytnutých údajů máte právo předat podnět k šetření Úřadu pro ochranu osobních údajů. Více informací
Chystáte se prodat nemovitost?
Pomůžeme Vám!