Pronájem kanceláře, Praha - Smíchov, Holečkova, 345 m2 (ID: 1866240)

Holečkova, Praha, Smíchov

5 693 €
/za měsíc
Nájemné: 16,50 Euro /m2 plus DPH Poplatky (včetně elektřiny) činí 150 Kč/m2 za měsíc plus DPH Parking: 23 místa: 200 Euro plus DPH (stání) Jistota: 3
Získejte výhodnou HYPOTÉKU Chci hypotéku

Parametry nemovitosti

AdresaHolečkova, Praha, Smíchov
ID920561
StavbaSmíšená
Stav objektuNovostavba
Patro2. z 5
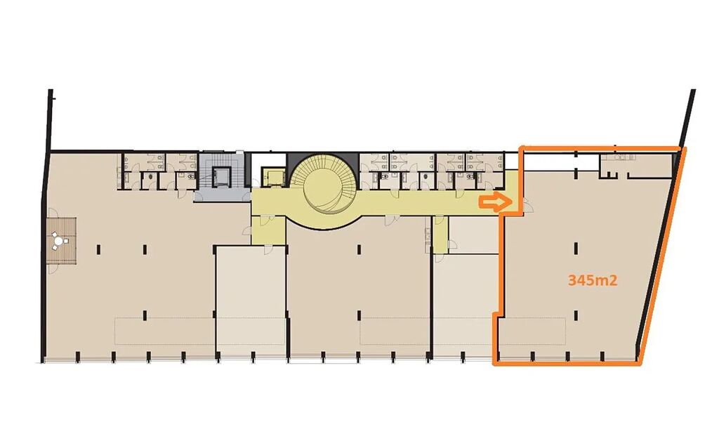
Užitná plocha345 m2
Zastavěná plocha995 m2
Podlahová plocha345 m2
Třída energetické náročnostiB - Velmi úsporná
PlynPlynovod
OdpadVeřejná kanalizace
TelekomunikaceTelefon, Kabelová televize
DopravaMHD
VodaVodovod
Garáž
Výtah

Origo partneři v Praze 5

Stěhovací služby

Výkup a prodej starého nábytku

Popis

Nabízíme moderní nebytový prostor ve stavu shell and core o celkové ploše 345m2, je situovaný v 1.patře v unikátním luxusním administrativně rezidenčním komplexu (realizace architektonické studio DAM.architekti ) s výtahem, recepcí, ostrahou, wellness s bazénem, ​​saunou, prostornou zahradou s grilem a posezením, sklepy a možností parkování v podzemním parkovišti. Lokalita nabízí výborné strategické místo pro podnikání.
Formát shell and core vám umožní vytvořit si svůj prostor přesně tak, jak si ho představujete. Interiér typu open space s přípravou na vlastní zázemí kuchyňky, nabízí možnost i členění prostoru dle potřeb. Dámské a pánské toalety jsou situované ve společných prostorách chodby přímo na patře. Budova zaručuje sníženou spotřebu energií, nadstandardní tepelnou izolací pláště a instalací nuceného větrání s rekuperací tepla i chladu.
Bonusem je možnost využívání rozlehlé zahrady s posezením a s grilem pro firemní nebo soukromé akce. Také možnost využívaní wellnessu za poplatek.

Budova se nachází v lukrativní části Prahy, vedle parku Sacré Coeur, obklopená luxusními vilami a rezidenčními komplexy, nově postavěnými ve vysokém standardu. Nedílnou součástí čtvrti je historická budova bývalého kláštera Sacré Coeur, který je nyní využíván jako místo pro taneční nebo jiné akce, a klášter sv. Gabriela.
Výhodou lokality je výborné situování v blízkosti veškeré občanské vybavenosti, v docházkové vzdálenosti je nákupní centrum Nový Smíchov, kina, široká škála obchodů, restaurací, kaváren a mnoho dalšího. Velmi dobrá dopravní dostupnost MHD, autobus (zastávka Holečkova) a tramvaj (zastávka Bertramka) jsou jen pár kroků od budovy, stanice metra (trasa B) je vzdálena jen 1 zastávku tramvají.

Nájemné činí: 16,50 Euro /m2 plus DPH /měsíčně
Poplatky (včetně elektřiny) činí 150 Kč/m2 za měsíc plus DPH/měsíčně
Parking: 23 místa: 200 Euro plus DPH /stání /měsíčně
Vratná kauce 3 nájmy včetně poplatků.
Doba nájmu nejméně 3 roky
Možnost využití fitness Prisma Institut individuální služba.
Neplatíte provizi RK.

Makléř

Máte zájem o tuto nemovistost?

Tímto, v souladu s nařízením Evropského parlamentu a Rady (EU) 2016/679, v platném znění, prohlašuji, že mi je alespoň 16 let a uděluji tak svůj souhlas se zpracováním zadaných údajů (jméno, telefon, e-mail, ip adresa) společnosti B3 Technology, s.r.o., IČ: 07330600, se sídlem Novostavby 126/23, 435 11 Lom (správce dat), za účelem předání dotazu z tohoto formuláře Vámi vybranému inzerentovi a zpětného kontaktování mé osoby. Osobní údaje bude správce zpracovávat manuálně i automaticky přímo prostřednictvím svých zaměstnanců. Informace předané tímto formulářem budou uloženy v databázi správce maximálně po dobu 10 let. Odvolání souhlasu s uložením a zpracováním poskytnutých dat lze e-mailem na info@origo-reality.cz. V případě podezření na neoprávněné použití Vámi poskytnutých údajů máte právo předat podnět k šetření Úřadu pro ochranu osobních údajů. Více informací
Chystáte se prodat nemovitost?
Pomůžeme Vám!

Přihlášení k odběru

Nenechte si ujít nejnovější nabídky pronájmu kanceláří v Praze 5.