Prodej bytu 2+kk, Soběslav, Jiráskova, 54 m2

Jiráskova, Soběslav II

5 127 550 Kč
/za nemovitost
Hypotéka od 22 917 Kč /měs. Chci hypotéku

Parametry bytu

AdresaJiráskova, Soběslav II
ID00194
StavbaCihlová
Stav objektuNovostavba
Patro1. z 3
Lokalita objektuKlidná část obce
VlastnictvíOsobní
Užitná plocha54 m2
Plocha zahrady65 m2
Třída energetické náročnostiB - Velmi úsporná
Ukazatel energetické náročnosti78 kWh/m2 za rok
Elektřina230V
OdpadVeřejná kanalizace
TelekomunikaceInternet, Kabelová televize
DopravaVlak, Dálnice, Autobus
VodaVodovod
Topné tělesoRadiátory
Zdroj topeníElektrokotel
Sklep
Parkování

Origo partneři v Soběslavi

Popis

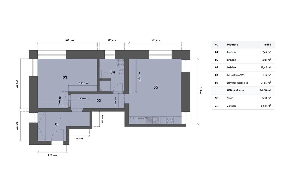
Exkluzivní nabídka prodeje bytové jednotky o užitné ploše 54,49 m², která se nachází v 1. NP ze tří, v cihlovém domě v ulici Jiráskova, č. p. 72, ve městě Soběslav, v Jihočeském kraji.

Bytová jednotka je dispozičně řešena jako 2+kk. Za vstupními dveřmi se nachází prostorná předsíň, na kterou navazuje chodba, ze které je přístupný obývací pokoj s kuchyňským koutem, samostatná ložnice a koupelna se sprchovým koutem a toaletou.

Bytová jednotka je ve stavu před dokončením, jedná se tedy o novostavbu. Topení je zajištěno elektrokotlem. Internet a kabelová televize je samozřejmostí, do domu je zaveden datový kabel.

K jednotce náleží sklep o ploše 5,74 m2, zahrada 65,31 m2 a dvě parkovací stání.

Soběslav je malebné jihočeské město s bohatou historií, které se rozkládá na soutoku řeky Lužnice a Černovického potoka. Jeho půvabné centrum s renesančními a gotickými památkami vytváří jedinečnou atmosféru, jež láká nejen návštěvníky, ale i nové obyvatele. Město nabízí klidné prostředí, kvalitní občanskou vybavenost a výbornou dostupnost do okolních regionů.

Občanská vybavenost je výborná: základní a mateřská škola se nachází 250 m od domu, k dispozici jsou supermarkety Lidl, Tesco nebo Penny. Přímo v ulici má ordinaci praktický lékař, nedaleko se nachází Všeobecná interní ambulance. V okolí je také dostatek sportovních a dětských hřišť, in-line dráha, zimní stadion, fotbalové hřiště, koupaliště, přírodní rezervace Nový rybník apod.

Dopravní dostupnost je velmi dobrá. Podél východního okraje města vede dálnice D3 s dobrou dostupností Prahy. Samotné město stojí na křižovatce silnic II/3 a II/135. Městem vede železniční trať Praha – České Budějovice. Na jihozápadním okraji města je veřejné vnitrostátní letiště.

Více info naleznete na rezidencejiraskova.cz.

Makléř

Máte zájem o tento byt?

Tímto, v souladu s nařízením Evropského parlamentu a Rady (EU) 2016/679, v platném znění, prohlašuji, že mi je alespoň 16 let a uděluji tak svůj souhlas se zpracováním zadaných údajů (jméno, telefon, e-mail, ip adresa) společnosti B3 Technology, s.r.o., IČ: 07330600, se sídlem Novostavby 126/23, 435 11 Lom (správce dat), za účelem předání dotazu z tohoto formuláře Vámi vybranému inzerentovi a zpětného kontaktování mé osoby. Osobní údaje bude správce zpracovávat manuálně i automaticky přímo prostřednictvím svých zaměstnanců. Informace předané tímto formulářem budou uloženy v databázi správce maximálně po dobu 10 let. Odvolání souhlasu s uložením a zpracováním poskytnutých dat lze e-mailem na info@origo-reality.cz. V případě podezření na neoprávněné použití Vámi poskytnutých údajů máte právo předat podnět k šetření Úřadu pro ochranu osobních údajů. Více informací
Chystáte se prodat nemovitost?
Pomůžeme Vám!

Přihlášení k odběru

Nenechte si ujít nejnovější nabídky prodeje bytů 2+kk v Soběslavi.