Prodej bytu 2+kk, Praha - Vinohrady, Londýnská, 45 m2

Londýnská, Praha, Vinohrady

8 000 000 Kč
/za nemovitost
Hypotéka od 35 755 Kč /měs. Chci hypotéku

Parametry bytu

AdresaLondýnská, Praha, Vinohrady
ID00196
StavbaCihlová
Stav objektuVelmi dobrý
Patro6.
Lokalita objektuCentrum obce
VlastnictvíOsobní
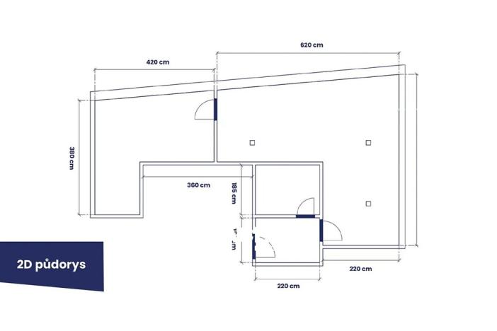
Užitná plocha45 m2
Třída energetické náročnostiG - Mimořádně nehospodárná
Elektřina230V
OdpadVeřejná kanalizace
TelekomunikaceInternet, Kabelová televize
DopravaVlak, Dálnice, MHD, Autobus
VodaVodovod
Topné tělesoPřímotop
Zdroj topeníPřímotop

Origo partneři v Praze 2

Stěhovací služby

Výkup a prodej starého nábytku

Popis

Stylové bydlení na Královských Vinohradech

Objevte kouzlo jedné z nejžádanějších pražských lokalit — královských Vinohrad, kde se snoubí historický půvab s moderním městským životem. V nabídce tu pro vás máme útulný podkrovní byt 2+kk, který nabízí ideální kombinaci praktičnosti a atmosféry, kterou si Vinohrady získaly srdce mnoha Pražanů.

Chytré a útulné bydlení

Za vstupními dveřmi vás přivítá předsíň, ze které je přístupná koupelna s toaletou a obývací pokoj s kuchyňským koutem. Ten nabízí dostatek prostoru pro odpočinek, vaření i stolování. Na obývací pokoj dále navazuje samostatný pokoj, který může sloužit jako ložnice, pracovna nebo pokoj pro hosty. Ten navíc ukrývá praktické řešení v podobě zvýšeného patra na spaní. Postel pod stropem šetří místo a dodává interiéru hravý, loftový charakter.

Celý byt působí kompaktně, ale zároveň vzdušně a útulně – ideální pro jednotlivce nebo pár, kteří ocení chytré využití prostoru.

Technické detaily

Užitná plocha: 45 m2
Podlahy: dřevo a dlažba
Okna: Velux
Vytápění: akumulační kamna s termostaty v každém pokoji
Ohřev vody: bojler
Byt je připraven k okamžitému nastěhování – bez nutnosti dalších investic.

Lokalita, která má styl

Londýnská ulice na pražských Vinohradech je považována za jednu z lukrativních a prestižních lokalit v Praze. Nachází se v těsné blízkosti Náměstí Míru, parku Grébovka a centra města, což z ní činí atraktivní adresu pro rezidenční i komerční nemovitosti.

Lokalita je známá svou historickou architekturou, secesními domy a funkcionalistickými stavbami. V posledních letech zde také probíhá řada developerských projektů a rekonstrukcí, které zvyšují hodnotu nemovitostí.

V okolí se nachází široká síť kaváren, restaurací, butiků, galerií a služeb. V pěší dostupnosti jsou školy, školky, lékařské ordinace, kulturní centra i sportovní zařízení. Blízkost parků Folimanka, Grébovka a Vyšehrad nabízí možnosti pro relaxaci a aktivní odpočinek.

Dopravní dostupnost je vynikající. Tramvajové linky i stanice metra Náměstí Míru a I. P. Pavlova jsou v docházkové vzdálenosti, na Václavské náměstí je to jen pár minut.

Tento byt je ideální volbou pro každého, kdo hledá stylové městské bydlení v jedné z nejatraktivnějších částí Prahy. Stačí se jen nastěhovat a začít si užívat atmosféru Vinohrad naplno.

Shrnutí

Ideální pro jednotlivce, pár nebo investora
Atraktivní pražská adresa
Kompletní občanská vybavenost
Skvělá investiční příležitost

Byt, který spojuje styl, pohodlí a výjimečnou lokalitu. Domluvte si prohlídku ještě dnes!

Majitel si vyhrazuje právo výběru zájemce.

Makléř

Máte zájem o tento byt?

Tímto, v souladu s nařízením Evropského parlamentu a Rady (EU) 2016/679, v platném znění, prohlašuji, že mi je alespoň 16 let a uděluji tak svůj souhlas se zpracováním zadaných údajů (jméno, telefon, e-mail, ip adresa) společnosti B3 Technology, s.r.o., IČ: 07330600, se sídlem Novostavby 126/23, 435 11 Lom (správce dat), za účelem předání dotazu z tohoto formuláře Vámi vybranému inzerentovi a zpětného kontaktování mé osoby. Osobní údaje bude správce zpracovávat manuálně i automaticky přímo prostřednictvím svých zaměstnanců. Informace předané tímto formulářem budou uloženy v databázi správce maximálně po dobu 10 let. Odvolání souhlasu s uložením a zpracováním poskytnutých dat lze e-mailem na info@origo-reality.cz. V případě podezření na neoprávněné použití Vámi poskytnutých údajů máte právo předat podnět k šetření Úřadu pro ochranu osobních údajů. Více informací
Chystáte se prodat nemovitost?
Pomůžeme Vám!

Přihlášení k odběru

Nenechte si ujít nejnovější nabídky prodeje bytů 2+kk v Praze 2.