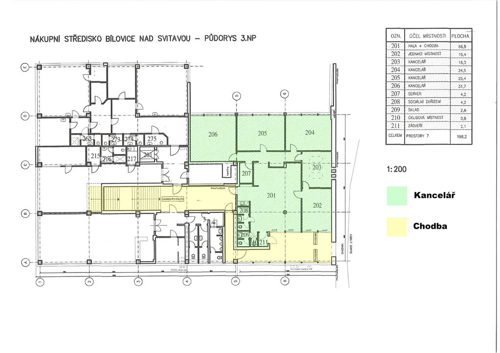
Pronájem kanceláře, Bílovice nad Svitavou, Žižkova, 198 m2
Žižkova, Bílovice nad Svitavou
/za měsíc
+ elektřina, plyn a služby
Parametry nemovitosti
| Adresa | Žižkova, Bílovice nad Svitavou | 
|---|---|
| Stavba | Cihlová | 
| Stav objektu | Velmi dobrý | 
| Patro | 3. | 
| Vybaveno | Ne | 
| Lokalita objektu | Centrum obce | 
| Užitná plocha | 198 m2 | 
| Doprava | Vlak, Silnice, Autobus | 
| Parkování | 
Popis
Dobrý den, 
rádi bychom Vám představili kancelář k pronájmu v centru Bílovic nad Svitavou. Tento cihlový objekt se nachází ve velmi dobrém stavu a nabízí užitnou plochu o velikosti 198 m², což z něj činí ideální volbu pro podnikatele hledající prostorné a reprezentativní místo pro své podnikání.
Kancelář je situována ve třetím patře domu, který je součástí zástavby, zdravotnického zařízení, obchodů a volnočasových kroužků.  Výhodou této nabídky je parkovací místo, které je možné si pronajmout navíc.
Umístění kanceláře v srdci Bílovic nad Svitavou zajišťuje vynikající dostupnost dopravních spojení, mezi které patří vlak, silnice a autobus. Základní cena nájmu 23500 Kč. Nezahrnuje elektřinu, plyn a služby. Kancelář bude k dispozici od 1. listopadu 2025.
Prohlídky jsou možné po předchozí domluvě. Pro více informací o této nemovitosti nebo sjednání prohlídky nás prosím kontaktujte nebo vyplňte níže uvedený formulář, rádi Vám pomůžeme.
Přihlášení k odběru
Nenechte si ujít nejnovější nabídky pronájmu kanceláří v Bílovicích nad Svitavou.
 
                                                                                     
                                                                                     
                                                                                     
                                                                                     
                                                                                     
                                                                                     
                                                                                     
                                                                                     
                                                                                     
                                                                                     
                                                                                     
                                                                                     
                                                                                     
                                                                                     
                                                                                     
                                                                                     
                                                                                     
                         
         
         
         
         
         
        