Prodej bytu 3+1, České Budějovice, Písecká, 70 m2

Písecká, České Budějovice 2

4 200 000 Kč
/za nemovitost
Hypotéka od 18 771 Kč /měs. Chci hypotéku

Parametry bytu

AdresaPísecká, České Budějovice 2
IDJ11251
StavbaPanelová
Stav objektuPřed rekonstrukcí
Patro5. z 8
VybavenoAno
Lokalita objektuCentrum obce
VlastnictvíDružstevní
Užitná plocha70 m2
Podlahová plocha76 m2
Třída energetické náročnostiB - Velmi úsporná
Ukazatel energetické náročnosti68 kWh/m2 za rok
Elektřina230V
OdpadVeřejná kanalizace
TopeníÚstřední dálkové, Jiné
VodaVodovod
Topné tělesoRadiátory
Zdroj topeníÚstřední dálkové
Sklep
Lodžie
Výtah
Bezbarierový přístup
Převod do OV

Origo partneři v Českých Budějovicích

Popis

Družstevní byt 3+1 s lodžií v Písecké ulici v Českých Budějovicích nabízí jedinečnou příležitost si vytvořit domov podle vlastních představ.

Ve výhradním zastoupení majitele nabízíme ke koupi prostorný družstevní byt 3+1 s lodžií o celkové výměře 76 m² v klidné a vyhledávané části Českých Budějovic – ul. Písecká, na sídlišti Vltava.

Byt se nachází v 5. nadzemním podlaží panelového domu s výtahem a je v původním, velmi zachovalém stavu – ideální pro rekonstrukci dle vlastních představ a potřeb nové generace.

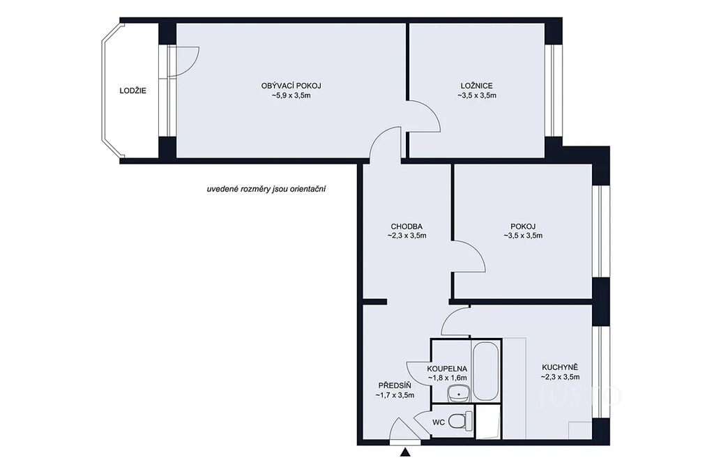
Byt má vnitřní podlahovou plochu 70 m², která zahrnuje tři pokoje (20 m², 12 m² a 12 m²), kuchyni (8 m²), prostornou předsíň (15 m²), koupelnu (2 m²) a samostatné WC (1 m²). K bytu dále náleží lodžie o velikosti 4 m² a sklep č. 31–32 o výměře 2 m², což činí celkovou plochu 76 m².

Dispozice bytu:
- Prostorná chodba s dostatkem místa pro úložné prostory
- Kuchyně s jídelním koutem a plynovým sporákem
- Obývací pokoj se vstupem na jižně orientovanou lodžii
- Dvě neprůchozí ložnice orientované na sever
- Koupelna a WC jsou samostatné

K bytu náleží sklepní kóje, dům má výtah a udržované společné prostory. Z lodžie je příjemný výhled do zeleně.

Bytový dům:
- Panelový dům je v dobrém technickém stavu, po kompletní revitalizaci – zateplená fasáda, plastová okna (2008), nové vnitřní rozvody, renovované lodžie i společné prostory.
- Energetická náročnost budovy: třída B – velmi úsporná
- Klidný dům s čistými a udržovanými společnými prostory

Financování a náklady:
Byt je v družstevním vlastnictví (nelze financovat hypotékou se zástavou na tuto jednotku). Revitalizace byla hrazena částečně úvěrem – zůstatek vypočtený na tuto jednotku činil k 1. 7. 2025 částku 51 222 Kč, úvěr bud doplacen do 31. 12. 2027.

Měsíční náklady: 5 490 Kč (nájemné + zálohy na služby)

Lokalita:
- Ulice Písecká patří mezi nejpříjemnější části sídliště Vltava – spojuje výbornou občanskou vybavenost s klidem a zelení.
- Obchody v bezprostřední blízkosti (Trefa za domem, Lidl pár minut chůze, Globus v dochozí vzdálenosti)
- Mateřská školka, základní škola, dětská hřiště, ale také park s lavičkami
- Zastávky MHD doslova pár kroků od domu
- V okolí je mnoho parkovacích míst
- Cyklostezka a stezka podél řeky Vltavy, stejně tak ČEZ Aréna

Zaujala Vás toto nabídka a máte zájem o bližší informace, nebo rovnou o prohlídku? V obou případech mě prosím kontaktujte prostřednictvím formuláře v dolní části inzerátu. Do 30 minut obdržíte odpověď s veškerými informacemi na e-mail, který uvedete. Pokud Vám e-mail nepřišel, podívejte se do nevyžádané pošty.

Makléř

Máte zájem o tento byt?

Tímto, v souladu s nařízením Evropského parlamentu a Rady (EU) 2016/679, v platném znění, prohlašuji, že mi je alespoň 16 let a uděluji tak svůj souhlas se zpracováním zadaných údajů (jméno, telefon, e-mail, ip adresa) společnosti B3 Technology, s.r.o., IČ: 07330600, se sídlem Novostavby 126/23, 435 11 Lom (správce dat), za účelem předání dotazu z tohoto formuláře Vámi vybranému inzerentovi a zpětného kontaktování mé osoby. Osobní údaje bude správce zpracovávat manuálně i automaticky přímo prostřednictvím svých zaměstnanců. Informace předané tímto formulářem budou uloženy v databázi správce maximálně po dobu 10 let. Odvolání souhlasu s uložením a zpracováním poskytnutých dat lze e-mailem na info@origo-reality.cz. V případě podezření na neoprávněné použití Vámi poskytnutých údajů máte právo předat podnět k šetření Úřadu pro ochranu osobních údajů. Více informací
Chystáte se prodat nemovitost?
Pomůžeme Vám!