Prodej bytu 2+1, Brno, Hybešova, 48 m2 (ID: 1863748)

Hybešova, Staré Brno

6 690 000 Kč
/za nemovitost
Hypotéka od 29 900 Kč /měs. Chci hypotéku

Parametry bytu

Náklady na bydlení3.340,- Kč/měsíc
AdresaHybešova, Staré Brno
StavbaCihlová
Stav objektuPo rekonstrukci
Patro3.
VlastnictvíOsobní
Užitná plocha48 m2
Topné tělesoRadiátory
Zdroj topeníPlynový kondenzační kotel
Zdroj teplé vodyPlynový kondenzační kotel
Balkon
Sklep
Parkování

Origo partneři v Brně

Popis

Nabízíme k prodeji cihlový byt o dispozici 2+1 v osobním vlastnictví, situovaný v atraktivní části města Brna. Tento byt se nachází ve třetím patře kompletně zrekonstruovaného objektu a disponuje užitnou plochou 48 m². Skvěle řešený jednopodlažní byt je ideální volbou pro jednotlivce či páry, kteří hledají komfortní bydlení v klidném prostředí s veškerou občanskou vybaveností na dosah ruky.
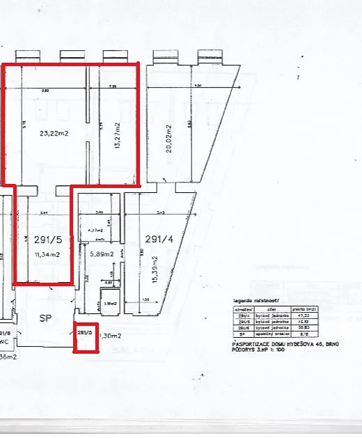
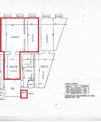
Obývací pokoj o ploše 23,22 m2, součástí kterého je šatna.
Ložnice o ploše 10 m2 s vestavěnou manželskou postelí a skříněmi pod ní na míru. Koupelna 3,5 m2 s vanou, toaletou a umyvadlem.
Kuchyně 11,34 m2, komora o ploše 1,3 m2 na patře.

K dispozici je také sklep o ploše 40 m2, který je společný pro všechny majitele domu, je volný s možností jej využívat. Parkování je zajištěno s jedním místem k parkování ve dvoře, což je velkou výhodou v této lokalitě. V mezipatře se nachází prostorný balkon o velikosti 3 m², který je ideální pro relaxaci a posezení na čerstvém vzduchu nebo sušení prádla.

Součástí vybavení bytu je klimatizace, která zajišťuje příjemné prostředí i v horkých letních měsících. Výhodou jsou velmi nízké náklady na bydlení, které činí 3.340,- Kč měsíčně. Podrobné náklady Vám sdělí makléř, který je kontaktní osobou u tohoto inzerátu.

Pokud Vás byt zaujal, neváhejte nám napsat nebo zavolat a rádi Vám vše ukážeme osobně.

Makléř

Máte zájem o tento byt?

Tímto, v souladu s nařízením Evropského parlamentu a Rady (EU) 2016/679, v platném znění, prohlašuji, že mi je alespoň 16 let a uděluji tak svůj souhlas se zpracováním zadaných údajů (jméno, telefon, e-mail, ip adresa) společnosti B3 Technology, s.r.o., IČ: 07330600, se sídlem Novostavby 126/23, 435 11 Lom (správce dat), za účelem předání dotazu z tohoto formuláře Vámi vybranému inzerentovi a zpětného kontaktování mé osoby. Osobní údaje bude správce zpracovávat manuálně i automaticky přímo prostřednictvím svých zaměstnanců. Informace předané tímto formulářem budou uloženy v databázi správce maximálně po dobu 10 let. Odvolání souhlasu s uložením a zpracováním poskytnutých dat lze e-mailem na info@origo-reality.cz. V případě podezření na neoprávněné použití Vámi poskytnutých údajů máte právo předat podnět k šetření Úřadu pro ochranu osobních údajů. Více informací
Chystáte se prodat nemovitost?
Pomůžeme Vám!

Přihlášení k odběru

Nenechte si ujít nejnovější nabídky prodeje bytů 2+1 v Brně.