Pronájem kanceláře, Hradec Králové, Hořická, 91 m2 (ID: 1863443)
Hořická, Hradec Králové, Pražské Předměstí
/za měsíc
Parametry nemovitosti
| Adresa | Hořická, Hradec Králové, Pražské Předměstí | 
|---|---|
| Stavba | Smíšená | 
| Stav objektu | Dobrý | 
| Patro | 3. | 
| Užitná plocha | 91 m2 | 
| Parkování | 
Popis
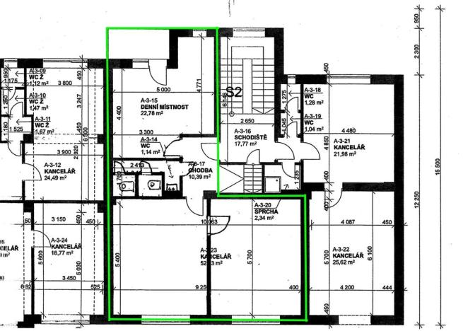
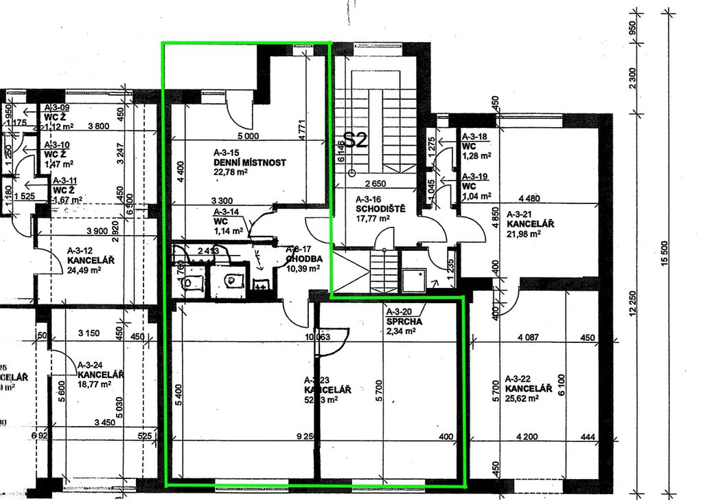
Nabízíme k pronájmu administrativní prostory o celkové výměře 91 m2 po částečné rekonstrukci ve 3.NP administrativní budovy v Hradci Králové, ulice Hořická.
Jedná se o celek tří kancelářských místností o výměrách 23m2, 25m2 a 26m2, chodby s vestavnou skříní o výměře 10m2, toalet o výměře 6m2, vlastní kuchyňky, která je součástí jedné z kanceláří a balkónu. Největší z kanceláří je vybavena klimatizací. Po celém prostoru je rozveden optický kabel pro maximálně rychlé internetové připojení. 
Příjemným benefitem je 1 parkovací místo pro nájemníky ve vnitrobloku v ceně nájmu s možností rozšíření o další parkovací stání dle domluvy. 
Strategická pozice na Pražském Předměstí Vám nabídne snadnou dostupnost automobilem, městskou hromadnou dopravou, vlakem i pěšky. V okolí do 400m najdete vše od Terminálu HD, vlakového nádrží, obchodních center Aupark a Atrium, až po několik restaurací.
V kancelářích momentálně probíhají dokončovací práce po rekonstrukci, a proto je k podkladům přiložena jedna fotografie, která je umělou inteligencí očištěná o pracovní nepořádek. 
Cena nájemného je uvedena bez DPH a bez měsíčních nákladů na energie a služby. Vratná kauce činní dva měsíční nájmy. 
Podrobnější informace Vám rádi sdělíme na osobní prohlídce.
Přihlášení k odběru
Nenechte si ujít nejnovější nabídky pronájmu kanceláří v Hradci Králové.
 
                                                                                     
                                                                                     
                                                                                     
                                                                                     
                                                                                     
                                                                                     
                                                                                     
                                                                                     
                                                                                     
                                                             
                         
         
         
         
         
        