Prodej pozemku pro bydlení, Brno, Vážného, 411 m2 (ID: 1863108)

Vážného, Brno, Řečkovice

29 200 Kč
/za metr čtvereční
Hypotéka od 131 Kč /měs. Chci hypotéku

Parametry pozemku

AdresaVážného, Brno, Řečkovice
Lokalita objektuCentrum obce
Plocha pozemku411 m2
PlynPlynovod
OdpadVeřejná kanalizace
KomunikaceAsfaltová
VodaVodovod

Origo partneři v Brně

Popis

Ve výhradním zastoupení majitele nabízím jedinečnou příležitost koupi stavebního pozemku Brno Řečkovice s projektem, včetně stavebního povolení a vyjádření všech dotčených orgánů (přípojky, vjezd na pozemek a další náležitosti).
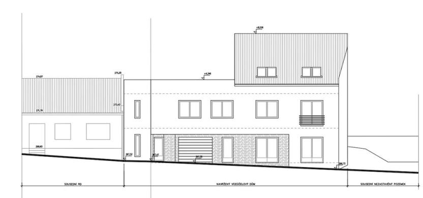
Jedná se o je pozemek na rohu ulice Vážného a Veselá. Je zde počítáno s výstavbou víceúčelového, nebo bytového domu . V přízemí domu je počítáno s parkovacími místy + prostorem na bydlení nebo komerci (cca 55m2), v 1 NP čtyři bytové jednotky o velikosti 1+kk (od 25m2 do 40m2), v 2 NP je možnost velkého bytu + terasa, nebo dva menší byty s terasou. Projekt a stavební povolení je k nahlédnutí po domluvě.
V případě zájmu kontaktuje makléře.

Makléř

Máte zájem o tento pozemek?

Tímto, v souladu s nařízením Evropského parlamentu a Rady (EU) 2016/679, v platném znění, prohlašuji, že mi je alespoň 16 let a uděluji tak svůj souhlas se zpracováním zadaných údajů (jméno, telefon, e-mail, ip adresa) společnosti B3 Technology, s.r.o., IČ: 07330600, se sídlem Novostavby 126/23, 435 11 Lom (správce dat), za účelem předání dotazu z tohoto formuláře Vámi vybranému inzerentovi a zpětného kontaktování mé osoby. Osobní údaje bude správce zpracovávat manuálně i automaticky přímo prostřednictvím svých zaměstnanců. Informace předané tímto formulářem budou uloženy v databázi správce maximálně po dobu 10 let. Odvolání souhlasu s uložením a zpracováním poskytnutých dat lze e-mailem na info@origo-reality.cz. V případě podezření na neoprávněné použití Vámi poskytnutých údajů máte právo předat podnět k šetření Úřadu pro ochranu osobních údajů. Více informací
Chystáte se prodat nemovitost?
Pomůžeme Vám!

Přihlášení k odběru

Nenechte si ujít nejnovější nabídky prodeje pozemků pro bydlení v Brně.