Prodej rodinného domu, Praha - Horní Počernice, Krotitelů, 147 m2 (ID: 1862903)

Krotitelů, Praha, Horní Počernice

18 738 850 Kč
/za nemovitost
Hypotéka od 83 751 Kč /měs. Chci hypotéku

Parametry domu

AdresaKrotitelů, Praha, Horní Počernice
StavbaCihlová
Stav objektuVe výstavbě
Druh objektuV bloku
Lokalita objektuKlidná část obce
Užitná plocha147 m2
Plocha pozemku603 m2
Třída energetické náročnostiA - Mimořádně úsporná
Elektřina230V
OdpadVeřejná kanalizace
KomunikaceDlážděná, Asfaltová
TelekomunikaceInternet
DopravaVlak, Dálnice, Silnice, MHD
VodaVodovod
Topné tělesoPodlahové vytápění
Zdroj teplé vodyTepelné čerpadlo
Garáž
Parkování

Origo partneři v Praze 9

Stěhovací služby

Výkup a prodej starého nábytku

Popis

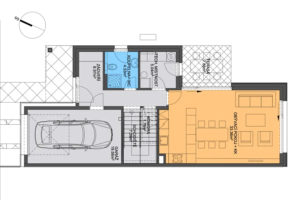
Moderní rodinný dům v projektu Domy Bílý vrch nabízí chytrou dispozici 5+kk, garáž a zahradu o velikosti 603 m². Díky nadstandardnímu vybavení a moderním technologiím spojuje komfort rodinného života s nízkými provozními náklady.

V přízemí se nachází velkorysý obývací pokoj s kuchyní (33,5 m²) a vstupem na terasu (17,2 m²), technická místnost, koupelna se sprchou a WC a garáž pro jeden vůz. Parkování je zajištěno i před domem. V patře je hlavní ložnice (16,8 m²), dvě dětské ložnice (10,8 a 10,7 m²), pracovna (10 m²) a dvě koupelny – jedna se sprchovým koutem a WC, druhá s vanou a WC.

Dům je vybaven technologiemi, které zajišťují zdravé a úsporné bydlení: tepelné čerpadlo (v zimě topí, v létě chladí), rekuperace vzduchu, inteligentní řízení domácnosti, příprava na předokenní stínění a dřevěná okna s trojskly. Orientační měsíční náklady čtyřčlenné rodiny činí přibližně 5 700 Kč včetně energií, pojištění, vody, odpadu i internetu.

Výhody domu č. 112:

- větší pozemek (603 m²) a krajní poloha – máte pouze jednoho souseda,

- možnost dokončení do 3 měsíců od podpisu smlouvy o smlouvě budoucí,

- sousední dům č. 113 je již prodaný – svého budoucího souseda tedy znáte,

Obdobný vzorový dům č. 102 bude k dispozici pro prohlídky již od poloviny září 2025.

Horní Počernice patří mezi vyhledávané pražské lokality – nabízí klidné bydlení, kompletní občanskou vybavenost i výborné spojení do centra a na dálnice.

Za projektem Domy Bílý vrch stojí Jan Konhefr – člověk, který domy nejen staví, ale i prodává. Díky tomu jednáte přímo s ním, bez zdlouhavého schvalování, a můžete se spolehnout na férový přístup i možnost domluvit se na individuálních úpravách. Navíc zůstává na místě i po dokončení stavby, takže máte jistotu podpory i do budoucna.

Makléř

Máte zájem o tento dům?

Tímto, v souladu s nařízením Evropského parlamentu a Rady (EU) 2016/679, v platném znění, prohlašuji, že mi je alespoň 16 let a uděluji tak svůj souhlas se zpracováním zadaných údajů (jméno, telefon, e-mail, ip adresa) společnosti B3 Technology, s.r.o., IČ: 07330600, se sídlem Novostavby 126/23, 435 11 Lom (správce dat), za účelem předání dotazu z tohoto formuláře Vámi vybranému inzerentovi a zpětného kontaktování mé osoby. Osobní údaje bude správce zpracovávat manuálně i automaticky přímo prostřednictvím svých zaměstnanců. Informace předané tímto formulářem budou uloženy v databázi správce maximálně po dobu 10 let. Odvolání souhlasu s uložením a zpracováním poskytnutých dat lze e-mailem na info@origo-reality.cz. V případě podezření na neoprávněné použití Vámi poskytnutých údajů máte právo předat podnět k šetření Úřadu pro ochranu osobních údajů. Více informací
Chystáte se prodat nemovitost?
Pomůžeme Vám!

Přihlášení k odběru

Nenechte si ujít nejnovější nabídky prodeje rodinných domů v Praze 9.