Prodej rodinného domu, Mnichov - Rájov, 97 m2 (ID: 1862093)
Mnichov, Rájov
/za nemovitost
Parametry domu
| Adresa | Mnichov, Rájov | 
|---|---|
| ID | 653499 | 
| Stavba | Cihlová | 
| Stav objektu | Velmi dobrý | 
| Typ objektu | Přízemní | 
| Druh objektu | Samostatný | 
| Užitná plocha | 97 m2 | 
| Zastavěná plocha | 120 m2 | 
| Podlahová plocha | 97 m2 | 
| Plocha pozemku | 816 m2 | 
| Třída energetické náročnosti | B - Velmi úsporná | 
| Terasa | |
| Parkování | 
Popis
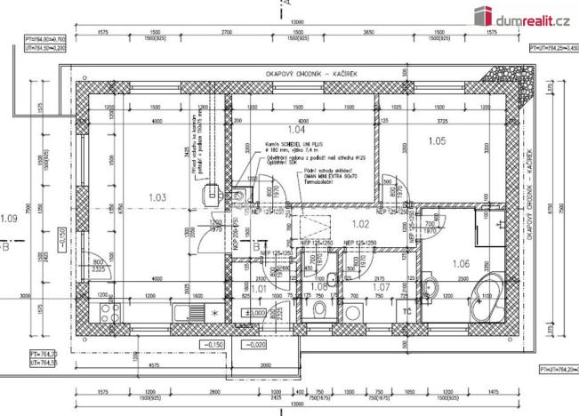
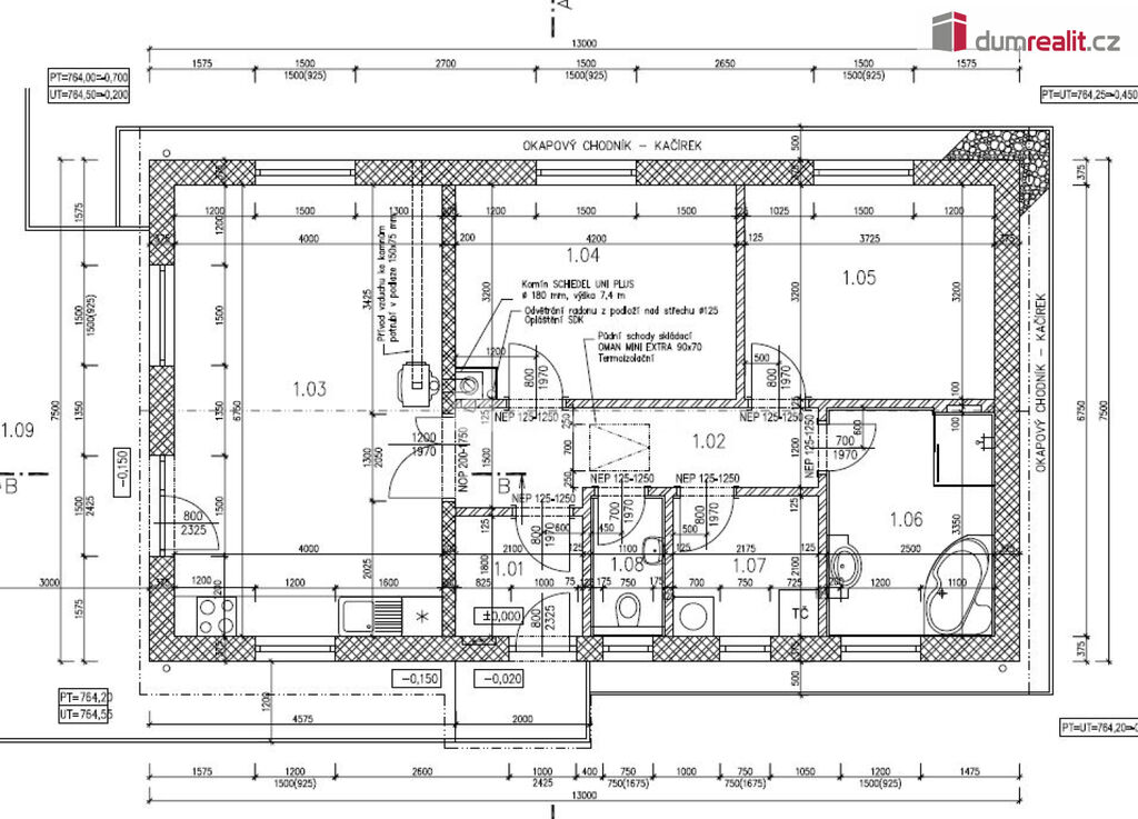
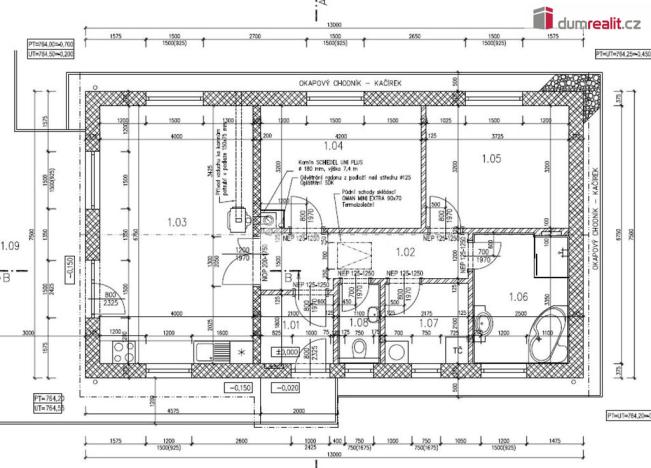
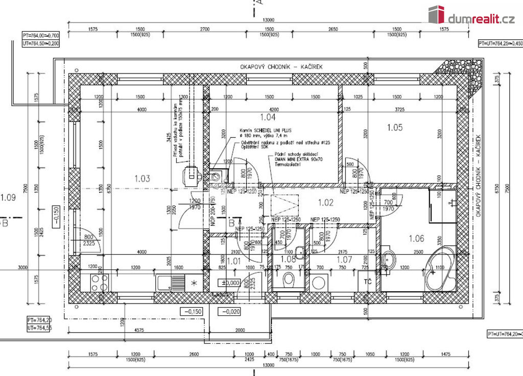
Dumrealit.cz Vám zprostředkuje koupi novostavby rodinného domu 3+kk v Rájově u Mariánských Lázních. Dům se nachází na rovinatém pozemku o rozloze 816 m² u silnice s bezproblémovým přístupem. Dům o rozloze 97 m² nabízí dispozici 3+kk, je zde prostorný obývací pokoj spojený s kuchyňským koutem a francouzským oknem, z kterého je výstup na budoucí terasu, dále jsou zde dva samostatné pokoje, technická místnost, koupelna a samostatná toaleta. Dům z ytongových tvárnic má hotový krov s plechovou střechou ve tvaru tašek. V domě je připravena a rozvedena elektroinstalace, vodoinstalace, plastová okna, na podlahách je kombinace dlažby a vinylu. V domě jsou již hotové omítky, v prostorné koupelně s oknem je k dispozici vana i sprcha. Vytápění zajišťuje již dodané tepelné čerpadlo, v celém domě je podlahové vytápění, ohřev teplé vody zajišťuje bojler. Zdrojem vody je studna, dům je napojen na kanalizaci. Dům se prodává bez kuchyňské linky (je zde příprava). Součástí ceny není oplocení. Dokončená je venkovní bledě modrá omítka včetně zateplení. Obec Rájov se nachází v bezprostřední blízkosti Mariánských Lázní, nedaleko obce Zádub-Závišín, kde je vyhledávané golfové hřiště. Za domem je krásná cyklotrasa vedoucí přes Nimrod, Prameny, Polom, Kladskou a dále do Kynžvartu. V Mariánských Lázních je veškerá občanská vybavenost včetně úřadů, bank, restaurací, obchodů, jsou zde supermarkety LIDL, PENNY, TESCO, Kaufland, BILLA, DM, Planeo elektro, JYSK, super ZOO, TAKKO, KIK, Deichmann. Mariánské Lázně jsou úžasné místo pro život i odpočinek, jsou prošpikované sítí turistických, cyklistických a běžkařských tras. Sportovcům je k dispozici plavecký bazén, sportovní areál Viktorka, plochá dráha, zimní stadion pro bruslaře, lyžařská sjezdovka s lanovkou, jezdecká škola, tenisové kurty, v létě je v provozu koupaliště Lido s písečnou pláží. Úžasné městské parky nabízí krásná zákoutí: Kolonádu se zpívající fontánou a přilehlý labutí park, Ferdinandův pramen, Lesní pramen, Rudolfův pramen, Medvědí pramen, Geologický park, obůrku Hvozd s daňky a jeleny. Mariánské Lázně se roku 2021 dostaly na seznam světového kulturního dědictví UNESCO, skýtají klid lázeňského města se zdravou vodou a čistým ovzduším. Mariánské Lázně se nacházejí v blízkosti německých hranic, tedy je vhodné pro ty, kteří tam hledají pracovní uplatnění. Cena zahrnuje provizi RK a veškerý právní servis. V případě potřeby Vám rádi doporučíme naše prověřené finanční specialisty. Ev. číslo: 652885.
Přihlášení k odběru
Nenechte si ujít nejnovější nabídky prodeje rodinných domů v Mnichově (okr. Cheb).
 
                                                                                     
                                                                                     
                                                                                     
                                                                                     
                                                                                     
                                                                                     
                                                                                     
                                                                                     
                                                                                     
                                                                                     
                                                                                     
                                                                                     
                                                                                     
                                                                                     
                                                                                     
                                                                                     
                                                                                     
                                                                                     
                                                                                     
                                                                                     
                                                                                     
                                                                                     
                                                                                     
                                                                                     
                                                                                     
                                                                                     
                                                                                     
                                                                                     
                                                                                     
                                                                                     
                         
         
         
         
         
         
        