Pronájem kanceláře, Praha - Smíchov, Bozděchova, 103 m2

Bozděchova, Praha 5, Smíchov

280 Kč
/za metr čtvereční / měsíc
, služby vč. energií cca 220 Kč/m2
Získejte výhodnou HYPOTÉKU Chci hypotéku

Parametry nemovitosti

AdresaBozděchova, Praha 5, Smíchov
ID0946
StavbaCihlová
Stav objektuPo rekonstrukci
Typ objektuPatrový
Užitná plocha103 m2
DopravaMHD, Autobus
Bezbarierový přístup

Origo partneři v Praze 5

Stěhovací služby

Výkup a prodej starého nábytku

Popis

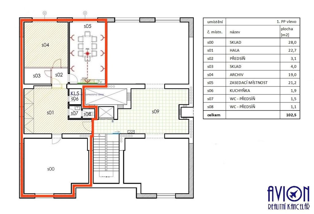
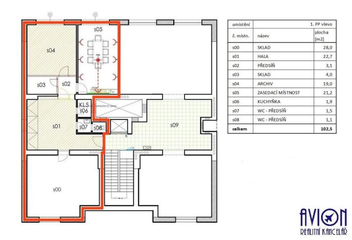
Kancelářské prostory ve sníženém přízemí administrativní budovy v Praze 5 - Smíchově, přímo u metra Anděl, ul. Bozděchova. Celková plocha 103 m2 se skládá ze čtyř hlavních místností. Z centrální haly 23 m2 se vstupuje do třech místností o rozlohách 28 m2, 19 m2 a zasedací místnosti 21 m2. V prostorách se dále nachází malý sklad (komora) 4 m2, kuchyňka a toaleta. Celé prostory jsou pod společným uzamčením s přístupem na magnetickou kartu a jsou klimatizované.

Možné využití pro kancelářský provoz, ale např. i jako sklad, internetový obchod atd.

Administrativní kancelářská budova disponuje recepcí a čtyřmi společnými jednacími místnostmi s možností rezervace, jejichž využívání je již zahrnuto v ceně nájmu. Objekt má 24/7 ostrahu.

Vynikající dopravní dostupnost přímo na dopravním uzlu na Andělu.
K dispozici ihned.

Energetickou třídu G uvádíme z formálních důvodů, po obdržení průkazu energetické náročnosti budovy bude uvedena skutečná hodnota.

Makléř

Máte zájem o tuto nemovistost?

Tímto, v souladu s nařízením Evropského parlamentu a Rady (EU) 2016/679, v platném znění, prohlašuji, že mi je alespoň 16 let a uděluji tak svůj souhlas se zpracováním zadaných údajů (jméno, telefon, e-mail, ip adresa) společnosti B3 Technology, s.r.o., IČ: 07330600, se sídlem Novostavby 126/23, 435 11 Lom (správce dat), za účelem předání dotazu z tohoto formuláře Vámi vybranému inzerentovi a zpětného kontaktování mé osoby. Osobní údaje bude správce zpracovávat manuálně i automaticky přímo prostřednictvím svých zaměstnanců. Informace předané tímto formulářem budou uloženy v databázi správce maximálně po dobu 10 let. Odvolání souhlasu s uložením a zpracováním poskytnutých dat lze e-mailem na info@origo-reality.cz. V případě podezření na neoprávněné použití Vámi poskytnutých údajů máte právo předat podnět k šetření Úřadu pro ochranu osobních údajů. Více informací
Chystáte se prodat nemovitost?
Pomůžeme Vám!