Prodej bytu 3+1, Praha, Senovážné náměstí, 95 m2

Senovážné náměstí, Praha 1

Cena na vyžádání
/za nemovitost
Cena na dotaz
Získejte výhodnou HYPOTÉKU Chci hypotéku

Parametry bytu

AdresaSenovážné náměstí, Praha 1
ID969188
StavbaCihlová
Stav objektuVelmi dobrý
Patro6. z 13
VybavenoČástečně
VlastnictvíOsobní
Užitná plocha95 m2
Podlahová plocha91 m2
Třída energetické náročnostiG - Mimořádně nehospodárná
Elektřina230V
PlynPlynovod
VodaVodovod
Sklep
Výtah
Parkování

Origo partneři v Praze 1

Stěhovací služby

Výkup a prodej starého nábytku

Popis

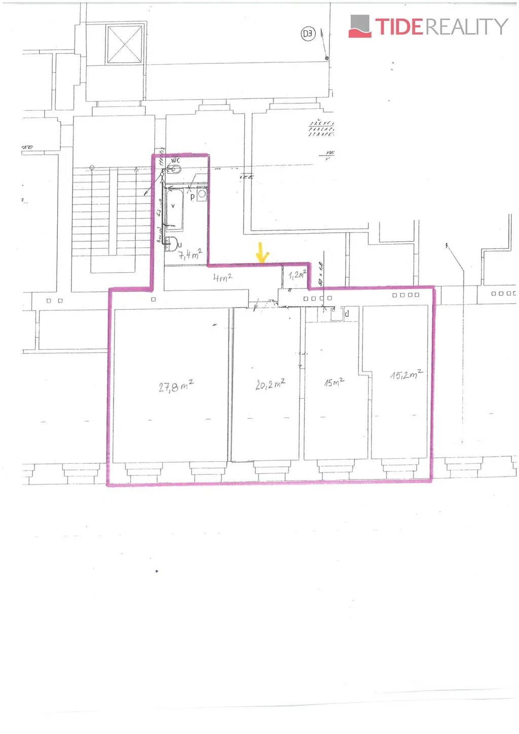
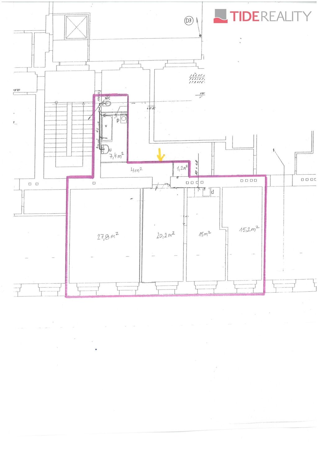
Jedinečná investiční příležitost! V exkluzivním zastoupení majitele nabízíme ke koupi velmi prostorný, světlý a hlavně klidný byt, který se nachází v naprostém centru Prahy 1, v 6. nadzemním podlaží, tj. v posledním obývaném patře nádherně zrekonstruovaného secesního domu na Senovážném náměstí, přímo naproti Jindřišské věži. Tento byt s úžasným potenciálem se rozkládá na celkové ploše 91 m2 a nabízí velkou variabilitu budoucího stavu. Dělící mezipokojové zdi nejsou nosné, některé ani vyzdívané, rozložení pokojů a nová dispozice může být změněna z 3+1 dle individuálních požadavků nového vlastníka. Všechny 4 místnosti (15m2, 15m2, 20m2, 28m2) mají výšku stropu cca 4m, slunnou jižní orientaci a všechny nabízí jedinečný a ničím nezastíněný výhled na Jindřišskou věž. V bytě je vytápění zajišťováno tepelným čerpadlem vzduchvzduch se 4mi splitovými jednotkami v každé obytné místnosti, ohřev TV prostřednictvím karmy, plyn přiveden i do kuch.linky. Původní parketové podlahy ve všech místnostech, dř. špaletová okna.
Přestože se byt nachází přímo v historickém centru je od ruchu velkoměsta naprosto izolovaný. Tato lokalita disponuje veškerou občanskou vybaveností v bezprostředním okolí, vždy v pohodlné docházkové vzdálenosti. V sousedství jsou tramvajové zastávky, pár minut chůze pak Václavské náměstí se stanicemi metra všech linek i Hlavní a Masarykovo nádraží. Nákupní zóny (Náměstí Republiky, Na Příkopě, Palladium, Slovanský dům) v sousedství.
Dům nemusí prokazovat PENB, tř. "G" neodpovídá skutečnému stavu.
Volný ihned!

Makléř

Máte zájem o tento byt?

Tímto, v souladu s nařízením Evropského parlamentu a Rady (EU) 2016/679, v platném znění, prohlašuji, že mi je alespoň 16 let a uděluji tak svůj souhlas se zpracováním zadaných údajů (jméno, telefon, e-mail, ip adresa) společnosti B3 Technology, s.r.o., IČ: 07330600, se sídlem Novostavby 126/23, 435 11 Lom (správce dat), za účelem předání dotazu z tohoto formuláře Vámi vybranému inzerentovi a zpětného kontaktování mé osoby. Osobní údaje bude správce zpracovávat manuálně i automaticky přímo prostřednictvím svých zaměstnanců. Informace předané tímto formulářem budou uloženy v databázi správce maximálně po dobu 10 let. Odvolání souhlasu s uložením a zpracováním poskytnutých dat lze e-mailem na info@origo-reality.cz. V případě podezření na neoprávněné použití Vámi poskytnutých údajů máte právo předat podnět k šetření Úřadu pro ochranu osobních údajů. Více informací
Chystáte se prodat nemovitost?
Pomůžeme Vám!

Přihlášení k odběru

Nenechte si ujít nejnovější nabídky prodeje bytů 3+1 v Praze 1.