Pronájem bytu 2+kk, Praha - Záběhlice, Hlavní, 73 m2

Hlavní, Praha 4

27 000 Kč
/za měsíc
+ poplatky za služby 4.700,- + převod elektřiny a plynu na nájemce
Získejte výhodnou HYPOTÉKU Chci hypotéku

Parametry bytu

AdresaHlavní, Praha 4
ID257-NP01358
StavbaCihlová
Stav objektuVelmi dobrý
Patro1. z 10
VybavenoAno
Lokalita objektuKlidná část obce
VlastnictvíOsobní
Užitná plocha73 m2
Podlahová plocha77 m2
Třída energetické náročnostiE - Nehospodárná
Ukazatel energetické náročnosti139 kWh/m2 za rok
PlynPlynovod
OdpadVeřejná kanalizace
VodaVodovod
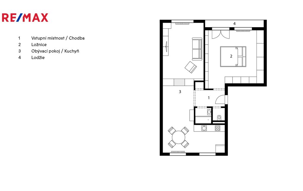
Lodžie
Výtah

Origo partneři v Praze 4

Stěhovací služby

Výkup a prodej starého nábytku

Popis

Láká vás bydlení v netradičním otevřeném prostoru, kde se snoubí design, funkčnost a pohodlí?
Nabízíme k pronájmu jedinečný byt 2+kk (původně 4+1), o podlahové ploše cca 73 m2 + lodžie 4 m2 , v 1. nadzemním podlaží bytového domu v pražských Záběhlicích, který prošel promyšlenou rekonstrukcí a nabízí originální atmosféru industriálního stylu. Úpravou dispozice vznikl vzdušný, otevřený prostor s podlahovou plochou cca 41 m², propojující kuchyň, jídelnu a obývací část. Jednotlivé části jsou pouze opticky rozděleny a navazují na předsíň. Kuchyňská linka je plně vybavena: plynová varná deska, elektrická trouba, myčka, lednice s mrazákem a pračka se sušičkou. Z otevřené předsíně je vstup do koupelny se sprchovým koutem a samostatné toalety. Ložnice o velikosti cca 23 m² nabízí 7 vestavných skříní a přímý vstup na zasklenou lodžii. Další úložné prostory zajišťuje vestavná skříň v předsíni. Orientace bytu na západ (kuchyň, jídelna) a východ (obývací část, ložnice, lodžie) zajišťuje dostatek denního světla po celý den.
Použití odhalených stropů a kombinace parketových podlah a betonové stěrky dodává bytu osobitý charakter. Celkový styl podtrhuje designový nábytek, který je součástí vybavení.
Dům prošel rekonstrukcí fasády včetně zateplení (nový energetický štítek je v přípravě). Velkou výhodou je bezproblémové parkování – bez městských parkovacích zón.
V okolí je kompletní občanská vybavenost: mateřská, základní i střední školy, ZUŠ, evangelická akademie, zdravotnická škola, Penny Market, OD Centrum s Albertem, v dojezdové vzdálenosti OC Chodov. Autobusová zastávka s přímým spojením na Smíchovské nádraží / Chodov / Kačerov/ Roztyly/ Skalku / Florenc je přímo před domem s dojezdem na Metro C – Roztyly cca 10 minut. Dětská hřiště, pumptrack, skatepark v docházkové vzdálenosti. Milovníci sportu ocení blízkost areálu Hamr s množstvím sportovních aktivit, či možnosti procházek v okolí Hamerského rybníka.
Pokud Vás nabídka zaujala, neváhejte mne kontaktovat, budu se na Vás těšit při prohlídce!
Pronajímatel si vyhrazuje právo výběru nájemce dle jím zvolených kritérií.

Makléř

Máte zájem o tento byt?

Tímto, v souladu s nařízením Evropského parlamentu a Rady (EU) 2016/679, v platném znění, prohlašuji, že mi je alespoň 16 let a uděluji tak svůj souhlas se zpracováním zadaných údajů (jméno, telefon, e-mail, ip adresa) společnosti B3 Technology, s.r.o., IČ: 07330600, se sídlem Novostavby 126/23, 435 11 Lom (správce dat), za účelem předání dotazu z tohoto formuláře Vámi vybranému inzerentovi a zpětného kontaktování mé osoby. Osobní údaje bude správce zpracovávat manuálně i automaticky přímo prostřednictvím svých zaměstnanců. Informace předané tímto formulářem budou uloženy v databázi správce maximálně po dobu 10 let. Odvolání souhlasu s uložením a zpracováním poskytnutých dat lze e-mailem na info@origo-reality.cz. V případě podezření na neoprávněné použití Vámi poskytnutých údajů máte právo předat podnět k šetření Úřadu pro ochranu osobních údajů. Více informací
Chystáte se prodat nemovitost?
Pomůžeme Vám!